Account: R8380500

April 1, 2026

Account Parcel Account Type Tax Year Buildings Actual Value Local Govt Assessed Value School Assessed Value
R8380500 095917011002 Residential 2026 1 390,467 24,410 27,530

Legal
GR 2HSH L2 BLK8 HOMESTEAD HEIGHTS #2

Subdivision Block Lot Land Economic Area
HOMESTEAD HEIGHTS SUB FG#2 8 2 HOMESTEAD HEIGHTS

Property Address Property City Section Township Range
7312 W 21ST ST GREELEY 17 05 66




Account Parcel Account Type Tax Year Buildings Actual Value Local Govt Assessed Value School Assessed Value
R8380500 095917011002 Residential 2026 1 390,467 24,410 27,530

Account Owner Name Address
R8380500 AGUILAR FERNANDO A 7312 W 21ST ST GREELEY, CO 806348616


Account Parcel Account Type Tax Year Buildings Actual Value Local Govt Assessed Value School Assessed Value
R8380500 095917011002 Residential 2026 1 390,467 24,410 27,530

Reception Rec Date Type Grantor Grantee Doc Fee Sale Date Sale Price
2740750 NA SUB SUBDIVISION HOMESTEAD HEIGHTS 2ND FG 0.00 NA 0
2758667 03-30-2000 WD SCHUSTER L J LLC PROGRESSIVE LIVING STRUCTURES 127.50 03-22-2000 1,275,000
2814082 12-18-2000 WD PROGRESSIVE LIVING STRUCTURES INC STAVES JOHN J & BRANDY A 15.87 12-15-2000 158,700
4192955 04-04-2016 WD STAVES BRANDY A; STAVES JOHN J LACEY KATHLEEN ANN; LACEY MICHAEL ALLEN 24.00 04-01-2016 240,000
4501099 06-27-2019 WD LACEY KATHLEEN ANN; LACEY MICHAEL ALLEN ROCHA MANAEHM CORDOVA 32.50 06-25-2019 325,000
4750612 08-27-2021 WD ROCHA MANAEHM CORDOVA AGUILAR FERNANDO A 40.49 08-25-2021 404,900



Account Parcel Account Type Tax Year Buildings Actual Value Local Govt Assessed Value School Assessed Value
R8380500 095917011002 Residential 2026 1 390,467 24,410 27,530

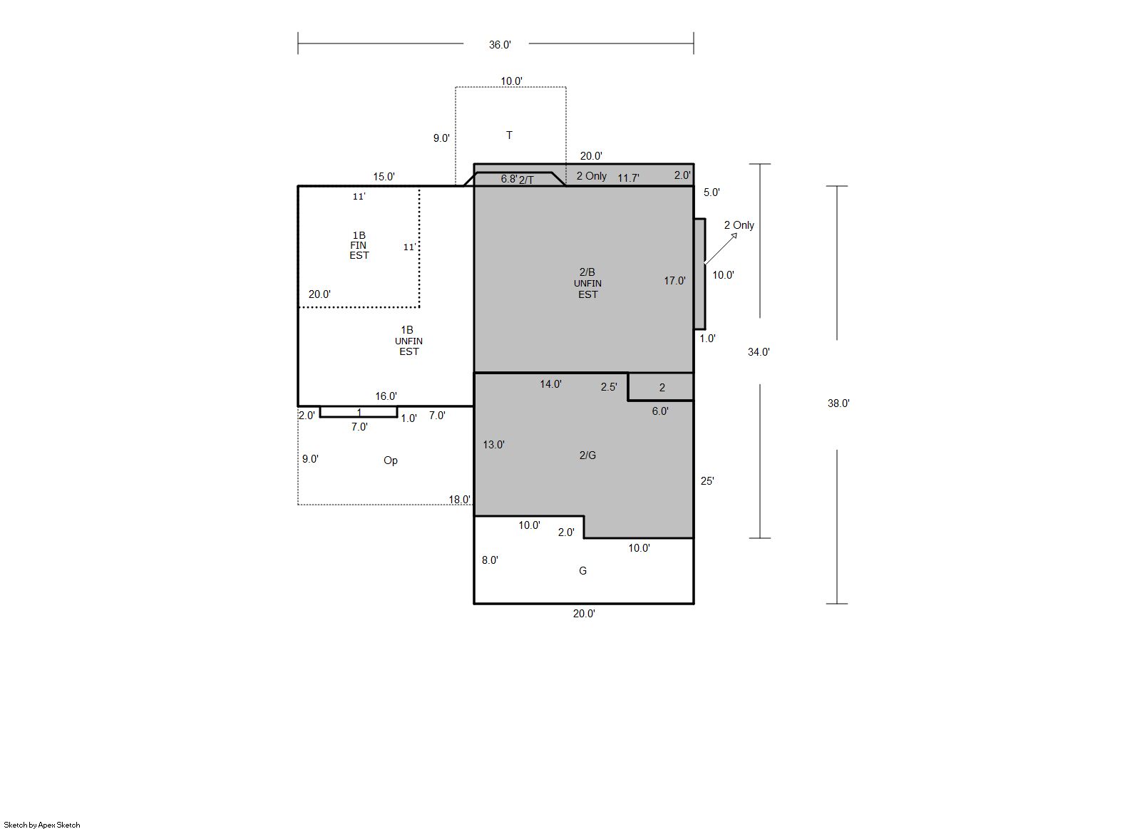
Building 1

AccountNo Building ID Occupancy
R8380500 1 Single Family Residential


ID Type NBHD Occupancy % Complete Bedrooms Baths
1 Residential 2G0007 Single Family Residential 100 4 3.00


ID Exterior Roof Cover Interior HVAC Perimeter Units Unit Type Make
1 Frame Siding Composition Shingle Drywall Central Air to Air 230 0 NA NA


ID Square Ft Condo SF Total Basement SF Finished Basement SF Garage SF Carport SF Balcony SF Porch SF
1 1,362 0 660 121 405 0 0 80


Built As Details for Building 1
ID Built As Square Ft Year Built Stories Length Width
1.00 2 Story 1,362 2000 2 0 0


Additional Details for Building 1
ID Detail Type Description Units
1 Add On Fireplace Gas 1.00
1 Basement Finished 121.00
1 Basement Total Basement SF 660.00
1 Fixture Full Bath 2.00
1 Fixture Half Bath 1.00
1 Garage Attached 405.00
1 Porch Open Slab 80.00
1 Porch Slab Roof Ceil 137.00
1 Rough In Rough In 1.00





Account Parcel Account Type Tax Year Buildings Actual Value Local Govt Assessed Value School Assessed Value
R8380500 095917011002 Residential 2026 1 390,467 24,410 27,530

Type Code Description Actual Value Local Govt Assessed Value School Assessed Value Acres Land SqFt
Improvement 1212 SINGLE FAMILY RESIDENTIAL IMPROVEMENTS 320,467 20,030 22,590 0.000 0
Land 1112 SINGLE FAMILY RESIDENTIAL-LAND 70,000 4,380 4,940 0.182 7,926
Totals - - 390,467 24,410 27,530 0.182 7,926


Account Parcel Account Type Tax Year Buildings Actual Value Local Govt Assessed Value School Assessed Value
R8380500 095917011002 Residential 2026 1 390,467 24,410 27,530

Tax Area District ID District Name Local Govt
Mill Levy
School
Mill Levy
Estimated
Taxes
0683 0700 AIMS JUNIOR COLLEGE 6.313 0.000 $154.10
0683 0411 GREELEY CITY 11.274 0.000 $275.20
0683 1050 HIGH PLAINS LIBRARY 3.044 0.000 $74.30
0683 0301 NORTHERN COLORADO WATER (NCW) 1.000 0.000 $24.41
0683 0206 SCHOOL DIST 6-GREELEY 0.000 47.615 $1,310.84
0683 0100 WELD COUNTY 15.956 0.000 $389.49
0683 1200 WEST GREELEY CONSERVATION 0.414 0.000 $10.11
Total - - 38.001 47.615 $2,238.45


The estimate of tax is based on the prior year mill levy and the 2025 projected assessment rates. Mill levies and tax estimates will be updated yearly on December 22nd for the current year. Additional information can be found at https://assessor.weld.gov










Select Reports to Print: