Account: R8487600

April 1, 2026

Account Parcel Account Type Tax Year Buildings Actual Value Local Govt Assessed Value School Assessed Value
R8487600 095903224011 Residential 2026 1 493,319 30,830 34,780

Legal
GR 2CRKF L11 BLK1 COTTESMORE RESERVE AT KELLY FARM 2ND FG

Subdivision Block Lot Land Economic Area
COTTESMORE RESERVE AT KELLY FARM 2ND FG 1 11 KELLY FARM

Property Address Property City Section Township Range
5517 2ND ST GREELEY 03 05 66




Account Parcel Account Type Tax Year Buildings Actual Value Local Govt Assessed Value School Assessed Value
R8487600 095903224011 Residential 2026 1 493,319 30,830 34,780

Account Owner Name Address
R8487600 ALEXANDER CURTIS C 5517 2ND ST GREELEY, CO 806344236
R8487600 ALEXANDER DIANE L


Account Parcel Account Type Tax Year Buildings Actual Value Local Govt Assessed Value School Assessed Value
R8487600 095903224011 Residential 2026 1 493,319 30,830 34,780

Reception Rec Date Type Grantor Grantee Doc Fee Sale Date Sale Price
2744995 NA SUB SUBDIVISION COTTESMORE RESERVE AT KELLY FARM 2ND FG 0.00 NA 0
2748997 02-10-2000 WD KELLY FARM LLC FELL GEORGE & SON CONSTRUCTION 11.70 02-04-2000 117,000
2802439 10-25-2000 WD FELL GEORGE & SON CONSTRUCTION INC BAKER STEVEN D 8.40 10-24-2000 84,000
2996016 10-15-2002 QCN BAKER STEVEN D MASTER HOME SOURCE CORPORATION 0.00 10-11-2002 0
3066678 05-28-2003 WD MASTER HOME SOURCE CORPORATION ALEXANDER CURTIS C & 26.30 05-23-2003 263,000



Account Parcel Account Type Tax Year Buildings Actual Value Local Govt Assessed Value School Assessed Value
R8487600 095903224011 Residential 2026 1 493,319 30,830 34,780

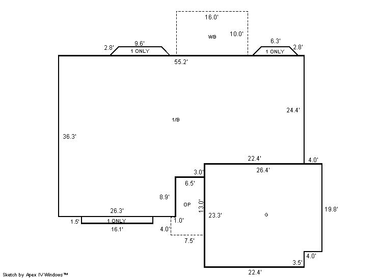
Building 1

AccountNo Building ID Occupancy
R8487600 1 Single Family Residential


ID Type NBHD Occupancy % Complete Bedrooms Baths
1 Residential 2G3010 Single Family Residential 100 3 2.00


ID Exterior Roof Cover Interior HVAC Perimeter Units Unit Type Make
1 Frame Siding Composition Shingle Drywall Central Air to Air 0 0 NA NA


ID Square Ft Condo SF Total Basement SF Finished Basement SF Garage SF Carport SF Balcony SF Porch SF
1 1,743 0 1,679 0 601 0 160 88


Built As Details for Building 1
ID Built As Square Ft Year Built Stories Length Width
1.00 Ranch 1 Story 1,743 2002 1 0 0


Additional Details for Building 1
ID Detail Type Description Units
1 Add On Fireplace Gas 1.00
1 Balcony Wood Wood Fin 160.00
1 Basement Full Daylight 1.00
1 Basement Total Basement SF 1679.00
1 Fixture Full Bath 2.00
1 Garage Attached 601.00
1 Porch Slab Roof Ceil 88.00
1 Rough In Rough In 1.00





Account Parcel Account Type Tax Year Buildings Actual Value Local Govt Assessed Value School Assessed Value
R8487600 095903224011 Residential 2026 1 493,319 30,830 34,780

Type Code Description Actual Value Local Govt Assessed Value School Assessed Value Acres Land SqFt
Improvement 1212 SINGLE FAMILY RESIDENTIAL IMPROVEMENTS 378,319 23,640 26,670 0.000 0
Land 1112 SINGLE FAMILY RESIDENTIAL-LAND 115,000 7,190 8,110 0.210 9,021
Totals - - 493,319 30,830 34,780 0.210 9,021


Account Parcel Account Type Tax Year Buildings Actual Value Local Govt Assessed Value School Assessed Value
R8487600 095903224011 Residential 2026 1 493,319 30,830 34,780

Tax Area District ID District Name Local Govt
Mill Levy
School
Mill Levy
Estimated
Taxes
0683 0700 AIMS JUNIOR COLLEGE 6.313 0.000 $194.63
0683 0411 GREELEY CITY 11.274 0.000 $347.58
0683 1050 HIGH PLAINS LIBRARY 3.044 0.000 $93.85
0683 0301 NORTHERN COLORADO WATER (NCW) 1.000 0.000 $30.83
0683 0206 SCHOOL DIST 6-GREELEY 0.000 47.615 $1,656.05
0683 0100 WELD COUNTY 15.956 0.000 $491.92
0683 1200 WEST GREELEY CONSERVATION 0.414 0.000 $12.76
Total - - 38.001 47.615 $2,827.62


The estimate of tax is based on the prior year mill levy and the 2025 projected assessment rates. Mill levies and tax estimates will be updated yearly on December 22nd for the current year. Additional information can be found at https://assessor.weld.gov










Select Reports to Print: