Account: R8569900

April 1, 2026

Account Parcel Account Type Tax Year Buildings Actual Value Local Govt Assessed Value School Assessed Value
R8569900 131130115003 Residential 2026 1 488,436 30,520 34,430

Legal
FIR OAFRA L3 BLK4 OVERLOOK AT FIRESTONE RPLT A

Subdivision Block Lot Land Economic Area
OVERLOOK AT FIRESTONE RPLT A 4 3 OVERLOOK

Property Address Property City Section Township Range
602 FLORENCE AVE FIRESTONE 30 02 67




Account Parcel Account Type Tax Year Buildings Actual Value Local Govt Assessed Value School Assessed Value
R8569900 131130115003 Residential 2026 1 488,436 30,520 34,430

Account Owner Name Address
R8569900 AGUILAR ROSENDO 602 FLORENCE AVE FIRESTONE, CO 805205071
R8569900 AGUILAR JUAN


Account Parcel Account Type Tax Year Buildings Actual Value Local Govt Assessed Value School Assessed Value
R8569900 131130115003 Residential 2026 1 488,436 30,520 34,430

Reception Rec Date Type Grantor Grantee Doc Fee Sale Date Sale Price
2755702 NA SUB SUBDIVISION OVERLOOK AT FIRESTONE RPLT A 0.00 NA 0
2797209 10-02-2000 WD OVERLOOK AT FIRESTONE LLC ADAM PARKER CONSTRUCTION CO IN 4.45 09-27-2000 44,500
2818923 01-12-2001 WD PARKER ADAM CONSTRUCTION CO INC COET ERIC & JENNIFER 18.91 01-05-2001 189,100
3162063 03-16-2004 WD COET ERIC & JENNIFER NAOMI ROGER P & 22.49 11-03-2003 224,900
3611154 03-17-2009 QCN NAOMI ROGER P VAN METER JUDITH A 0.00 02-14-2009 0
4329432 08-23-2017 WDE NAOMI JUDITH A; VAN METER JUDITH A ROBERTSON JESSICA 33.39 08-21-2017 333,900
4979632 08-29-2024 WD ROBERTSON JESSICA AGUILAR ROSENDO; AGUILAR JUAN 53.00 08-19-2024 530,000



Account Parcel Account Type Tax Year Buildings Actual Value Local Govt Assessed Value School Assessed Value
R8569900 131130115003 Residential 2026 1 488,436 30,520 34,430

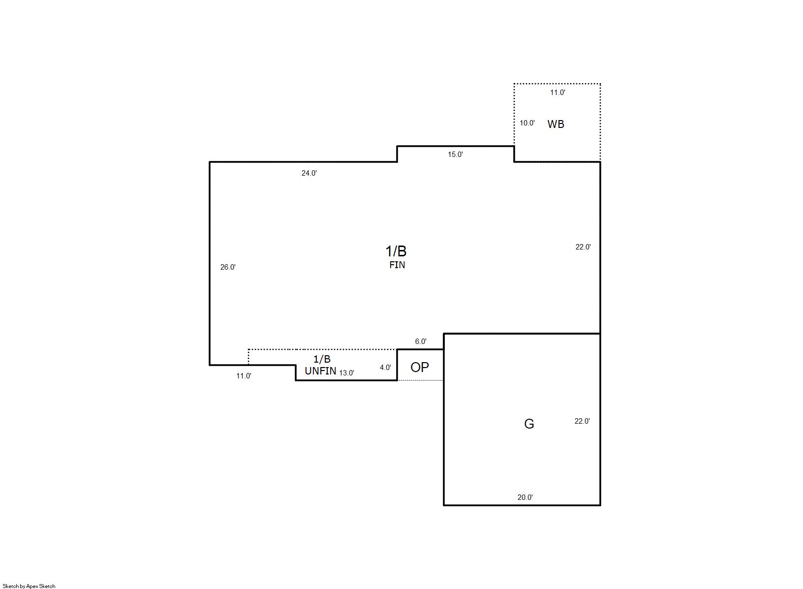
Building 1

AccountNo Building ID Occupancy
R8569900 1 Single Family Residential


ID Type NBHD Occupancy % Complete Bedrooms Baths
1 Residential 3F1031 Single Family Residential 100 4 3.00


ID Exterior Roof Cover Interior HVAC Perimeter Units Unit Type Make
1 Frame Vinyl Composition Shingle Drywall Central Air to Air 160 0 NA NA


ID Square Ft Condo SF Total Basement SF Finished Basement SF Garage SF Carport SF Balcony SF Porch SF
1 1,264 0 1,264 1,200 440 0 110 24


Built As Details for Building 1
ID Built As Square Ft Year Built Stories Length Width
1.00 Ranch 1 Story 1,264 2000 1 0 0


Additional Details for Building 1
ID Detail Type Description Units
1 Add On Fireplace Gas 1.00
1 Balcony Wood Wood Fin 110.00
1 Basement Finished 1200.00
1 Basement Full Daylight 1.00
1 Basement Total Basement SF 1264.00
1 Fixture Full Bath 3.00
1 Garage Attached 440.00
1 Porch Slab Roof Ceil 24.00
1 Rough In Laundry Facility 1.00





Account Parcel Account Type Tax Year Buildings Actual Value Local Govt Assessed Value School Assessed Value
R8569900 131130115003 Residential 2026 1 488,436 30,520 34,430

Type Code Description Actual Value Local Govt Assessed Value School Assessed Value Acres Land SqFt
Improvement 1212 SINGLE FAMILY RESIDENTIAL IMPROVEMENTS 403,436 25,210 28,440 0.000 0
Land 1112 SINGLE FAMILY RESIDENTIAL-LAND 85,000 5,310 5,990 0.157 6,836
Totals - - 488,436 30,520 34,430 0.157 6,836


Account Parcel Account Type Tax Year Buildings Actual Value Local Govt Assessed Value School Assessed Value
R8569900 131130115003 Residential 2026 1 488,436 30,520 34,430

Tax Area District ID District Name Local Govt
Mill Levy
School
Mill Levy
Estimated
Taxes
2556 0900 CARBON VALLEY REC 4.427 0.000 $135.11
2556 0406 FIRESTONE TOWN 6.805 0.000 $207.69
2556 0507 FREDERICK-FIRESTONE FIRE 15.559 0.000 $474.86
2556 1050 HIGH PLAINS LIBRARY 3.044 0.000 $92.90
2556 0301 NORTHERN COLORADO WATER (NCW) 1.000 0.000 $30.52
2556 0213 SCHOOL DIST RE1J-LONGMONT 0.000 57.717 $1,987.20
2556 0620 ST VRAIN SANITATION 0.316 0.000 $9.64
2556 0100 WELD COUNTY 15.956 0.000 $486.98
Total - - 47.107 57.717 $3,424.90


The estimate of tax is based on the prior year mill levy and the 2025 projected assessment rates. Mill levies and tax estimates will be updated yearly on December 22nd for the current year. Additional information can be found at https://assessor.weld.gov










Select Reports to Print: