Account: R8612700

April 1, 2026

Account Parcel Account Type Tax Year Buildings Actual Value Local Govt Assessed Value School Assessed Value
R8612700 080714001001 Residential 2026 1 1,439,695 89,980 101,490

Legal
WKP L1 WINTER KNOLLS PUD MINOR SUB

Subdivision Block Lot Land Economic Area
WINTER KNOLLS PUD MINOR SUB 1 WINTER KNOLLS

Property Address Property City Section Township Range
33924 WINTER WAY WELD 14 06 67




Account Parcel Account Type Tax Year Buildings Actual Value Local Govt Assessed Value School Assessed Value
R8612700 080714001001 Residential 2026 1 1,439,695 89,980 101,490

Account Owner Name Address
R8612700 EDDLEMAN FAMILY REVOCABLE TRUST 33924 WINTER WAY WINDSOR, CO 805503233


Account Parcel Account Type Tax Year Buildings Actual Value Local Govt Assessed Value School Assessed Value
R8612700 080714001001 Residential 2026 1 1,439,695 89,980 101,490

Reception Rec Date Type Grantor Grantee Doc Fee Sale Date Sale Price
1677947 01-02-1976 WDN WINTER ROBERT J & JANET A 0.00 01-01-1900 0
2695003 06-14-1999 COZ WELD COUNTY ZONING CASE: Z-518 ZONING E, PUD 0.00 NA 0
2756126 NA SUB SUBDIVISION WINTER KNOLLS PUD MINOR 0.00 NA 0
2757425 03-24-2000 QCN WINTER ROBERT J & JANET A WINTER ROBERT J & JANET A 0.00 03-20-2000 0
2790515 08-30-2000 WD WINTER ROBERT J & JANET A FRENCH TERRY L & SHIRLEY A 7.80 08-25-2000 78,000
3180296 05-14-2004 WD FRENCH TERRY L & SHIRLEY A BURNS CYNTHIA A & 12.85 05-13-2004 128,500
4232128 08-29-2016 WDN BURNS MICHAEL J; BURNS CYNTHIA A FULL CIRCLE INVESTMENTS LLLP 0.00 08-24-2016 0
4821114 04-22-2022 WDN FULL CIRCLE INVESTMENTS LLLP BURNS CYNTHIA A; BURNS MICHAEL J 0.00 04-06-2022 0
4865388 11-04-2022 WD BURNS CYNTHIA A; BURNS MICHAEL J EDDLEMAN FAMILY REVOCABLE TRUST 140.00 11-02-2022 1,400,000



Account Parcel Account Type Tax Year Buildings Actual Value Local Govt Assessed Value School Assessed Value
R8612700 080714001001 Residential 2026 1 1,439,695 89,980 101,490

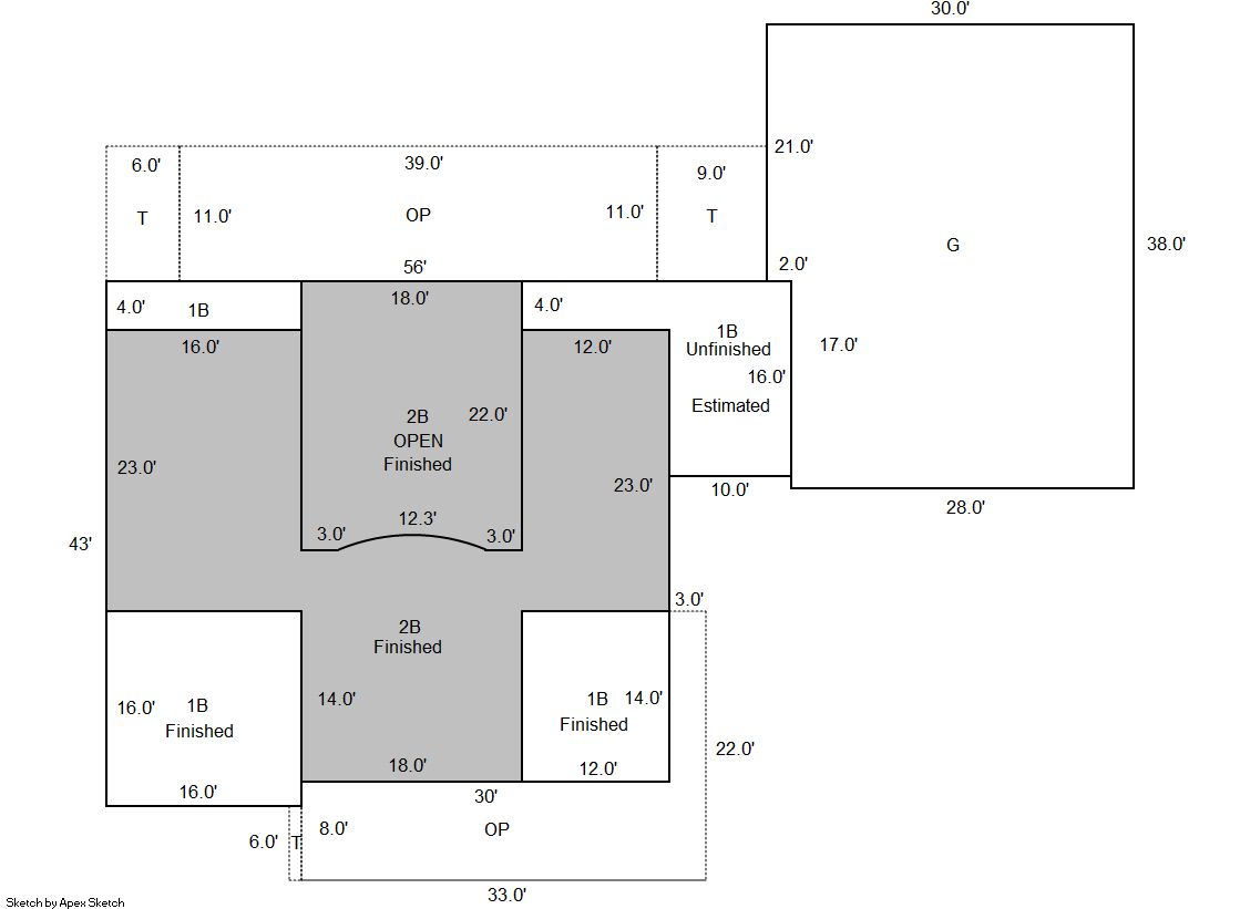
Building 1

AccountNo Building ID Occupancy
R8612700 1 Single Family Residential


ID Type NBHD Occupancy % Complete Bedrooms Baths
1 Residential 2R2001 Single Family Residential 100 5 5.00


ID Exterior Roof Cover Interior HVAC Perimeter Units Unit Type Make
1 Frame Stucco Composition Shingle Drywall Central Air to Air 452 0 NA NA


ID Square Ft Condo SF Total Basement SF Finished Basement SF Garage SF Carport SF Balcony SF Porch SF
1 3,074 0 2,078 1,870 1,106 0 0 171


Built As Details for Building 1
ID Built As Square Ft Year Built Stories Length Width
1.00 2 Story 3,074 2004 1 0 0


Additional Details for Building 1
ID Detail Type Description Units
1 Add On Fireplace Gas 1.00
1 Add On Flue Only 1.00
1 Basement Finished 1870.00
1 Basement Total Basement SF 2078.00
1 Fixture Full Bath 4.00
1 Fixture Half Bath 1.00
1 Fixture Wet Bar 1.00
1 Garage Attached 1106.00
1 Garage Detached 2360.00
1 Porch Open Slab 171.00
1 Porch Slab Roof Ceil 1275.00





Account Parcel Account Type Tax Year Buildings Actual Value Local Govt Assessed Value School Assessed Value
R8612700 080714001001 Residential 2026 1 1,439,695 89,980 101,490

Type Code Description Actual Value Local Govt Assessed Value School Assessed Value Acres Land SqFt
Improvement 1212 SINGLE FAMILY RESIDENTIAL IMPROVEMENTS 1,215,095 75,940 85,660 0.000 0
Land 1112 SINGLE FAMILY RESIDENTIAL-LAND 224,600 14,040 15,830 1.762 76,746
Totals - - 1,439,695 89,980 101,490 1.762 76,746


Account Parcel Account Type Tax Year Buildings Actual Value Local Govt Assessed Value School Assessed Value
R8612700 080714001001 Residential 2026 1 1,439,695 89,980 101,490

Tax Area District ID District Name Local Govt
Mill Levy
School
Mill Levy
Estimated
Taxes
0430 0700 AIMS JUNIOR COLLEGE 6.313 0.000 $568.04
0430 1051 CLEARVIEW LIBRARY 3.546 0.000 $319.07
0430 0304 NORTH WELD COUNTY WATER (NWC) 0.000 0.000 $0.00
0430 0301 NORTHERN COLORADO WATER (NCW) 1.000 0.000 $89.98
0430 0204 SCHOOL DIST RE4-WINDSOR 0.000 46.646 $4,734.10
0430 0100 WELD COUNTY 15.956 0.000 $1,435.72
0430 1200 WEST GREELEY CONSERVATION 0.414 0.000 $37.25
0430 0521 WINDSOR-SEVERANCE FIRE 8.535 0.000 $767.98
Total - - 35.764 46.646 $7,952.15


The estimate of tax is based on the prior year mill levy and the 2025 projected assessment rates. Mill levies and tax estimates will be updated yearly on December 22nd for the current year. Additional information can be found at https://assessor.weld.gov










Select Reports to Print: