Account: R8613100

April 1, 2026

Account Parcel Account Type Tax Year Buildings Actual Value Local Govt Assessed Value School Assessed Value
R8613100 080714001004 Residential 2026 1 1,305,005 81,570 92,000

Legal
WKP L4 WINTER KNOLLS PUD MINOR SUB

Subdivision Block Lot Land Economic Area
WINTER KNOLLS PUD MINOR SUB 4 WINTER KNOLLS

Property Address Property City Section Township Range
33901 WINTER WAY WELD 14 06 67




Account Parcel Account Type Tax Year Buildings Actual Value Local Govt Assessed Value School Assessed Value
R8613100 080714001004 Residential 2026 1 1,305,005 81,570 92,000

Account Owner Name Address
R8613100 GORMAN LIVING TRUST 33901 WINTER WAY WINDSOR, CO 805503233


Account Parcel Account Type Tax Year Buildings Actual Value Local Govt Assessed Value School Assessed Value
R8613100 080714001004 Residential 2026 1 1,305,005 81,570 92,000

Reception Rec Date Type Grantor Grantee Doc Fee Sale Date Sale Price
1677947 01-02-1976 WDN WINTER ROBERT J & JANET A 0.00 01-01-1900 0
2695003 06-14-1999 COZ WELD COUNTY ZONING CASE: Z-518 ZONING E, PUD 0.00 NA 0
2756126 NA SUB SUBDIVISION WINTER KNOLLS PUD MINOR 0.00 NA 0
2757426 03-24-2000 QCN WINTER ROBERT J & JANET A WINTER ROBERT J & JANET A 0.00 03-20-2000 0
2779853 07-11-2000 WD WINTER ROBERT J & JANET A WILSON SCOTT & DANA 8.25 06-30-2000 82,500
2837805 04-04-2001 QCN WILSON SCOTT & DANA WILSON SCOTT & 0.00 03-23-2001 0
4449936 11-29-2018 WD WINTER-WILSON DANA; WILSON SCOTT GORMAN BRIAN A; GORMAN WENDY A 74.75 11-21-2018 747,500
5000169 12-16-2024 BSDN GORMAN BRIAN A; GORMAN WENDY A GORMAN LIVING TRUST 0.00 11-27-2024 0



Account Parcel Account Type Tax Year Buildings Actual Value Local Govt Assessed Value School Assessed Value
R8613100 080714001004 Residential 2026 1 1,305,005 81,570 92,000

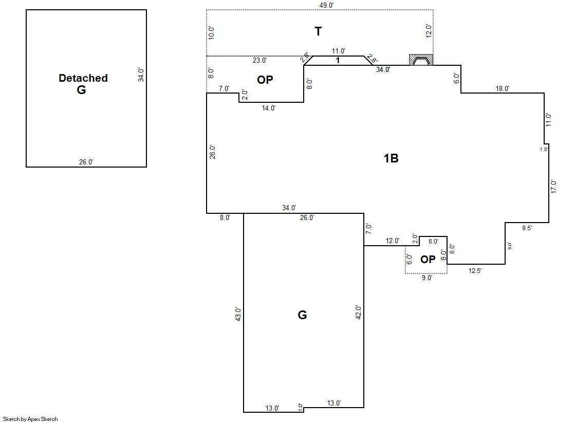
Building 1

AccountNo Building ID Occupancy
R8613100 1 Single Family Residential


ID Type NBHD Occupancy % Complete Bedrooms Baths
1 Residential 2R2001 Single Family Residential 100 4 5.00


ID Exterior Roof Cover Interior HVAC Perimeter Units Unit Type Make
1 Frame Stucco Comp Shingle Heavy Drywall Central Air to Air 244 0 NA NA


ID Square Ft Condo SF Total Basement SF Finished Basement SF Garage SF Carport SF Balcony SF Porch SF
1 2,386 0 2,360 2,360 884 0 0 518


Built As Details for Building 1
ID Built As Square Ft Year Built Stories Length Width
1.00 Ranch 1 Story 2,386 2000 1 0 0


Additional Details for Building 1
ID Detail Type Description Units
1 Add On Fireplace Gas 1.00
1 Add On Fireplace Gas Converted 1.00
1 Basement Finished 2360.00
1 Basement Total Basement SF 2360.00
1 Fixture Full Bath 3.00
1 Fixture Half Bath 1.00
1 Fixture Wet Bar 1.00
1 Garage Attached 1105.00
1 Garage Detached 884.00
1 Porch Open Slab 518.00
1 Porch Slab Roof Ceil 264.00





Account Parcel Account Type Tax Year Buildings Actual Value Local Govt Assessed Value School Assessed Value
R8613100 080714001004 Residential 2026 1 1,305,005 81,570 92,000

Type Code Description Actual Value Local Govt Assessed Value School Assessed Value Acres Land SqFt
Improvement 1212 SINGLE FAMILY RESIDENTIAL IMPROVEMENTS 1,078,041 67,380 76,000 0.000 0
Land 1112 SINGLE FAMILY RESIDENTIAL-LAND 226,964 14,190 16,000 1.820 79,287
Totals - - 1,305,005 81,570 92,000 1.820 79,287


Account Parcel Account Type Tax Year Buildings Actual Value Local Govt Assessed Value School Assessed Value
R8613100 080714001004 Residential 2026 1 1,305,005 81,570 92,000

Tax Area District ID District Name Local Govt
Mill Levy
School
Mill Levy
Estimated
Taxes
0430 0700 AIMS JUNIOR COLLEGE 6.313 0.000 $514.95
0430 1051 CLEARVIEW LIBRARY 3.546 0.000 $289.25
0430 0304 NORTH WELD COUNTY WATER (NWC) 0.000 0.000 $0.00
0430 0301 NORTHERN COLORADO WATER (NCW) 1.000 0.000 $81.57
0430 0204 SCHOOL DIST RE4-WINDSOR 0.000 46.646 $4,291.43
0430 0100 WELD COUNTY 15.956 0.000 $1,301.53
0430 1200 WEST GREELEY CONSERVATION 0.414 0.000 $33.77
0430 0521 WINDSOR-SEVERANCE FIRE 8.535 0.000 $696.20
Total - - 35.764 46.646 $7,208.70


The estimate of tax is based on the prior year mill levy and the 2025 projected assessment rates. Mill levies and tax estimates will be updated yearly on December 22nd for the current year. Additional information can be found at https://assessor.weld.gov










Select Reports to Print: