Account: R8634200
April 5, 2026
| Account | Parcel | Account Type | Tax Year | Buildings | Actual Value | Local Govt Assessed Value | School Assessed Value |
|---|---|---|---|---|---|---|---|
| R8634200 | 095923028006 | Residential | 2026 | 1 | 395,446 | 24,710 | 27,880 |
| Legal |
|---|
| EVS 3ACH L6 BLK5 ASHCROFT HEIGHTS 3RD FG |
| Subdivision | Block | Lot | Land Economic Area |
|---|---|---|---|
| ASHCROFT HEIGHTS 3RD FG | 5 | 6 | ASHCROFT HEIGHTS |
| Property Address | Property City | Section | Township | Range |
|---|---|---|---|---|
| 3801 IRONHORSE DR | EVANS | 23 | 05 | 66 |
| Account | Parcel | Account Type | Tax Year | Buildings | Actual Value | Local Govt Assessed Value | School Assessed Value |
|---|---|---|---|---|---|---|---|
| R8634200 | 095923028006 | Residential | 2026 | 1 | 395,446 | 24,710 | 27,880 |
| Account | Owner Name | Address |
|---|---|---|
| R8634200 | ARMENTA GERARDO PEREA | 3801 IRONHORSE DR EVANS, CO 806209174 |
| R8634200 | APODACA NUBIA ROSARIO CHAVEZ |
| Account | Parcel | Account Type | Tax Year | Buildings | Actual Value | Local Govt Assessed Value | School Assessed Value |
|---|---|---|---|---|---|---|---|
| R8634200 | 095923028006 | Residential | 2026 | 1 | 395,446 | 24,710 | 27,880 |
| Reception | Rec Date | Type | Grantor | Grantee | Doc Fee | Sale Date | Sale Price |
|---|---|---|---|---|---|---|---|
| 2756848 | NA | SUB | SUBDIVISION | ASHCROFT HEIGHTS 3RD FG | 0.00 | NA | 0 |
| 2818883 | 01-12-2001 | WD | ASHCROFT HEIGHTS INVESTMENT LLC | JOURNEY HOMES LLC | 582.60 | 01-10-2001 | 5,826,000 |
| 2818884 | 01-12-2001 | WD | JOURNEY HOMES LLC | J & J CONSTRUCTION OF NORTHERN COLO LLC | 378.20 | 01-10-2001 | 3,782,000 |
| 2818888 | 01-12-2001 | WD | J & J CONSTRUCTION OF NORTHERN COLO LLC | PATRIARCH FINANCE LLC | 166.60 | 01-10-2001 | 1,666,000 |
| 2887259 | 09-28-2001 | WD | PATRIARCH FINANCE LLC | PATRIARCH BUILDERS LLC | 3.74 | 09-04-2001 | 37,400 |
| 2910287 | 12-19-2001 | WD | PATRIARCH BUILDERS LLC | BEAMES CURTIS SCOTT | 16.38 | 12-12-2001 | 163,800 |
| 4325729 | 08-09-2017 | WD | BEAMES CURTIS SCOTT | ARMENTA GERARDO PEREA | 26.50 | 08-03-2017 | 265,000 |
| 4337818 | 09-25-2017 | QCN | ARMENTA GERARDO PEREA | APODACA NUBIA ROSARIO CHAVEZ; ARMENTA GERARDO PEREA | 0.00 | 09-14-2017 | 0 |
*If the hyperlink for the reception number does not work, try a manual search in the Clerk and Recorder records. Use the Grantor or Grantee in your search.
| Account | Parcel | Account Type | Tax Year | Buildings | Actual Value | Local Govt Assessed Value | School Assessed Value |
|---|---|---|---|---|---|---|---|
| R8634200 | 095923028006 | Residential | 2026 | 1 | 395,446 | 24,710 | 27,880 |
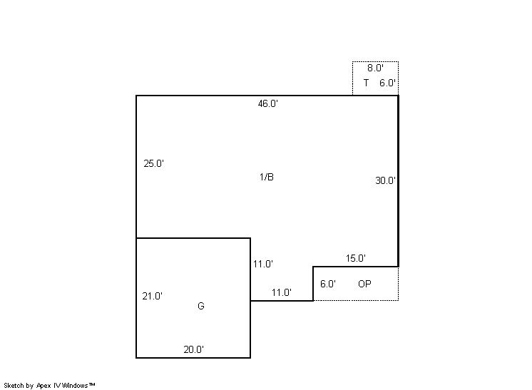
Building 1
| AccountNo | Building ID | Occupancy |
|---|---|---|
| R8634200 | 1 | Single Family Residential |
| ID | Type | NBHD | Occupancy | % Complete | Bedrooms | Baths |
|---|---|---|---|---|---|---|
| 1 | Residential | 2E0002 | Single Family Residential | 100 | 3 | 2.00 |
| ID | Exterior | Roof Cover | Interior | HVAC | Perimeter | Units | Unit Type | Make |
|---|---|---|---|---|---|---|---|---|
| 1 | Frame Hardboard | Composition Shingle | Drywall | Forced Air | 0 | 0 | NA | NA |
| ID | Square Ft | Condo SF | Total Basement SF | Finished Basement SF | Garage SF | Carport SF | Balcony SF | Porch SF |
|---|---|---|---|---|---|---|---|---|
| 1 | 1,346 | 0 | 1,346 | 0 | 420 | 0 | 0 | 90 |
| ID | Built As | Square Ft | Year Built | Stories | Length | Width |
|---|---|---|---|---|---|---|
| 1.00 | Ranch 1 Story | 1,346 | 2001 | 1 | 0 | 0 |
| ID | Detail Type | Description | Units |
|---|---|---|---|
| 1 | Basement | Total Basement SF | 1346.00 |
| 1 | Fixture | Full Bath | 2.00 |
| 1 | Garage | Attached | 420.00 |
| 1 | Porch | Open Slab | 48.00 |
| 1 | Porch | Slab Roof Ceil | 90.00 |
| 1 | Rough In | Rough In | 1.00 |
| Account | Parcel | Account Type | Tax Year | Buildings | Actual Value | Local Govt Assessed Value | School Assessed Value |
|---|---|---|---|---|---|---|---|
| R8634200 | 095923028006 | Residential | 2026 | 1 | 395,446 | 24,710 | 27,880 |
| Type | Code | Description | Actual Value | Local Govt Assessed Value | School Assessed Value | Acres | Land SqFt |
|---|---|---|---|---|---|---|---|
| Improvement | 1212 | SINGLE FAMILY RESIDENTIAL IMPROVEMENTS | 310,446 | 19,400 | 21,890 | 0.000 | 0 |
| Land | 1112 | SINGLE FAMILY RESIDENTIAL-LAND | 85,000 | 5,310 | 5,990 | 0.138 | 6,000 |
| Totals | - | - | 395,446 | 24,710 | 27,880 | 0.138 | 6,000 |
Comparable sales for your Residential or Commercial property may be found using our SALES SEARCH TOOL
Values are updated annually on May 1st for Real Property and June 15th for Personal Property and Oil and Gas.
| Account | Parcel | Account Type | Tax Year | Buildings | Actual Value | Local Govt Assessed Value | School Assessed Value |
|---|---|---|---|---|---|---|---|
| R8634200 | 095923028006 | Residential | 2026 | 1 | 395,446 | 24,710 | 27,880 |
| Tax Area | District ID | District Name | Local Govt Mill Levy |
School Mill Levy |
Estimated Taxes |
|---|---|---|---|---|---|
| 0663 | 0700 | AIMS JUNIOR COLLEGE | 6.313 | 0.000 | $155.99 |
| 0663 | 0405 | EVANS CITY | 3.536 | 0.000 | $87.37 |
| 0663 | 0534 | EVANS FIRE | 15.500 | 0.000 | $383.01 |
| 0663 | 1050 | HIGH PLAINS LIBRARY | 3.044 | 0.000 | $75.22 |
| 0663 | 0301 | NORTHERN COLORADO WATER (NCW) | 1.000 | 0.000 | $24.71 |
| 0663 | 0206 | SCHOOL DIST 6-GREELEY | 0.000 | 47.615 | $1,327.51 |
| 0663 | 0100 | WELD COUNTY | 15.956 | 0.000 | $394.27 |
| 0663 | 1200 | WEST GREELEY CONSERVATION | 0.414 | 0.000 | $10.23 |
| Total | - | - | 45.763 | 47.615 | $2,458.31 |
The estimate of tax is based on the prior year mill levy and the 2025 projected assessment rates. Mill levies and tax estimates will be updated yearly on December 22nd for the current year. Additional information can be found at https://assessor.weld.gov



