Account: R8663400

April 5, 2026

Account Parcel Account Type Tax Year Buildings Actual Value Local Govt Assessed Value School Assessed Value
R8663400 131107024047 Residential 2026 1 597,850 37,370 42,150

Legal
FIR 4SVR L47 BLK2 ST VRAIN RANCH FG 4

Subdivision Block Lot Land Economic Area
ST VRAIN RANCH SUB FG#4 2 47 ST VRAIN

Property Address Property City Section Township Range
10215 DRESDEN ST FIRESTONE 07 02 67




Account Parcel Account Type Tax Year Buildings Actual Value Local Govt Assessed Value School Assessed Value
R8663400 131107024047 Residential 2026 1 597,850 37,370 42,150

Account Owner Name Address
R8663400 BACA RAYMOND M 10215 DRESDEN ST FIRESTONE, CO 805046711
R8663400 BACA STEPHANIE M


Account Parcel Account Type Tax Year Buildings Actual Value Local Govt Assessed Value School Assessed Value
R8663400 131107024047 Residential 2026 1 597,850 37,370 42,150

Reception Rec Date Type Grantor Grantee Doc Fee Sale Date Sale Price
2755709 NA SUB SUBDIVISION ST VRAIN RANCH FG #4 0.00 NA 0
2780594 07-14-2000 WD ST VRAIN PARTNERS LLC RYLAND GROUP INC 223.22 07-12-2000 2,232,200
2878366 08-28-2001 WD RYLAND GROUP INC NEAS RICHARD & SANDRA 32.37 08-23-2001 323,700
3389052 05-18-2006 WD NEAS RICHARD & SANDRA GREGORY FRED 29.00 04-06-2006 290,000
3623594 05-18-2009 QCN GREGORY FRED GREGORY FRED & GREGORY CINDY 0.00 12-22-2008 0
3844320 05-08-2012 WD GREGORY FRED GOODWIN JEREMY R 28.50 05-07-2012 285,000
4078446 01-26-2015 WD GOODWIN JEREMY R; GOODWIN ERICA L BACA RAYMOND M; COON STEPHANIE M 33.85 01-21-2015 338,500
4615881 08-04-2020 WDN BACA RAYMOND M; COON STEPHANIE M BACA RAYMOND M; BACA STEPHANIE M 0.00 07-28-2020 0



Account Parcel Account Type Tax Year Buildings Actual Value Local Govt Assessed Value School Assessed Value
R8663400 131107024047 Residential 2026 1 597,850 37,370 42,150

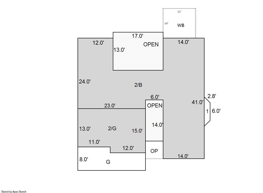
Building 1

AccountNo Building ID Occupancy
R8663400 1 Single Family Residential


ID Type NBHD Occupancy % Complete Bedrooms Baths
1 Residential 3F0038 Single Family Residential 100 4 3.00


ID Exterior Roof Cover Interior HVAC Perimeter Units Unit Type Make
1 Frame Hardboard Composition Shingle Drywall Central Air to Air 474 0 NA NA


ID Square Ft Condo SF Total Basement SF Finished Basement SF Garage SF Carport SF Balcony SF Porch SF
1 2,774 0 1,370 0 483 0 110 36


Built As Details for Building 1
ID Built As Square Ft Year Built Stories Length Width
1.00 2 Story 2,774 2001 2 0 0


Additional Details for Building 1
ID Detail Type Description Units
1 Add On Fireplace Gas 1.00
1 Balcony Wood Wood Fin 110.00
1 Basement Total Basement SF 1370.00
1 Fixture Full Bath 2.00
1 Fixture Half Bath 1.00
1 Garage Attached 483.00
1 Porch Slab Roof Ceil 36.00
1 Rough In Rough In 1.00





Account Parcel Account Type Tax Year Buildings Actual Value Local Govt Assessed Value School Assessed Value
R8663400 131107024047 Residential 2026 1 597,850 37,370 42,150

Type Code Description Actual Value Local Govt Assessed Value School Assessed Value Acres Land SqFt
Improvement 1212 SINGLE FAMILY RESIDENTIAL IMPROVEMENTS 479,850 29,990 33,830 0.000 0
Land 1112 SINGLE FAMILY RESIDENTIAL-LAND 118,000 7,380 8,320 0.166 7,247
Totals - - 597,850 37,370 42,150 0.166 7,247


Account Parcel Account Type Tax Year Buildings Actual Value Local Govt Assessed Value School Assessed Value
R8663400 131107024047 Residential 2026 1 597,850 37,370 42,150

Tax Area District ID District Name Local Govt
Mill Levy
School
Mill Levy
Estimated
Taxes
2556 0900 CARBON VALLEY REC 4.427 0.000 $165.44
2556 0406 FIRESTONE TOWN 6.805 0.000 $254.30
2556 0507 FREDERICK-FIRESTONE FIRE 15.559 0.000 $581.44
2556 1050 HIGH PLAINS LIBRARY 3.044 0.000 $113.75
2556 0301 NORTHERN COLORADO WATER (NCW) 1.000 0.000 $37.37
2556 0213 SCHOOL DIST RE1J-LONGMONT 0.000 57.717 $2,432.77
2556 0620 ST VRAIN SANITATION 0.316 0.000 $11.81
2556 0100 WELD COUNTY 15.956 0.000 $596.28
Total - - 47.107 57.717 $4,193.16


The estimate of tax is based on the prior year mill levy and the 2025 projected assessment rates. Mill levies and tax estimates will be updated yearly on December 22nd for the current year. Additional information can be found at https://assessor.weld.gov










Select Reports to Print: