Account: R8664800

April 1, 2026

Account Parcel Account Type Tax Year Buildings Actual Value Local Govt Assessed Value School Assessed Value
R8664800 095923035002 Residential 2026 1 388,626 24,290 27,400

Legal
EVS 3ACH L2 BLK12 ASHCROFT HEIGHTS 3RD FG

Subdivision Block Lot Land Economic Area
ASHCROFT HEIGHTS 3RD FG 12 2 ASHCROFT HEIGHTS

Property Address Property City Section Township Range
3924 TUMBLEWEED DR EVANS 23 05 66




Account Parcel Account Type Tax Year Buildings Actual Value Local Govt Assessed Value School Assessed Value
R8664800 095923035002 Residential 2026 1 388,626 24,290 27,400

Account Owner Name Address
R8664800 ALBRECHT DAVID 3924 TUMBLEWEED DR EVANS, CO 806209111
R8664800 WHITE AIMEE


Account Parcel Account Type Tax Year Buildings Actual Value Local Govt Assessed Value School Assessed Value
R8664800 095923035002 Residential 2026 1 388,626 24,290 27,400

Reception Rec Date Type Grantor Grantee Doc Fee Sale Date Sale Price
2756848 NA SUB SUBDIVISION ASHCROFT HEIGHTS 3RD FG 0.00 NA 0
2818883 01-12-2001 WD ASHCROFT HEIGHTS INVESTMENT LLC JOURNEY HOMES LLC 582.60 01-10-2001 5,826,000
2818884 01-12-2001 WD JOURNEY HOMES LLC J & J CONSTRUCTION OF NORTHERN COLO LLC 378.20 01-10-2001 3,782,000
2818895 01-12-2001 WD J & J CONSTRUCTION OF NORTHERN COLO LLC BAILEY HOMES INC 29.60 01-10-2001 296,000
2912916 12-28-2001 WD BAILEY HOMES INC HACKETT JASON B & TONYA L 15.33 12-28-2001 153,300
3669342 01-08-2010 WD HACKETT JASON B & HACKETT TONYA L LANDEROS MARISELA MACIAS 13.50 01-07-2010 135,000
4316178 07-07-2017 WD LANDEROS MARISELA MACIAS COLEMAN-DOMANOSKI JOSHAUA J; COLEMAN-DOMANOSKI MALLORY L 27.50 06-13-2017 275,000
4581423 04-08-2020 SWD COLEMAN-DOMANOSKI JOSHAUA J; COLEMAN-DOMANOSKI MALLORY L ALBRECHT DAVID 29.90 04-07-2020 299,000
4762728 10-04-2021 QCN ALBRECHT DAVID WHITE AIMEE 0.00 09-26-2021 0



Account Parcel Account Type Tax Year Buildings Actual Value Local Govt Assessed Value School Assessed Value
R8664800 095923035002 Residential 2026 1 388,626 24,290 27,400

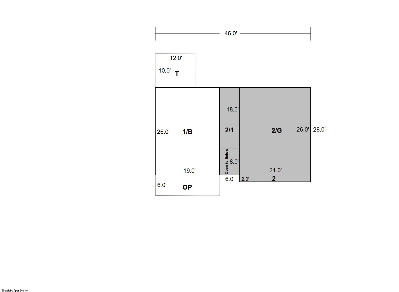
Building 1

AccountNo Building ID Occupancy
R8664800 1 Single Family Residential


ID Type NBHD Occupancy % Complete Bedrooms Baths
1 Residential 2E0002 Single Family Residential 100 3 3.00


ID Exterior Roof Cover Interior HVAC Perimeter Units Unit Type Make
1 Frame Hardboard Composition Shingle Drywall Central Air to Air 240 0 NA NA


ID Square Ft Condo SF Total Basement SF Finished Basement SF Garage SF Carport SF Balcony SF Porch SF
1 1,346 0 494 0 546 0 0 114


Built As Details for Building 1
ID Built As Square Ft Year Built Stories Length Width
1.00 2 Story 1,346 2001 1 0 0


Additional Details for Building 1
ID Detail Type Description Units
1 Add On Fireplace Gas 1.00
1 Basement Total Basement SF 494.00
1 Fixture Full Bath 2.00
1 Fixture Half Bath 1.00
1 Garage Attached 546.00
1 Porch Open Slab 120.00
1 Porch Slab Roof Ceil 114.00
1 Rough In Rough In 1.00





Account Parcel Account Type Tax Year Buildings Actual Value Local Govt Assessed Value School Assessed Value
R8664800 095923035002 Residential 2026 1 388,626 24,290 27,400

Type Code Description Actual Value Local Govt Assessed Value School Assessed Value Acres Land SqFt
Improvement 1212 SINGLE FAMILY RESIDENTIAL IMPROVEMENTS 303,626 18,980 21,410 0.000 0
Land 1112 SINGLE FAMILY RESIDENTIAL-LAND 85,000 5,310 5,990 0.141 6,149
Totals - - 388,626 24,290 27,400 0.141 6,149


Account Parcel Account Type Tax Year Buildings Actual Value Local Govt Assessed Value School Assessed Value
R8664800 095923035002 Residential 2026 1 388,626 24,290 27,400

Tax Area District ID District Name Local Govt
Mill Levy
School
Mill Levy
Estimated
Taxes
0663 0700 AIMS JUNIOR COLLEGE 6.313 0.000 $153.34
0663 0405 EVANS CITY 3.536 0.000 $85.89
0663 0534 EVANS FIRE 15.500 0.000 $376.50
0663 1050 HIGH PLAINS LIBRARY 3.044 0.000 $73.94
0663 0301 NORTHERN COLORADO WATER (NCW) 1.000 0.000 $24.29
0663 0206 SCHOOL DIST 6-GREELEY 0.000 47.615 $1,304.65
0663 0100 WELD COUNTY 15.956 0.000 $387.57
0663 1200 WEST GREELEY CONSERVATION 0.414 0.000 $10.06
Total - - 45.763 47.615 $2,416.23


The estimate of tax is based on the prior year mill levy and the 2025 projected assessment rates. Mill levies and tax estimates will be updated yearly on December 22nd for the current year. Additional information can be found at https://assessor.weld.gov










Select Reports to Print: