Account: R8666300

April 5, 2026

Account Parcel Account Type Tax Year Buildings Actual Value Local Govt Assessed Value School Assessed Value
R8666300 095923035017 Residential 2026 1 441,160 27,570 31,100

Legal
EVS 3ACH L17 BLK12 ASHCROFT HEIGHTS 3RD FG

Subdivision Block Lot Land Economic Area
ASHCROFT HEIGHTS 3RD FG 12 17 ASHCROFT HEIGHTS

Property Address Property City Section Township Range
3604 LODGEPOLE AVE EVANS 23 05 66




Account Parcel Account Type Tax Year Buildings Actual Value Local Govt Assessed Value School Assessed Value
R8666300 095923035017 Residential 2026 1 441,160 27,570 31,100

Account Owner Name Address
R8666300 BUTLER JOSEPH C 3604 LODGEPOLE AVE EVANS, CO 806209108
R8666300 SIRACUSA JACKIE A


Account Parcel Account Type Tax Year Buildings Actual Value Local Govt Assessed Value School Assessed Value
R8666300 095923035017 Residential 2026 1 441,160 27,570 31,100

Reception Rec Date Type Grantor Grantee Doc Fee Sale Date Sale Price
2756848 NA SUB SUBDIVISION ASHCROFT HEIGHTS 3RD FG 0.00 NA 0
2818883 01-12-2001 WD ASHCROFT HEIGHTS INVESTMENT LLC JOURNEY HOMES LLC 582.60 01-10-2001 5,826,000
2818884 01-12-2001 WD JOURNEY HOMES LLC J & J CONSTRUCTION OF NORTHERN COLO LLC 378.20 01-10-2001 3,782,000
2818898 01-12-2001 WD J & J CONSTRUCTION OF NORTHERN COLO LLC NORTHWEST DEVELOPERS LLC 34.50 01-10-2001 345,000
2969692 07-17-2002 WD NORTHWEST DEVELOPERS LLC MIZE LAURA E 15.55 07-15-2002 155,500
3321635 09-12-2005 WD MIZE LAURA E LANDAMERICA ONESTOP INC 16.80 07-11-2005 168,000
3321636 09-12-2005 WD LANDAMERICA ONESTOP INC BUTLER JOSEPH C & 16.80 08-03-2005 168,000
3572379 08-14-2008 QCN BUTLER JOSEPH C & BUTLER JOSEPH C & 0.00 08-14-2008 0



Account Parcel Account Type Tax Year Buildings Actual Value Local Govt Assessed Value School Assessed Value
R8666300 095923035017 Residential 2026 1 441,160 27,570 31,100

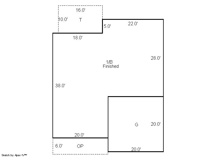
Building 1

AccountNo Building ID Occupancy
R8666300 1 Single Family Residential


ID Type NBHD Occupancy % Complete Bedrooms Baths
1 Residential 2E0002 Single Family Residential 100 4 3.00


ID Exterior Roof Cover Interior HVAC Perimeter Units Unit Type Make
1 Frame Hardboard Composition Shingle Drywall Central Air to Air 0 0 NA NA


ID Square Ft Condo SF Total Basement SF Finished Basement SF Garage SF Carport SF Balcony SF Porch SF
1 1,330 0 1,330 1,330 400 0 0 120


Built As Details for Building 1
ID Built As Square Ft Year Built Stories Length Width
1.00 Ranch 1 Story 1,330 2002 1 0 0


Additional Details for Building 1
ID Detail Type Description Units
1 Basement Finished 1330.00
1 Basement Total Basement SF 1330.00
1 Fixture Full Bath 3.00
1 Garage Attached 400.00
1 Porch Open Slab 160.00
1 Porch Slab Roof Ceil 120.00





Account Parcel Account Type Tax Year Buildings Actual Value Local Govt Assessed Value School Assessed Value
R8666300 095923035017 Residential 2026 1 441,160 27,570 31,100

Type Code Description Actual Value Local Govt Assessed Value School Assessed Value Acres Land SqFt
Improvement 1212 SINGLE FAMILY RESIDENTIAL IMPROVEMENTS 356,160 22,260 25,110 0.000 0
Land 1112 SINGLE FAMILY RESIDENTIAL-LAND 85,000 5,310 5,990 0.149 6,479
Totals - - 441,160 27,570 31,100 0.149 6,479


Account Parcel Account Type Tax Year Buildings Actual Value Local Govt Assessed Value School Assessed Value
R8666300 095923035017 Residential 2026 1 441,160 27,570 31,100

Tax Area District ID District Name Local Govt
Mill Levy
School
Mill Levy
Estimated
Taxes
0663 0700 AIMS JUNIOR COLLEGE 6.313 0.000 $174.05
0663 0405 EVANS CITY 3.536 0.000 $97.49
0663 0534 EVANS FIRE 15.500 0.000 $427.34
0663 1050 HIGH PLAINS LIBRARY 3.044 0.000 $83.92
0663 0301 NORTHERN COLORADO WATER (NCW) 1.000 0.000 $27.57
0663 0206 SCHOOL DIST 6-GREELEY 0.000 47.615 $1,480.83
0663 0100 WELD COUNTY 15.956 0.000 $439.91
0663 1200 WEST GREELEY CONSERVATION 0.414 0.000 $11.41
Total - - 45.763 47.615 $2,742.51


The estimate of tax is based on the prior year mill levy and the 2025 projected assessment rates. Mill levies and tax estimates will be updated yearly on December 22nd for the current year. Additional information can be found at https://assessor.weld.gov










Select Reports to Print: