Account: R8795700
April 4, 2026
| Account | Parcel | Account Type | Tax Year | Buildings | Actual Value | Local Govt Assessed Value | School Assessed Value |
|---|---|---|---|---|---|---|---|
| R8795700 | 131312002005 | Residential | 2026 | 1 | 592,178 | 37,020 | 41,750 |
| Legal |
|---|
| FIR 1BF L5 BLK2 BOOTH FARMS 1ST FG |
| Subdivision | Block | Lot | Land Economic Area |
|---|---|---|---|
| BOOTH FARMS 1ST FG | 2 | 5 | BOOTH FARMS |
| Property Address | Property City | Section | Township | Range |
|---|---|---|---|---|
| 5976 SPARROW AVE | FIRESTONE | 12 | 02 | 68 |
| Account | Parcel | Account Type | Tax Year | Buildings | Actual Value | Local Govt Assessed Value | School Assessed Value |
|---|---|---|---|---|---|---|---|
| R8795700 | 131312002005 | Residential | 2026 | 1 | 592,178 | 37,020 | 41,750 |
| Account | Owner Name | Address |
|---|---|---|
| R8795700 | STEVENSON ANNETTE L | 5976 SPARROW AVE FIRESTONE, CO 805045557 |
| R8795700 | STEVENSON ROBERT L |
| Account | Parcel | Account Type | Tax Year | Buildings | Actual Value | Local Govt Assessed Value | School Assessed Value |
|---|---|---|---|---|---|---|---|
| R8795700 | 131312002005 | Residential | 2026 | 1 | 592,178 | 37,020 | 41,750 |
| Reception | Rec Date | Type | Grantor | Grantee | Doc Fee | Sale Date | Sale Price |
|---|---|---|---|---|---|---|---|
| 2774066 | 06-09-2000 | WD | ORR/HALL LLC | RYLAND GROUP INC | 253.45 | 06-09-2000 | 2,534,500 |
| 2774067 | NA | SUB | SUBDIVISION | BOOTH FARMS 1ST FG | 0.00 | NA | 0 |
| 2817717 | 01-05-2001 | SWD | RYLAND GROUP INC | RICHMOND AMERICAN HOMES OF COLORADO INC | 198.00 | 12-28-2000 | 1,980,000 |
| 3240870 | 12-03-2004 | WD | RICHMOND AMERICAN HOMES OF CO INC | OLIVER RICHARD M & | 31.20 | 11-29-2004 | 312,000 |
| 4184216 | 02-29-2016 | DTHC | OLIVER RICHARD MERRILL | OLIVER RICHARD MERRILL | 0.00 | 02-14-2010 | 0 |
| 4277826 | 02-13-2017 | BN | OLIVER PATRICIA J | OLIVER PATRICIA J (BN) | 0.00 | 02-12-2017 | 0 |
| 4347956 | 10-30-2017 | DTHC | OLIVER PATRICIA J (BN) | BENNETT ANGELA C; KOEHLER JOHNATHAN R; HERRINGTON CHRISTINE Y | 0.00 | 10-16-2017 | 0 |
| 4370622 | 01-25-2018 | WD | BENNETT ANGELA C; KOEHLER JOHNATHAN R; HERRINGTON CHRISTINE Y | HENDRICKS ANNETTE L; STEVENSON ROBERT L | 40.45 | 01-23-2018 | 404,500 |
| 4535286 | 10-25-2019 | QCN | HENDRICKS ANNETTE L | STEVENSON ANNETTE L | 0.00 | 10-18-2019 | 0 |
*If the hyperlink for the reception number does not work, try a manual search in the Clerk and Recorder records. Use the Grantor or Grantee in your search.
| Account | Parcel | Account Type | Tax Year | Buildings | Actual Value | Local Govt Assessed Value | School Assessed Value |
|---|---|---|---|---|---|---|---|
| R8795700 | 131312002005 | Residential | 2026 | 1 | 592,178 | 37,020 | 41,750 |
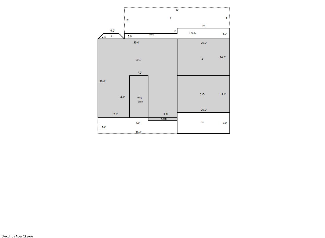
Building 1
| AccountNo | Building ID | Occupancy |
|---|---|---|
| R8795700 | 1 | Single Family Residential |
| ID | Type | NBHD | Occupancy | % Complete | Bedrooms | Baths |
|---|---|---|---|---|---|---|
| 1 | Residential | 3F0037 | Single Family Residential | 100 | 4 | 3.00 |
| ID | Exterior | Roof Cover | Interior | HVAC | Perimeter | Units | Unit Type | Make |
|---|---|---|---|---|---|---|---|---|
| 1 | Frame Hardboard | Composition Shingle | Drywall | Central Air to Air | 398 | 0 | NA | NA |
| ID | Square Ft | Condo SF | Total Basement SF | Finished Basement SF | Garage SF | Carport SF | Balcony SF | Porch SF |
|---|---|---|---|---|---|---|---|---|
| 1 | 2,675 | 0 | 900 | 0 | 440 | 0 | 0 | 180 |
| ID | Built As | Square Ft | Year Built | Stories | Length | Width |
|---|---|---|---|---|---|---|
| 1.00 | 2 Story | 2,675 | 2001 | 2 | 0 | 0 |
| ID | Detail Type | Description | Units |
|---|---|---|---|
| 1 | Add On | Fireplace Gas | 1.00 |
| 1 | Basement | Total Basement SF | 900.00 |
| 1 | Fixture | Full Bath | 2.00 |
| 1 | Fixture | Half Bath | 1.00 |
| 1 | Garage | Attached | 440.00 |
| 1 | Porch | Open Slab | 360.00 |
| 1 | Porch | Slab Roof Ceil | 180.00 |
| 1 | Rough In | Rough In | 1.00 |
| Account | Parcel | Account Type | Tax Year | Buildings | Actual Value | Local Govt Assessed Value | School Assessed Value |
|---|---|---|---|---|---|---|---|
| R8795700 | 131312002005 | Residential | 2026 | 1 | 592,178 | 37,020 | 41,750 |
| Type | Code | Description | Actual Value | Local Govt Assessed Value | School Assessed Value | Acres | Land SqFt |
|---|---|---|---|---|---|---|---|
| Improvement | 1212 | SINGLE FAMILY RESIDENTIAL IMPROVEMENTS | 474,178 | 29,640 | 33,430 | 0.000 | 0 |
| Land | 1112 | SINGLE FAMILY RESIDENTIAL-LAND | 118,000 | 7,380 | 8,320 | 0.138 | 6,000 |
| Totals | - | - | 592,178 | 37,020 | 41,750 | 0.138 | 6,000 |
Comparable sales for your Residential or Commercial property may be found using our SALES SEARCH TOOL
Values are updated annually on May 1st for Real Property and June 15th for Personal Property and Oil and Gas.
| Account | Parcel | Account Type | Tax Year | Buildings | Actual Value | Local Govt Assessed Value | School Assessed Value |
|---|---|---|---|---|---|---|---|
| R8795700 | 131312002005 | Residential | 2026 | 1 | 592,178 | 37,020 | 41,750 |
| Tax Area | District ID | District Name | Local Govt Mill Levy |
School Mill Levy |
Estimated Taxes |
|---|---|---|---|---|---|
| 2556 | 0900 | CARBON VALLEY REC | 4.427 | 0.000 | $163.89 |
| 2556 | 0406 | FIRESTONE TOWN | 6.805 | 0.000 | $251.92 |
| 2556 | 0507 | FREDERICK-FIRESTONE FIRE | 15.559 | 0.000 | $575.99 |
| 2556 | 1050 | HIGH PLAINS LIBRARY | 3.044 | 0.000 | $112.69 |
| 2556 | 0301 | NORTHERN COLORADO WATER (NCW) | 1.000 | 0.000 | $37.02 |
| 2556 | 0213 | SCHOOL DIST RE1J-LONGMONT | 0.000 | 57.717 | $2,409.68 |
| 2556 | 0620 | ST VRAIN SANITATION | 0.316 | 0.000 | $11.70 |
| 2556 | 0100 | WELD COUNTY | 15.956 | 0.000 | $590.69 |
| Total | - | - | 47.107 | 57.717 | $4,153.59 |
The estimate of tax is based on the prior year mill levy and the 2025 projected assessment rates. Mill levies and tax estimates will be updated yearly on December 22nd for the current year. Additional information can be found at https://assessor.weld.gov


