Account: R8811000
April 4, 2026
| Account | Parcel | Account Type | Tax Year | Buildings | Actual Value | Local Govt Assessed Value | School Assessed Value |
|---|---|---|---|---|---|---|---|
| R8811000 | 095908022005 | Residential | 2026 | 1 | 433,006 | 27,070 | 30,530 |
| Legal |
|---|
| GR BR1 L5 BLK3 BOOMERANG RANCH 1ST FG |
| Subdivision | Block | Lot | Land Economic Area |
|---|---|---|---|
| BOOMERANG RANCH 1ST FG | 3 | 5 | BOOMERANG RANCH |
| Property Address | Property City | Section | Township | Range |
|---|---|---|---|---|
| 1214 78TH AVE | GREELEY | 08 | 05 | 66 |
| Account | Parcel | Account Type | Tax Year | Buildings | Actual Value | Local Govt Assessed Value | School Assessed Value |
|---|---|---|---|---|---|---|---|
| R8811000 | 095908022005 | Residential | 2026 | 1 | 433,006 | 27,070 | 30,530 |
| Account | Owner Name | Address |
|---|---|---|
| R8811000 | ANGSTMAN JOSEPH BURKE | 1214 78TH AVE GREELEY, CO 806348868 |
| R8811000 | ANGSTMAN KELSEY ANN |
| Account | Parcel | Account Type | Tax Year | Buildings | Actual Value | Local Govt Assessed Value | School Assessed Value |
|---|---|---|---|---|---|---|---|
| R8811000 | 095908022005 | Residential | 2026 | 1 | 433,006 | 27,070 | 30,530 |
| Reception | Rec Date | Type | Grantor | Grantee | Doc Fee | Sale Date | Sale Price |
|---|---|---|---|---|---|---|---|
| 2768551 | NA | SUB | SUBDIVISION | BOOMERANG RANCH 1ST FG | 0.00 | NA | 0 |
| 2771819 | 06-01-2000 | QCN | RODRIGUEZ JESS RICHARD JR (1/3 INT) | GALLAGHER DANIEL PATRICK JR | 0.00 | 05-23-2000 | 0 |
| 2771820 | 06-01-2000 | WD | GALLAGHER DANIEL PATRICK JR | BOOMERANG RANCH LLC | 50.05 | 05-23-2000 | 500,500 |
| 3116728 | 10-14-2003 | WD | ADARE HOMES BOOMERANG RANCH LLC | CHAPMAN LYNDA K | 21.79 | 08-13-2003 | 217,900 |
| 3952810 | 08-02-2013 | WDE | CHAPMAN LYNDA K | NATION LARRY W | 21.20 | 07-31-2013 | 212,000 |
| 4324156 | 08-03-2017 | WD | NATION LARRY W; NATION SUZANNE K | ANGSTMAN KELSEY ANN; ANGSTMAN JOSEPH BURKE | 33.00 | 07-31-2017 | 330,000 |
*If the hyperlink for the reception number does not work, try a manual search in the Clerk and Recorder records. Use the Grantor or Grantee in your search.
| Account | Parcel | Account Type | Tax Year | Buildings | Actual Value | Local Govt Assessed Value | School Assessed Value |
|---|---|---|---|---|---|---|---|
| R8811000 | 095908022005 | Residential | 2026 | 1 | 433,006 | 27,070 | 30,530 |
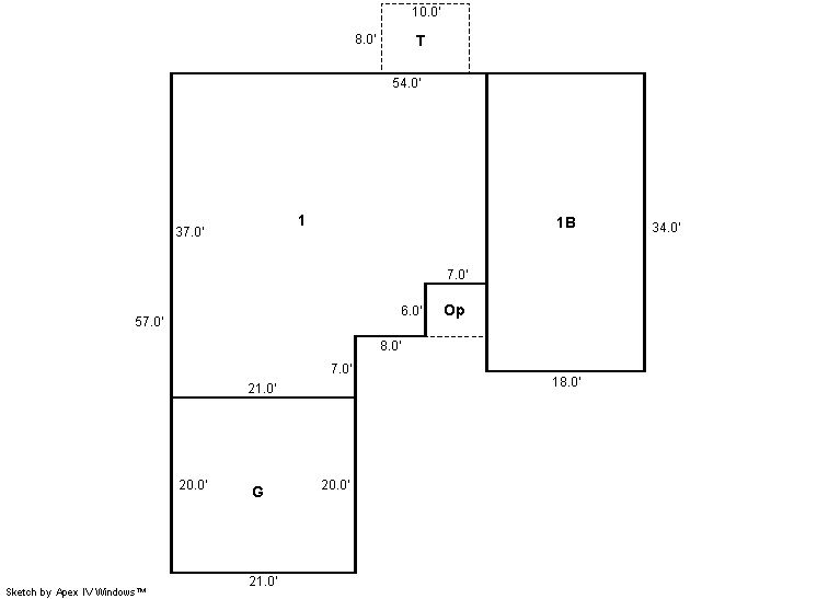
Building 1
| AccountNo | Building ID | Occupancy |
|---|---|---|
| R8811000 | 1 | Single Family Residential |
| ID | Type | NBHD | Occupancy | % Complete | Bedrooms | Baths |
|---|---|---|---|---|---|---|
| 1 | Residential | 2G2024 | Single Family Residential | 100 | 3 | 2.00 |
| ID | Exterior | Roof Cover | Interior | HVAC | Perimeter | Units | Unit Type | Make |
|---|---|---|---|---|---|---|---|---|
| 1 | Frame Siding | Composition Shingle | Drywall | Central Air to Air | 0 | 0 | NA | NA |
| ID | Square Ft | Condo SF | Total Basement SF | Finished Basement SF | Garage SF | Carport SF | Balcony SF | Porch SF |
|---|---|---|---|---|---|---|---|---|
| 1 | 1,797 | 0 | 612 | 0 | 420 | 0 | 0 | 80 |
| ID | Built As | Square Ft | Year Built | Stories | Length | Width |
|---|---|---|---|---|---|---|
| 1.00 | Ranch 1 Story | 1,797 | 2002 | 1 | 0 | 0 |
| ID | Detail Type | Description | Units |
|---|---|---|---|
| 1 | Add On | Fireplace Gas | 1.00 |
| 1 | Basement | Total Basement SF | 612.00 |
| 1 | Fixture | Full Bath | 2.00 |
| 1 | Garage | Attached | 420.00 |
| 1 | Porch | Open Slab | 80.00 |
| 1 | Porch | Slab Roof Ceil | 42.00 |
| 1 | Rough In | Rough In | 1.00 |
| Account | Parcel | Account Type | Tax Year | Buildings | Actual Value | Local Govt Assessed Value | School Assessed Value |
|---|---|---|---|---|---|---|---|
| R8811000 | 095908022005 | Residential | 2026 | 1 | 433,006 | 27,070 | 30,530 |
| Type | Code | Description | Actual Value | Local Govt Assessed Value | School Assessed Value | Acres | Land SqFt |
|---|---|---|---|---|---|---|---|
| Improvement | 1212 | SINGLE FAMILY RESIDENTIAL IMPROVEMENTS | 354,006 | 22,130 | 24,960 | 0.000 | 0 |
| Land | 1112 | SINGLE FAMILY RESIDENTIAL-LAND | 79,000 | 4,940 | 5,570 | 0.164 | 7,150 |
| Totals | - | - | 433,006 | 27,070 | 30,530 | 0.164 | 7,150 |
Comparable sales for your Residential or Commercial property may be found using our SALES SEARCH TOOL
Values are updated annually on May 1st for Real Property and June 15th for Personal Property and Oil and Gas.
| Account | Parcel | Account Type | Tax Year | Buildings | Actual Value | Local Govt Assessed Value | School Assessed Value |
|---|---|---|---|---|---|---|---|
| R8811000 | 095908022005 | Residential | 2026 | 1 | 433,006 | 27,070 | 30,530 |
| Tax Area | District ID | District Name | Local Govt Mill Levy |
School Mill Levy |
Estimated Taxes |
|---|---|---|---|---|---|
| 0446 | 0700 | AIMS JUNIOR COLLEGE | 6.313 | 0.000 | $170.89 |
| 0446 | 1051 | CLEARVIEW LIBRARY | 3.546 | 0.000 | $95.99 |
| 0446 | 0411 | GREELEY CITY | 11.274 | 0.000 | $305.19 |
| 0446 | 0301 | NORTHERN COLORADO WATER (NCW) | 1.000 | 0.000 | $27.07 |
| 0446 | 0204 | SCHOOL DIST RE4-WINDSOR | 0.000 | 46.646 | $1,424.10 |
| 0446 | 0100 | WELD COUNTY | 15.956 | 0.000 | $431.93 |
| 0446 | 1200 | WEST GREELEY CONSERVATION | 0.414 | 0.000 | $11.21 |
| Total | - | - | 38.503 | 46.646 | $2,466.38 |
The estimate of tax is based on the prior year mill levy and the 2025 projected assessment rates. Mill levies and tax estimates will be updated yearly on December 22nd for the current year. Additional information can be found at https://assessor.weld.gov



