Account: R8814700
April 1, 2026
| Account | Parcel | Account Type | Tax Year | Buildings | Actual Value | Local Govt Assessed Value | School Assessed Value |
|---|---|---|---|---|---|---|---|
| R8814700 | 095924203003 | Commercial | 2026 | 1 | 490,650 | 132,480 | 132,480 |
| Legal |
|---|
| GR OPCC1A UNIT 3 BLDG A OAKRIDGE PLAZA COMMERCIAL CONDO OF GREELEY 1ST AMD |
| Subdivision | Block | Lot | Land Economic Area |
|---|---|---|---|
| OAKRIDGE PLAZA COMM CONDO 1ST AM | 3 | GREELEY 29TH ST (28TH AVE TO 35TH AVE) COMMERCIAL |
| Property Address | Property City | Section | Township | Range |
|---|---|---|---|---|
| 2881 31ST AVE A-3 | GREELEY | 24 | 05 | 66 |
| Account | Parcel | Account Type | Tax Year | Buildings | Actual Value | Local Govt Assessed Value | School Assessed Value |
|---|---|---|---|---|---|---|---|
| R8814700 | 095924203003 | Commercial | 2026 | 1 | 490,650 | 132,480 | 132,480 |
| Account | Owner Name | Address |
|---|---|---|
| R8814700 | 2881 E 31 STREET LLC | 4705 PENDLETON AVE EVANS, CO 806349165 |
| Account | Parcel | Account Type | Tax Year | Buildings | Actual Value | Local Govt Assessed Value | School Assessed Value |
|---|---|---|---|---|---|---|---|
| R8814700 | 095924203003 | Commercial | 2026 | 1 | 490,650 | 132,480 | 132,480 |
| Reception | Rec Date | Type | Grantor | Grantee | Doc Fee | Sale Date | Sale Price |
|---|---|---|---|---|---|---|---|
| 2776566 | NA | SUB | SUBDIVISION | OAKRIDGE PLAZA COMMERCIAL CONDO | 0.00 | NA | 0 |
| 2777903 | 06-30-2000 | WD | FOUST CONSTRUCTION CO INC | JOURNEY HOMES LLC | 18.04 | 06-28-2000 | 180,400 |
| 2827652 | 02-23-2001 | WD | JOURNEY HOMES LLC | BAKER JAMES L & JANICE E | 11.00 | 02-20-2001 | 110,000 |
| 2894129 | 10-23-2001 | WD | BAKER JAMES L & JANICE E | HOME SURVEY INC | 10.00 | 10-19-2001 | 100,000 |
| 3419971 | 09-15-2006 | QCN | HOME SURVEY INC | MILLER MICHAEL | 0.00 | 09-13-2006 | 0 |
| 3476387 | 05-17-2007 | WD | MILLER MICHAEL | ULTIMATE CREATIONS LLC | 19.99 | 05-16-2007 | 199,900 |
| 4066120 | 12-04-2014 | WD | ULTIMATE CREATIONS LLC | PROFIRE ENERGY INC | 16.50 | 12-03-2014 | 165,000 |
| 4818668 | 04-13-2022 | SWD | PROFIRE ENERGY INC | MCCORMICK MECHANICAL INCORPORATED | 32.50 | 04-12-2022 | 325,000 |
| 4896610 | 05-05-2023 | SWDN | MCCORMICK MECHANICAL INCORPORATED | 2881 E 31 STREET LLC | 0.00 | 02-19-2023 | 0 |
*If the hyperlink for the reception number does not work, try a manual search in the Clerk and Recorder records. Use the Grantor or Grantee in your search.
| Account | Parcel | Account Type | Tax Year | Buildings | Actual Value | Local Govt Assessed Value | School Assessed Value |
|---|---|---|---|---|---|---|---|
| R8814700 | 095924203003 | Commercial | 2026 | 1 | 490,650 | 132,480 | 132,480 |
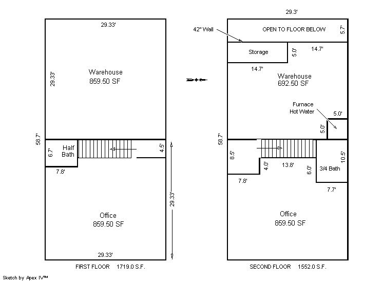
Building 1
| AccountNo | Building ID | Occupancy |
|---|---|---|
| R8814700 | 1 | Warehouse |
| ID | Type | NBHD | Occupancy | % Complete | Bedrooms | Baths |
|---|---|---|---|---|---|---|
| 1 | Condo | 6905 | Warehouse | 100 | 0 | 0.00 |
| ID | Exterior | Roof Cover | Interior | HVAC | Perimeter | Units | Unit Type | Make |
|---|---|---|---|---|---|---|---|---|
| 1 | NA | NA | NA | Package Unit | 420 | 0 | Inside | NA |
| ID | Square Ft | Condo SF | Total Basement SF | Finished Basement SF | Garage SF | Carport SF | Balcony SF | Porch SF |
|---|---|---|---|---|---|---|---|---|
| 1 | 3,271 | 1,719 | 0 | 0 | 0 | 0 | 0 | 0 |
| ID | Built As | Square Ft | Year Built | Stories | Length | Width |
|---|---|---|---|---|---|---|
| 1.00 | Industrial Flex Mall Building | 3,271 | 1999 | 1 | 0 | 0 |
| ID | Detail Type | Description | Units |
|---|---|---|---|
| 1 | Add On | Com Office Finish Average | 907.00 |
| 1 | Mezzanine | Office | 859.00 |
| 1 | Mezzanine | Storage | 693.00 |
| Account | Parcel | Account Type | Tax Year | Buildings | Actual Value | Local Govt Assessed Value | School Assessed Value |
|---|---|---|---|---|---|---|---|
| R8814700 | 095924203003 | Commercial | 2026 | 1 | 490,650 | 132,480 | 132,480 |
| Type | Code | Description | Actual Value | Local Govt Assessed Value | School Assessed Value | Acres | Land SqFt |
|---|---|---|---|---|---|---|---|
| Improvement | 2245 | COMMERCIAL CONDOS | 490,650 | 132,480 | 132,480 | 0.000 | 0 |
| Totals | - | - | 490,650 | 132,480 | 132,480 | 0.000 | 0 |
Comparable sales for your Residential or Commercial property may be found using our SALES SEARCH TOOL
Values are updated annually on May 1st for Real Property and June 15th for Personal Property and Oil and Gas.
| Account | Parcel | Account Type | Tax Year | Buildings | Actual Value | Local Govt Assessed Value | School Assessed Value |
|---|---|---|---|---|---|---|---|
| R8814700 | 095924203003 | Commercial | 2026 | 1 | 490,650 | 132,480 | 132,480 |
| Tax Area | District ID | District Name | Local Govt Mill Levy |
School Mill Levy |
Estimated Taxes |
|---|---|---|---|---|---|
| 0600 | 0700 | AIMS JUNIOR COLLEGE | 6.313 | 0.000 | $836.35 |
| 0600 | 0411 | GREELEY CITY | 11.274 | 0.000 | $1,493.58 |
| 0600 | 1050 | HIGH PLAINS LIBRARY | 3.044 | 0.000 | $403.27 |
| 0600 | 0301 | NORTHERN COLORADO WATER (NCW) | 1.000 | 0.000 | $132.48 |
| 0600 | 0206 | SCHOOL DIST 6-GREELEY | 0.000 | 47.615 | $6,308.04 |
| 0600 | 0100 | WELD COUNTY | 15.956 | 0.000 | $2,113.85 |
| Total | - | - | 37.587 | 47.615 | $11,287.56 |
The estimate of tax is based on the prior year mill levy and the 2025 projected assessment rates. Mill levies and tax estimates will be updated yearly on December 22nd for the current year. Additional information can be found at https://assessor.weld.gov





