Account: R8852000
April 4, 2026
| Account | Parcel | Account Type | Tax Year | Buildings | Actual Value | Local Govt Assessed Value | School Assessed Value |
|---|---|---|---|---|---|---|---|
| R8852000 | 095903321005 | Residential | 2026 | 1 | 547,630 | 34,230 | 38,610 |
| Legal |
|---|
| GR 6WP L5 BLK2 WEST POINT 6TH FG |
| Subdivision | Block | Lot | Land Economic Area |
|---|---|---|---|
| WEST POINT SUB 6TH FG | 2 | 5 | WEST POINT |
| Property Address | Property City | Section | Township | Range |
|---|---|---|---|---|
| 528 54TH AVE | GREELEY | 03 | 05 | 66 |
| Account | Parcel | Account Type | Tax Year | Buildings | Actual Value | Local Govt Assessed Value | School Assessed Value |
|---|---|---|---|---|---|---|---|
| R8852000 | 095903321005 | Residential | 2026 | 1 | 547,630 | 34,230 | 38,610 |
| Account | Owner Name | Address |
|---|---|---|
| R8852000 | RIOS JULIO C | 528 54TH AVE GREELEY, CO 806344470 |
| R8852000 | RIOS SARAH J |
| Account | Parcel | Account Type | Tax Year | Buildings | Actual Value | Local Govt Assessed Value | School Assessed Value |
|---|---|---|---|---|---|---|---|
| R8852000 | 095903321005 | Residential | 2026 | 1 | 547,630 | 34,230 | 38,610 |
| Reception | Rec Date | Type | Grantor | Grantee | Doc Fee | Sale Date | Sale Price |
|---|---|---|---|---|---|---|---|
| 2251379 | 05-28-1994 | WDN | WEST POINT PARTNERSHIP; WEST POINT | WEST POINT DEVELOPMENT CO INC | 0.00 | 05-24-1991 | 0 |
| 2792033 | NA | SUB | SUBDIVISION | WEST POINT 6TH FG | 0.00 | NA | 0 |
| 2872389 | 08-07-2001 | WD | WEST POINT DEVELOPMENT CO INC | LIFESTYLE HOMES INC | 189.10 | 08-03-2001 | 1,891,000 |
| 3132654 | 12-05-2003 | QCN | LIFESTYLE HOMES INC | WEST POINT DEVELOPMENT CO INC | 0.00 | 12-03-2003 | 0 |
| 3227756 | 10-15-2004 | QCN | WEST POINT DEVELOPMENT CO INC | CLARKSON LAND LLC | 0.00 | 10-11-2004 | 0 |
| 3246650 | 12-27-2004 | QCN | CLARKSON LAND LLC | WEST POINT DEVELOPMENT CO INC | 0.00 | 12-17-2004 | 0 |
| 3841678 | 04-30-2012 | WDN | WEST POINT DEVELOPMENT COMPANY INC | FARMERS BANK | 0.00 | 09-20-2011 | 0 |
| 3875306 | 09-24-2012 | SWD | FARMERS BANK | WEST POINTE LOTS LLC | 60.00 | 09-17-2012 | 600,000 |
| 4013850 | 05-05-2014 | SWD | WEST POINTE LOTS LLC | GREELEY GUEST HOUSE | 71.30 | 05-01-2014 | 713,000 |
| 4122337 | 07-08-2015 | QCN | GREELEY GUEST HOUSE LLC | BENCHMARK CUSTOM HOMES LLC | 0.00 | 07-07-2015 | 0 |
| 4204339 | 05-17-2016 | WD | BENCHMARK CUSTOM HOMES LLC | RIOS JULIO C; RIOS SARAH J | 37.90 | 05-10-2016 | 379,000 |
| 4425046 | 08-22-2018 | QCN | RIOS SARAH J | RIOS JULIO C | 0.00 | 08-18-2018 | 0 |
| 4808231 | 03-07-2022 | QCN | RIOS JULIO C | RIOS SARAH J | 0.00 | 02-23-2022 | 0 |
*If the hyperlink for the reception number does not work, try a manual search in the Clerk and Recorder records. Use the Grantor or Grantee in your search.
| Account | Parcel | Account Type | Tax Year | Buildings | Actual Value | Local Govt Assessed Value | School Assessed Value |
|---|---|---|---|---|---|---|---|
| R8852000 | 095903321005 | Residential | 2026 | 1 | 547,630 | 34,230 | 38,610 |
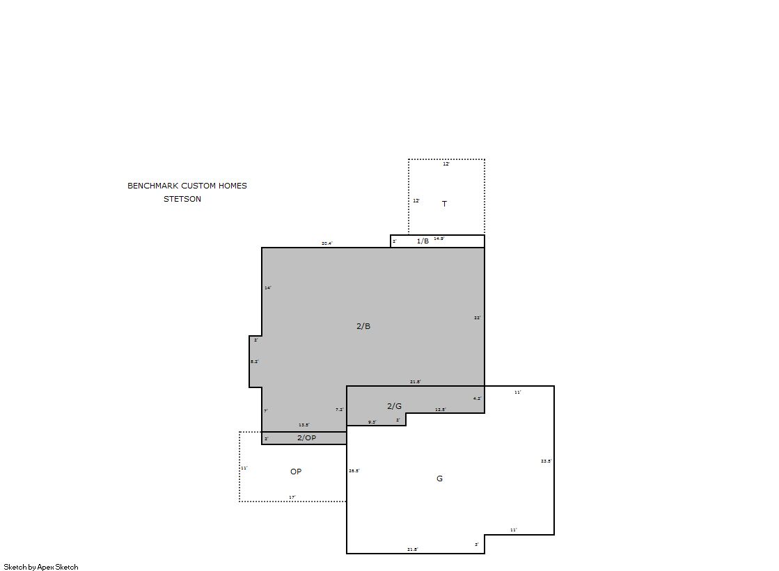
Building 1
| AccountNo | Building ID | Occupancy |
|---|---|---|
| R8852000 | 1 | Single Family Residential |
| ID | Type | NBHD | Occupancy | % Complete | Bedrooms | Baths |
|---|---|---|---|---|---|---|
| 1 | Residential | 2G3010 | Single Family Residential | 100 | 4 | 3.00 |
| ID | Exterior | Roof Cover | Interior | HVAC | Perimeter | Units | Unit Type | Make |
|---|---|---|---|---|---|---|---|---|
| 1 | Frame Siding | Composition Shingle | Drywall | Central Air to Air | 274 | 0 | NA | NA |
| ID | Square Ft | Condo SF | Total Basement SF | Finished Basement SF | Garage SF | Carport SF | Balcony SF | Porch SF |
|---|---|---|---|---|---|---|---|---|
| 1 | 1,947 | 0 | 920 | 0 | 836 | 0 | 0 | 187 |
| ID | Built As | Square Ft | Year Built | Stories | Length | Width |
|---|---|---|---|---|---|---|
| 1.00 | 2 Story | 1,947 | 2015 | 2 | 0 | 0 |
| ID | Detail Type | Description | Units |
|---|---|---|---|
| 1 | Add On | Fireplace Gas | 1.00 |
| 1 | Basement | Total Basement SF | 920.00 |
| 1 | Fixture | Full Bath | 2.00 |
| 1 | Fixture | Half Bath | 1.00 |
| 1 | Garage | Attached | 836.00 |
| 1 | Porch | Open Slab | 144.00 |
| 1 | Porch | Slab Roof Ceil | 187.00 |
| 1 | Rough In | Rough In | 1.00 |
| Account | Parcel | Account Type | Tax Year | Buildings | Actual Value | Local Govt Assessed Value | School Assessed Value |
|---|---|---|---|---|---|---|---|
| R8852000 | 095903321005 | Residential | 2026 | 1 | 547,630 | 34,230 | 38,610 |
| Type | Code | Description | Actual Value | Local Govt Assessed Value | School Assessed Value | Acres | Land SqFt |
|---|---|---|---|---|---|---|---|
| Improvement | 1212 | SINGLE FAMILY RESIDENTIAL IMPROVEMENTS | 432,630 | 27,040 | 30,500 | 0.000 | 0 |
| Land | 1112 | SINGLE FAMILY RESIDENTIAL-LAND | 115,000 | 7,190 | 8,110 | 0.322 | 14,038 |
| Totals | - | - | 547,630 | 34,230 | 38,610 | 0.322 | 14,038 |
Comparable sales for your Residential or Commercial property may be found using our SALES SEARCH TOOL
Values are updated annually on May 1st for Real Property and June 15th for Personal Property and Oil and Gas.
| Account | Parcel | Account Type | Tax Year | Buildings | Actual Value | Local Govt Assessed Value | School Assessed Value |
|---|---|---|---|---|---|---|---|
| R8852000 | 095903321005 | Residential | 2026 | 1 | 547,630 | 34,230 | 38,610 |
| Tax Area | District ID | District Name | Local Govt Mill Levy |
School Mill Levy |
Estimated Taxes |
|---|---|---|---|---|---|
| 0683 | 0700 | AIMS JUNIOR COLLEGE | 6.313 | 0.000 | $216.09 |
| 0683 | 0411 | GREELEY CITY | 11.274 | 0.000 | $385.91 |
| 0683 | 1050 | HIGH PLAINS LIBRARY | 3.044 | 0.000 | $104.20 |
| 0683 | 0301 | NORTHERN COLORADO WATER (NCW) | 1.000 | 0.000 | $34.23 |
| 0683 | 0206 | SCHOOL DIST 6-GREELEY | 0.000 | 47.615 | $1,838.42 |
| 0683 | 0100 | WELD COUNTY | 15.956 | 0.000 | $546.17 |
| 0683 | 1200 | WEST GREELEY CONSERVATION | 0.414 | 0.000 | $14.17 |
| Total | - | - | 38.001 | 47.615 | $3,139.19 |
The estimate of tax is based on the prior year mill levy and the 2025 projected assessment rates. Mill levies and tax estimates will be updated yearly on December 22nd for the current year. Additional information can be found at https://assessor.weld.gov


