Account: R8854500

April 5, 2026

Account Parcel Account Type Tax Year Buildings Actual Value Local Govt Assessed Value School Assessed Value
R8854500 095903322015 Residential 2026 1 658,332 41,150 46,410

Legal
GR 6WP L15 BLK3 WEST POINT 6TH FG

Subdivision Block Lot Land Economic Area
WEST POINT SUB 6TH FG 3 15 WEST POINT

Property Address Property City Section Township Range
5415 6TH ST GREELEY 03 05 66




Account Parcel Account Type Tax Year Buildings Actual Value Local Govt Assessed Value School Assessed Value
R8854500 095903322015 Residential 2026 1 658,332 41,150 46,410

Account Owner Name Address
R8854500 GILMORE ANDREW TAYLOR 5415 W 6TH ST GREELEY, CO 806344475


Account Parcel Account Type Tax Year Buildings Actual Value Local Govt Assessed Value School Assessed Value
R8854500 095903322015 Residential 2026 1 658,332 41,150 46,410

Reception Rec Date Type Grantor Grantee Doc Fee Sale Date Sale Price
2251379 05-28-1994 WDN WEST POINT PARTNERSHIP; WEST POINT WEST POINT DEVELOPMENT CO INC 0.00 05-24-1991 0
2872389 08-07-2001 WD WEST POINT DEVELOPMENT CO INC LIFESTYLE HOMES INC 189.10 08-03-2001 1,891,000
3132664 12-05-2003 WD LIFESTYLE HOMES INC RAMB LLC 6.00 12-01-2003 60,000
3190749 06-18-2004 QCN RAMB LLC SAPPHIRE CUSTOM HOMES INC 0.00 06-16-2004 0
3190750 06-18-2004 WD SAPPHIRE CUSTOM HOMES INC SULLIVAN JESSICA S & 33.75 06-16-2004 337,500
3868404 08-24-2012 PTDE SULLIVAN JESSICA S FEDERAL NATIONAL MORTGAGE ASSOCIATION 0.00 08-23-2012 0
3899632 01-02-2013 SWD FEDERAL NATIONAL MORTGAGE ASSOC GILMORE ANDREW T 30.70 12-27-2012 307,000
4329736 08-24-2017 QCN GILMORE ANDREW TAYLOR GILMORE ANDREW TAYLOR 0.00 08-15-2017 0



Account Parcel Account Type Tax Year Buildings Actual Value Local Govt Assessed Value School Assessed Value
R8854500 095903322015 Residential 2026 1 658,332 41,150 46,410

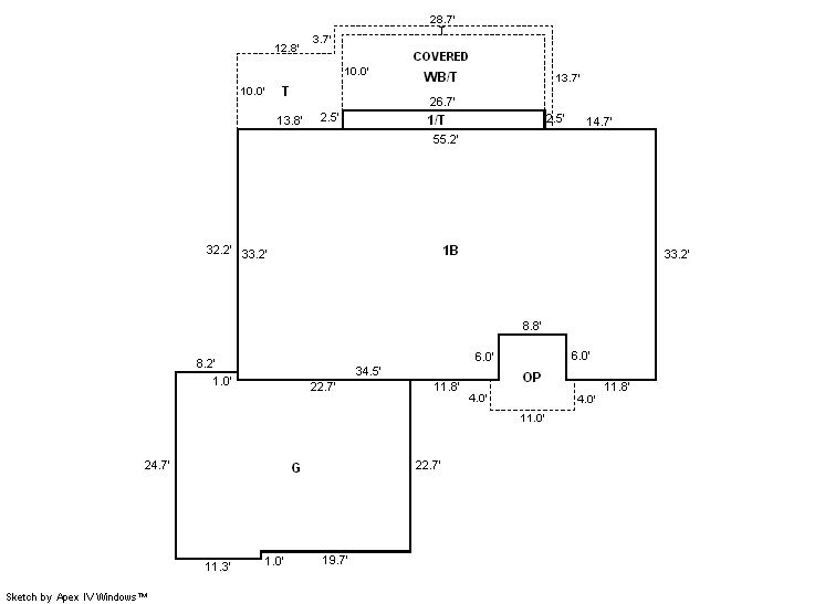
Building 1

AccountNo Building ID Occupancy
R8854500 1 Single Family Residential


ID Type NBHD Occupancy % Complete Bedrooms Baths
1 Residential 2G3010 Single Family Residential 100 4 3.00


ID Exterior Roof Cover Interior HVAC Perimeter Units Unit Type Make
1 Frame Siding Composition Shingle Drywall Central Air to Air 0 0 NA NA


ID Square Ft Condo SF Total Basement SF Finished Basement SF Garage SF Carport SF Balcony SF Porch SF
1 1,843 0 1,777 1,777 720 0 267 520


Built As Details for Building 1
ID Built As Square Ft Year Built Stories Length Width
1.00 Ranch 1 Story 1,843 2004 1 0 0


Additional Details for Building 1
ID Detail Type Description Units
1 Add On Fireplace Gas 1.00
1 Balcony Cover Wood Balc 267.00
1 Basement Finished 1777.00
1 Basement Total Basement SF 1777.00
1 Basement Walkout 1.00
1 Fixture Full Bath 3.00
1 Garage Attached 720.00
1 Porch Open Slab 520.00
1 Porch Slab Roof Ceil 97.00





Account Parcel Account Type Tax Year Buildings Actual Value Local Govt Assessed Value School Assessed Value
R8854500 095903322015 Residential 2026 1 658,332 41,150 46,410

Type Code Description Actual Value Local Govt Assessed Value School Assessed Value Acres Land SqFt
Improvement 1212 SINGLE FAMILY RESIDENTIAL IMPROVEMENTS 543,332 33,960 38,300 0.000 0
Land 1112 SINGLE FAMILY RESIDENTIAL-LAND 115,000 7,190 8,110 0.190 8,282
Totals - - 658,332 41,150 46,410 0.190 8,282


Account Parcel Account Type Tax Year Buildings Actual Value Local Govt Assessed Value School Assessed Value
R8854500 095903322015 Residential 2026 1 658,332 41,150 46,410

Tax Area District ID District Name Local Govt
Mill Levy
School
Mill Levy
Estimated
Taxes
0683 0700 AIMS JUNIOR COLLEGE 6.313 0.000 $259.78
0683 0411 GREELEY CITY 11.274 0.000 $463.93
0683 1050 HIGH PLAINS LIBRARY 3.044 0.000 $125.26
0683 0301 NORTHERN COLORADO WATER (NCW) 1.000 0.000 $41.15
0683 0206 SCHOOL DIST 6-GREELEY 0.000 47.615 $2,209.81
0683 0100 WELD COUNTY 15.956 0.000 $656.59
0683 1200 WEST GREELEY CONSERVATION 0.414 0.000 $17.04
Total - - 38.001 47.615 $3,773.55


The estimate of tax is based on the prior year mill levy and the 2025 projected assessment rates. Mill levies and tax estimates will be updated yearly on December 22nd for the current year. Additional information can be found at https://assessor.weld.gov










Select Reports to Print: