Account: R8854700

April 4, 2026

Account Parcel Account Type Tax Year Buildings Actual Value Local Govt Assessed Value School Assessed Value
R8854700 095903322017 Residential 2026 1 617,035 38,570 43,500

Legal
GR 6WP L17 BLK3 WEST POINT 6TH FG

Subdivision Block Lot Land Economic Area
WEST POINT SUB 6TH FG 3 17 WEST POINT

Property Address Property City Section Township Range
5407 6TH ST GREELEY 03 05 66




Account Parcel Account Type Tax Year Buildings Actual Value Local Govt Assessed Value School Assessed Value
R8854700 095903322017 Residential 2026 1 617,035 38,570 43,500

Account Owner Name Address
R8854700 SEGELKE RONALD D 5407 W 6TH ST GREELEY, CO 806344475
R8854700 SEGELKE MARCIA R


Account Parcel Account Type Tax Year Buildings Actual Value Local Govt Assessed Value School Assessed Value
R8854700 095903322017 Residential 2026 1 617,035 38,570 43,500

Reception Rec Date Type Grantor Grantee Doc Fee Sale Date Sale Price
2251379 05-28-1994 WDN WEST POINT PARTNERSHIP; WEST POINT WEST POINT DEVELOPMENT CO INC 0.00 05-24-1991 0
2792033 NA SUB SUBDIVISION WEST POINT 6TH FG 0.00 NA 0
2872389 08-07-2001 WD WEST POINT DEVELOPMENT CO INC LIFESTYLE HOMES INC 189.10 08-03-2001 1,891,000
3102411 09-03-2003 WD LIFESTYLE HOMES INC FELL GEORGE L 6.20 08-29-2003 62,000
3266241 03-07-2005 WD FELL GEORGE L SEGELKE RONALD D & 31.50 03-04-2005 315,000



Account Parcel Account Type Tax Year Buildings Actual Value Local Govt Assessed Value School Assessed Value
R8854700 095903322017 Residential 2026 1 617,035 38,570 43,500

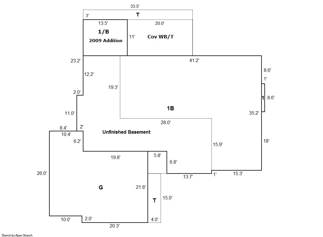
Building 1

AccountNo Building ID Occupancy
R8854700 1 Single Family Residential


ID Type NBHD Occupancy % Complete Bedrooms Baths
1 Residential 2G3010 Single Family Residential 100 5 3.00


ID Exterior Roof Cover Interior HVAC Perimeter Units Unit Type Make
1 Frame Siding Comp Shingle Heavy Drywall Central Air to Air 0 0 NA NA


ID Square Ft Condo SF Total Basement SF Finished Basement SF Garage SF Carport SF Balcony SF Porch SF
1 1,965 0 1,957 1,079 705 0 220 40


Built As Details for Building 1
ID Built As Square Ft Year Built Stories Length Width
1.00 Ranch 1 Story 1,965 2003 1 0 0


Additional Details for Building 1
ID Detail Type Description Units
1 Add On Fireplace Gas 3.00
1 Balcony Cover Wood Balc 220.00
1 Basement Finished 1079.00
1 Basement Total Basement SF 1957.00
1 Basement Walkout 1.00
1 Fixture Full Bath 3.00
1 Garage Attached 705.00
1 Porch Open Slab 380.00
1 Porch Slab Roof Ceil 40.00





Account Parcel Account Type Tax Year Buildings Actual Value Local Govt Assessed Value School Assessed Value
R8854700 095903322017 Residential 2026 1 617,035 38,570 43,500

Type Code Description Actual Value Local Govt Assessed Value School Assessed Value Acres Land SqFt
Improvement 1212 SINGLE FAMILY RESIDENTIAL IMPROVEMENTS 502,035 31,380 35,390 0.000 0
Land 1112 SINGLE FAMILY RESIDENTIAL-LAND 115,000 7,190 8,110 0.232 10,093
Totals - - 617,035 38,570 43,500 0.232 10,093


Account Parcel Account Type Tax Year Buildings Actual Value Local Govt Assessed Value School Assessed Value
R8854700 095903322017 Residential 2026 1 617,035 38,570 43,500

Tax Area District ID District Name Local Govt
Mill Levy
School
Mill Levy
Estimated
Taxes
0683 0700 AIMS JUNIOR COLLEGE 6.313 0.000 $243.49
0683 0411 GREELEY CITY 11.274 0.000 $434.84
0683 1050 HIGH PLAINS LIBRARY 3.044 0.000 $117.41
0683 0301 NORTHERN COLORADO WATER (NCW) 1.000 0.000 $38.57
0683 0206 SCHOOL DIST 6-GREELEY 0.000 47.615 $2,071.25
0683 0100 WELD COUNTY 15.956 0.000 $615.42
0683 1200 WEST GREELEY CONSERVATION 0.414 0.000 $15.97
Total - - 38.001 47.615 $3,536.95


The estimate of tax is based on the prior year mill levy and the 2025 projected assessment rates. Mill levies and tax estimates will be updated yearly on December 22nd for the current year. Additional information can be found at https://assessor.weld.gov










Select Reports to Print: