Account: R8858300

April 4, 2026

Account Parcel Account Type Tax Year Buildings Actual Value Local Govt Assessed Value School Assessed Value
R8858300 095903323003 Residential 2026 1 489,733 30,610 34,530

Legal
GR 6WP L3 BLK4 WEST POINT 6TH FG

Subdivision Block Lot Land Economic Area
WEST POINT SUB 6TH FG 4 3 WEST POINT

Property Address Property City Section Township Range
5711 5TH STREET RD GREELEY 03 05 66




Account Parcel Account Type Tax Year Buildings Actual Value Local Govt Assessed Value School Assessed Value
R8858300 095903323003 Residential 2026 1 489,733 30,610 34,530

Account Owner Name Address
R8858300 KENT RICK B 5711 5TH STREET RD GREELEY, CO 806344818
R8858300 KENT LINDA S


Account Parcel Account Type Tax Year Buildings Actual Value Local Govt Assessed Value School Assessed Value
R8858300 095903323003 Residential 2026 1 489,733 30,610 34,530

Reception Rec Date Type Grantor Grantee Doc Fee Sale Date Sale Price
2251379 05-28-1994 WDN WEST POINT PARTNERSHIP; WEST POINT WEST POINT DEVELOPMENT CO INC 0.00 05-24-1991 0
2792033 NA SUB SUBDIVISION WEST POINT 6TH FG 0.00 NA 0
3081736 07-09-2003 WD WEST POINT DEVELOPMENT CO INC RNV CONSTRUCTION LLC 6.20 07-07-2003 62,000
3134313 12-11-2003 QCN RNV CONSTRUCTION LLC SAPPHIRE CUSTOM HOMES INC 0.00 12-02-2003 0
3134314 12-11-2003 WD SAPPHIRE CUSTOM HOMES INC KENT RICK B & LINDA S 23.50 12-04-2003 235,000



Account Parcel Account Type Tax Year Buildings Actual Value Local Govt Assessed Value School Assessed Value
R8858300 095903323003 Residential 2026 1 489,733 30,610 34,530

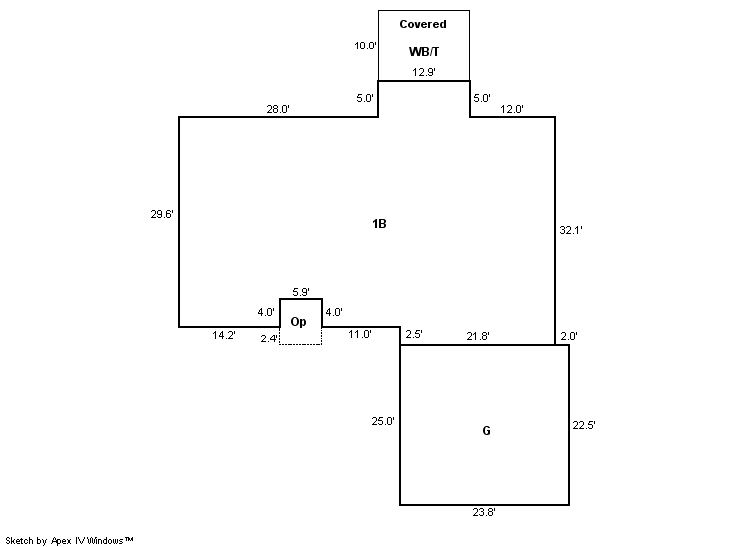
Building 1

AccountNo Building ID Occupancy
R8858300 1 Single Family Residential


ID Type NBHD Occupancy % Complete Bedrooms Baths
1 Residential 2G3010 Single Family Residential 100 3 3.00


ID Exterior Roof Cover Interior HVAC Perimeter Units Unit Type Make
1 Frame Siding Composition Shingle Drywall Central Air to Air 0 0 NA NA


ID Square Ft Condo SF Total Basement SF Finished Basement SF Garage SF Carport SF Balcony SF Porch SF
1 1,661 0 1,661 0 536 0 129 129


Built As Details for Building 1
ID Built As Square Ft Year Built Stories Length Width
1.00 Ranch 1 Story 1,661 2003 1 0 0


Additional Details for Building 1
ID Detail Type Description Units
1 Add On Fireplace Gas 1.00
1 Balcony Cover Wood Balc 129.00
1 Basement Full Daylight 1.00
1 Basement Outside Entrance 1.00
1 Basement Total Basement SF 1661.00
1 Fixture Full Bath 2.00
1 Fixture Half Bath 1.00
1 Garage Attached 536.00
1 Porch Open Slab 129.00
1 Porch Slab Roof Ceil 38.00





Account Parcel Account Type Tax Year Buildings Actual Value Local Govt Assessed Value School Assessed Value
R8858300 095903323003 Residential 2026 1 489,733 30,610 34,530

Type Code Description Actual Value Local Govt Assessed Value School Assessed Value Acres Land SqFt
Improvement 1212 SINGLE FAMILY RESIDENTIAL IMPROVEMENTS 374,733 23,420 26,420 0.000 0
Land 1112 SINGLE FAMILY RESIDENTIAL-LAND 115,000 7,190 8,110 0.251 10,953
Totals - - 489,733 30,610 34,530 0.251 10,953


Account Parcel Account Type Tax Year Buildings Actual Value Local Govt Assessed Value School Assessed Value
R8858300 095903323003 Residential 2026 1 489,733 30,610 34,530

Tax Area District ID District Name Local Govt
Mill Levy
School
Mill Levy
Estimated
Taxes
0683 0700 AIMS JUNIOR COLLEGE 6.313 0.000 $193.24
0683 0411 GREELEY CITY 11.274 0.000 $345.10
0683 1050 HIGH PLAINS LIBRARY 3.044 0.000 $93.18
0683 0301 NORTHERN COLORADO WATER (NCW) 1.000 0.000 $30.61
0683 0206 SCHOOL DIST 6-GREELEY 0.000 47.615 $1,644.15
0683 0100 WELD COUNTY 15.956 0.000 $488.41
0683 1200 WEST GREELEY CONSERVATION 0.414 0.000 $12.67
Total - - 38.001 47.615 $2,807.36


The estimate of tax is based on the prior year mill levy and the 2025 projected assessment rates. Mill levies and tax estimates will be updated yearly on December 22nd for the current year. Additional information can be found at https://assessor.weld.gov










Select Reports to Print: