Account: R8924700

April 1, 2026

Account Parcel Account Type Tax Year Buildings Actual Value Local Govt Assessed Value School Assessed Value
R8924700 095721000003 Agricultural 2026 3 519,118 72,040 74,660

Legal
E2 21-5-67

Subdivision Block Lot Land Economic Area
W GREELEY RURAL

Property Address Property City Section Township Range
8637 COUNTY ROAD 54 WELD 21 05 67




Account Parcel Account Type Tax Year Buildings Actual Value Local Govt Assessed Value School Assessed Value
R8924700 095721000003 Agricultural 2026 3 519,118 72,040 74,660

Account Owner Name Address
R8924700 WIEDEMAN GARY W 5880 49TH ST GREELEY, CO 806349643


Account Parcel Account Type Tax Year Buildings Actual Value Local Govt Assessed Value School Assessed Value
R8924700 095721000003 Agricultural 2026 3 519,118 72,040 74,660

Reception Rec Date Type Grantor Grantee Doc Fee Sale Date Sale Price
06-23-1987 USR USE BY SPECIAL REVIEW USR-796 MICROWAVE TOWER 290 FT 0.00 NA 0
08-16-1989 USR USE BY SPECIAL REVIEW USR-823 ELECT LINES 230 KV 0.00 NA 0
10-24-1994 USR USE BY SPECIAL REVIEW USR-1060 CELLULAR TOWER 130 FT 0.00 NA 0
2103508 06-15-1987 WDN WIEDEMAN EDWIEN WIEDEMAN GARY W 0.00 02-27-1987 0



Account Parcel Account Type Tax Year Buildings Actual Value Local Govt Assessed Value School Assessed Value
R8924700 095721000003 Agricultural 2026 3 519,118 72,040 74,660

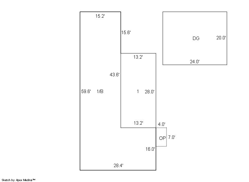
Building 1

AccountNo Building ID Occupancy
R8924700 1 Single Family Residential on Ag


ID Type NBHD Occupancy % Complete Bedrooms Baths
1 Residential 2R3011 Single Family Residential on Ag 100 2 2.00


ID Exterior Roof Cover Interior HVAC Perimeter Units Unit Type Make
1 Frame Hardboard Composition Shingle Plaster Forced Air 0 0 NA NA


ID Square Ft Condo SF Total Basement SF Finished Basement SF Garage SF Carport SF Balcony SF Porch SF
1 1,487 0 1,117 0 480 0 0 28


Built As Details for Building 1
ID Built As Square Ft Year Built Stories Length Width
1.00 Ranch 1 Story 1,487 1918 1 0 0


Additional Details for Building 1
ID Detail Type Description Units
1 Basement Total Basement SF 1117.00
1 Fixture Full Bath 1.00
1 Fixture Half Bath 1.00
1 Garage Detached 480.00
1 Porch Open Slab 28.00



Building 2

AccountNo Building ID Occupancy
R8924700 2 Shed - Utility


ID Type NBHD Occupancy % Complete Bedrooms Baths
2 Out Building NA Shed - Utility 100 0 0.00


ID Exterior Roof Cover Interior HVAC Perimeter Units Unit Type Make
2 NA NA NA None 96 0 NA NA


ID Square Ft Condo SF Total Basement SF Finished Basement SF Garage SF Carport SF Balcony SF Porch SF
2 1,025 0 0 0 0 0 0 0


Built As Details for Building 2
ID Built As Square Ft Year Built Stories Length Width
2.00 Shed - Utility 1,024 1980 1 32 32
2.00 Shed - Utility 1 1950 0 0 0

No Additional Details for Building 2




Building 3

AccountNo Building ID Occupancy
R8924700 3 Shed - Utility


ID Type NBHD Occupancy % Complete Bedrooms Baths
3 Out Building NA Shed - Utility 100 0 0.00


ID Exterior Roof Cover Interior HVAC Perimeter Units Unit Type Make
3 NA NA NA Hot Water Radiant 98 0 NA NA


ID Square Ft Condo SF Total Basement SF Finished Basement SF Garage SF Carport SF Balcony SF Porch SF
3 704 0 0 0 0 0 0 0


Built As Details for Building 3
ID Built As Square Ft Year Built Stories Length Width
3.00 Shed - Utility 704 1918 1 44 16

No Additional Details for Building 3






Account Parcel Account Type Tax Year Buildings Actual Value Local Govt Assessed Value School Assessed Value
R8924700 095721000003 Agricultural 2026 3 519,118 72,040 74,660

Type Code Description Actual Value Local Govt Assessed Value School Assessed Value Acres Land SqFt
Improvement 4277 FARM/RANCH RESIDENCE-IMPS 328,287 20,520 23,140 0.000 0
Improvement 4279 FARM RANCH SUPPORT BLDGS 9,754 2,630 2,630 0.000 0
Land 4107 SPRINKLER IRRIGATED LAND 180,378 48,700 48,700 266.084 11,590,619
Land 4147 GRAZING LAND-AGRICULTURAL 474 130 130 24.839 1,081,987
Land 4167 WASTE LAND 225 60 60 34.000 1,481,040
Totals - - 519,118 72,040 74,660 324.923 14,153,646


Account Parcel Account Type Tax Year Buildings Actual Value Local Govt Assessed Value School Assessed Value
R8924700 095721000003 Agricultural 2026 3 519,118 72,040 74,660

Tax Area District ID District Name Local Govt
Mill Levy
School
Mill Levy
Estimated
Taxes
0533 0700 AIMS JUNIOR COLLEGE 6.313 0.000 $454.79
0533 0510 FRONT RANGE FIRE RESCUE FIRE PROTECTION DISTRICT 11.483 0.000 $827.24
0533 1050 HIGH PLAINS LIBRARY 3.044 0.000 $219.29
0533 0306 LITTLE THOMPSON WATER (LTW) 0.000 0.000 $0.00
0533 0301 NORTHERN COLORADO WATER (NCW) 1.000 0.000 $72.04
0533 0205 SCHOOL DIST RE5J-JOHNSTOWN 0.000 36.271 $2,707.99
0533 0100 WELD COUNTY 15.956 0.000 $1,149.47
0533 1200 WEST GREELEY CONSERVATION 0.414 0.000 $29.82
Total - - 38.21 36.271 $5,460.64


The estimate of tax is based on the prior year mill levy and the 2025 projected assessment rates. Mill levies and tax estimates will be updated yearly on December 22nd for the current year. Additional information can be found at https://assessor.weld.gov










Select Reports to Print: