Account: R8940020

April 4, 2026

Account Parcel Account Type Tax Year Buildings Actual Value Local Govt Assessed Value School Assessed Value
R8940020 095917226005 Residential 2026 1 484,761 30,300 34,180

Legal
Lot 5 Block 2 OWL RIDGE 4TH FG

Subdivision Block Lot Land Economic Area
OWL RIDGE 4TH FG 2 5 OWL RIDGE

Property Address Property City Section Township Range
7704 TALON PKWY GREELEY 17 05 66




Account Parcel Account Type Tax Year Buildings Actual Value Local Govt Assessed Value School Assessed Value
R8940020 095917226005 Residential 2026 1 484,761 30,300 34,180

Account Owner Name Address
R8940020 OSA BLAIRE R 7704 TALON PKWY GREELEY, CO 806347788
R8940020 OSA SHAWNA D


Account Parcel Account Type Tax Year Buildings Actual Value Local Govt Assessed Value School Assessed Value
R8940020 095917226005 Residential 2026 1 484,761 30,300 34,180

Reception Rec Date Type Grantor Grantee Doc Fee Sale Date Sale Price
4040233 NA SUB SUBDIVISION OWL RIDGE 4TH FG 0.00 NA 0
4042113 08-29-2014 SWD CREEK VIEW INVESTMENTS LLC JOURNEY HOMES LLC 68.00 08-22-2014 680,000
4063053 11-20-2014 SWD JOURNEY HOMES LLC OSA BLAIRE R; OSA SHAWNA D 25.38 11-14-2014 253,800



Account Parcel Account Type Tax Year Buildings Actual Value Local Govt Assessed Value School Assessed Value
R8940020 095917226005 Residential 2026 1 484,761 30,300 34,180

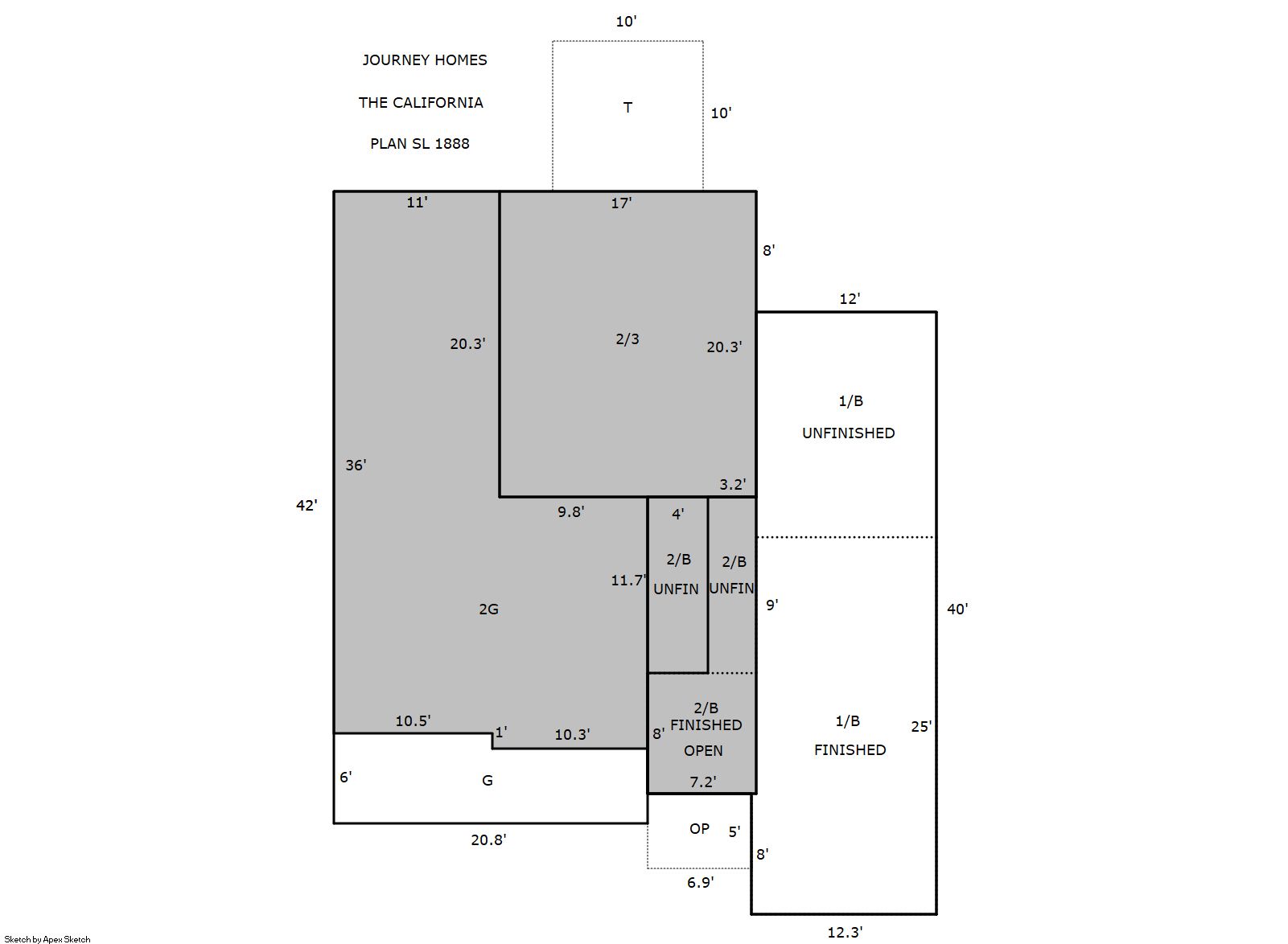
Building 1

AccountNo Building ID Occupancy
R8940020 1 Single Family Residential


ID Type NBHD Occupancy % Complete Bedrooms Baths
1 Residential 2G0020 Single Family Residential 100 3 4.00


ID Exterior Roof Cover Interior HVAC Perimeter Units Unit Type Make
1 Frame Siding Composition Shingle Drywall Central Air to Air 383 0 NA NA


ID Square Ft Condo SF Total Basement SF Finished Basement SF Garage SF Carport SF Balcony SF Porch SF
1 1,922 0 624 360 675 0 0 34


Built As Details for Building 1
ID Built As Square Ft Year Built Stories Length Width
1.00 Split Level 1,922 2014 2 0 0


Additional Details for Building 1
ID Detail Type Description Units
1 Add On Fireplace Gas 1.00
1 Basement Finished 360.00
1 Basement Total Basement SF 624.00
1 Fixture Full Bath 3.00
1 Fixture Half Bath 1.00
1 Garage Attached 675.00
1 Porch Open Slab 100.00
1 Porch Slab Roof Ceil 34.00





Account Parcel Account Type Tax Year Buildings Actual Value Local Govt Assessed Value School Assessed Value
R8940020 095917226005 Residential 2026 1 484,761 30,300 34,180

Type Code Description Actual Value Local Govt Assessed Value School Assessed Value Acres Land SqFt
Improvement 1212 SINGLE FAMILY RESIDENTIAL IMPROVEMENTS 409,761 25,610 28,890 0.000 0
Land 1112 SINGLE FAMILY RESIDENTIAL-LAND 75,000 4,690 5,290 0.170 7,401
Totals - - 484,761 30,300 34,180 0.170 7,401


Account Parcel Account Type Tax Year Buildings Actual Value Local Govt Assessed Value School Assessed Value
R8940020 095917226005 Residential 2026 1 484,761 30,300 34,180

Tax Area District ID District Name Local Govt
Mill Levy
School
Mill Levy
Estimated
Taxes
0446 0700 AIMS JUNIOR COLLEGE 6.313 0.000 $191.28
0446 1051 CLEARVIEW LIBRARY 3.546 0.000 $107.44
0446 0411 GREELEY CITY 11.274 0.000 $341.60
0446 0301 NORTHERN COLORADO WATER (NCW) 1.000 0.000 $30.30
0446 0204 SCHOOL DIST RE4-WINDSOR 0.000 46.646 $1,594.36
0446 0100 WELD COUNTY 15.956 0.000 $483.47
0446 1200 WEST GREELEY CONSERVATION 0.414 0.000 $12.54
Total - - 38.503 46.646 $2,761.00


The estimate of tax is based on the prior year mill levy and the 2025 projected assessment rates. Mill levies and tax estimates will be updated yearly on December 22nd for the current year. Additional information can be found at https://assessor.weld.gov










Select Reports to Print: