Account: R8940293

April 4, 2026

Account Parcel Account Type Tax Year Buildings Actual Value Local Govt Assessed Value School Assessed Value
R8940293 146720205006 Residential 2026 1 748,518 46,780 52,770

Legal
Lot 6 Block 5 ERIE HIGHLANDS FG#1

Subdivision Block Lot Land Economic Area
ERIE HIGHLANDS FG# 1 5 6 ERIE HIGHLANDS

Property Address Property City Section Township Range
616 INDIAN PEAKS DR ERIE 20 01 68




Account Parcel Account Type Tax Year Buildings Actual Value Local Govt Assessed Value School Assessed Value
R8940293 146720205006 Residential 2026 1 748,518 46,780 52,770

Account Owner Name Address
R8940293 TESSMAN STEPHEN LIVING TRUST 616 INDIAN PEAKS DR ERIE, CO 805162642
R8940293 TESSMAN REBECCA LIVING TRUST


Account Parcel Account Type Tax Year Buildings Actual Value Local Govt Assessed Value School Assessed Value
R8940293 146720205006 Residential 2026 1 748,518 46,780 52,770

Reception Rec Date Type Grantor Grantee Doc Fee Sale Date Sale Price
4044915 NA SUB SUBDIVISION ERIE HIGHLANDS FG #1 0.00 NA 0
4044915 09-10-2014 PLT ERIE HIGHLANDS FG NO 1 ERIE HIGHLANDS FG NO 1 0.00 05-14-2014 0
4153888 10-29-2015 WD OAKWOOD HOMES LLC TESSMAN STEPHEN R; TESSMAN REBECCA R 51.27 10-28-2015 512,700
4200776 05-04-2016 QCN TESSMAN STEPHEN R; TESSMAN REBECCA R TESSMAN STEPHEN LIVING TRUST; TESSMAN REBECCA LIVING TRUST 0.00 05-04-2016 0
4332796 09-05-2017 QCN TESSMAN STEPHEN R TESMAN STEPHEN LIVING TRUST 0.00 08-22-2017 0



Account Parcel Account Type Tax Year Buildings Actual Value Local Govt Assessed Value School Assessed Value
R8940293 146720205006 Residential 2026 1 748,518 46,780 52,770

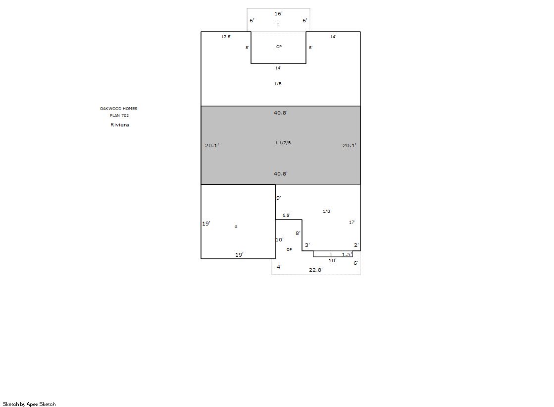
Building 1

AccountNo Building ID Occupancy
R8940293 1 Single Family Residential


ID Type NBHD Occupancy % Complete Bedrooms Baths
1 Residential 3E1017 Single Family Residential 100 3 3.00


ID Exterior Roof Cover Interior HVAC Perimeter Units Unit Type Make
1 Frame Stucco Clay Tile Drywall Central Air to Air 334 0 NA NA


ID Square Ft Condo SF Total Basement SF Finished Basement SF Garage SF Carport SF Balcony SF Porch SF
1 2,630 0 1,795 0 361 0 0 286


Built As Details for Building 1
ID Built As Square Ft Year Built Stories Length Width
1.00 1 1/2 Story Fin 2,630 2015 2 0 0


Additional Details for Building 1
ID Detail Type Description Units
1 Add On Fireplace Gas 0.00
1 Basement Total Basement SF 1795.00
1 Fixture Full Bath 3.00
1 Garage Attached 361.00
1 Porch Open Slab 96.00
1 Porch Slab Roof Ceil 286.00
1 Rough In Rough In 1.00





Account Parcel Account Type Tax Year Buildings Actual Value Local Govt Assessed Value School Assessed Value
R8940293 146720205006 Residential 2026 1 748,518 46,780 52,770

Type Code Description Actual Value Local Govt Assessed Value School Assessed Value Acres Land SqFt
Improvement 1212 SINGLE FAMILY RESIDENTIAL IMPROVEMENTS 596,518 37,280 42,050 0.000 0
Land 1112 SINGLE FAMILY RESIDENTIAL-LAND 152,000 9,500 10,720 0.139 6,050
Totals - - 748,518 46,780 52,770 0.139 6,050


Account Parcel Account Type Tax Year Buildings Actual Value Local Govt Assessed Value School Assessed Value
R8940293 146720205006 Residential 2026 1 748,518 46,780 52,770

Tax Area District ID District Name Local Govt
Mill Levy
School
Mill Levy
Estimated
Taxes
6997 1499 ERIE HIGHLANDS METRO 1 49.276 0.000 $2,305.13
6997 0404 ERIE TOWN 13.237 0.000 $619.23
6997 1050 HIGH PLAINS LIBRARY 3.044 0.000 $142.40
6997 0512 MOUNTAIN VIEW FIRE PROTECTION DISTRICT 16.342 0.000 $764.48
6997 0301 NORTHERN COLORADO WATER (NCW) 1.000 0.000 $46.78
6997 1360 RTD 0.000 0.000 $0.00
6997 0213 SCHOOL DIST RE1J-LONGMONT 0.000 57.717 $3,045.73
6997 0100 WELD COUNTY 15.956 0.000 $746.42
Total - - 98.855 57.717 $7,670.16


The estimate of tax is based on the prior year mill levy and the 2025 projected assessment rates. Mill levies and tax estimates will be updated yearly on December 22nd for the current year. Additional information can be found at https://assessor.weld.gov










Select Reports to Print: