Account: R8941332

April 1, 2026

Account Parcel Account Type Tax Year Buildings Actual Value Local Govt Assessed Value School Assessed Value
R8941332 080715202019 Residential 2026 1 725,044 45,320 51,120

Legal
Lot 19 Block 1 WINTER FARM 3RD FG

Subdivision Block Lot Land Economic Area
WINTER FARM 3RD FG 1 19 WINTER FARM 1ST

Property Address Property City Section Township Range
853 SHIRTTAIL PEAK DR WINDSOR 15 06 67




Account Parcel Account Type Tax Year Buildings Actual Value Local Govt Assessed Value School Assessed Value
R8941332 080715202019 Residential 2026 1 725,044 45,320 51,120

Account Owner Name Address
R8941332 MILLER STEVEN R 853 SHIRTTAIL PEAK DR WINDSOR, CO 805503247
R8941332 MILLER BEVERLY P


Account Parcel Account Type Tax Year Buildings Actual Value Local Govt Assessed Value School Assessed Value
R8941332 080715202019 Residential 2026 1 725,044 45,320 51,120

Reception Rec Date Type Grantor Grantee Doc Fee Sale Date Sale Price
4098043 NA SUB SUBDIVISION WINTER FARM 3RD FG 0.00 NA 0
4098043 04-10-2015 PLT WINTER FARM SUB 3RD FG WINTER FARM SUB 3RD FG 0.00 03-06-2015 0
4159614 11-19-2015 QCN LORSON SOUTH LAND CORP EAGLE DEVELOPMENT COMPANY 0.00 11-19-2015 0
4266493 12-30-2016 SWD EAGLE DEVELOPMENT COMPANY MIDIAN HOME LLC 387.00 12-21-2016 3,870,000
4502033 07-01-2019 WD MIDIAN HOME LLC MILLER STEVEN R; MILLER BEVERLY P 50.52 06-28-2019 505,200



Account Parcel Account Type Tax Year Buildings Actual Value Local Govt Assessed Value School Assessed Value
R8941332 080715202019 Residential 2026 1 725,044 45,320 51,120

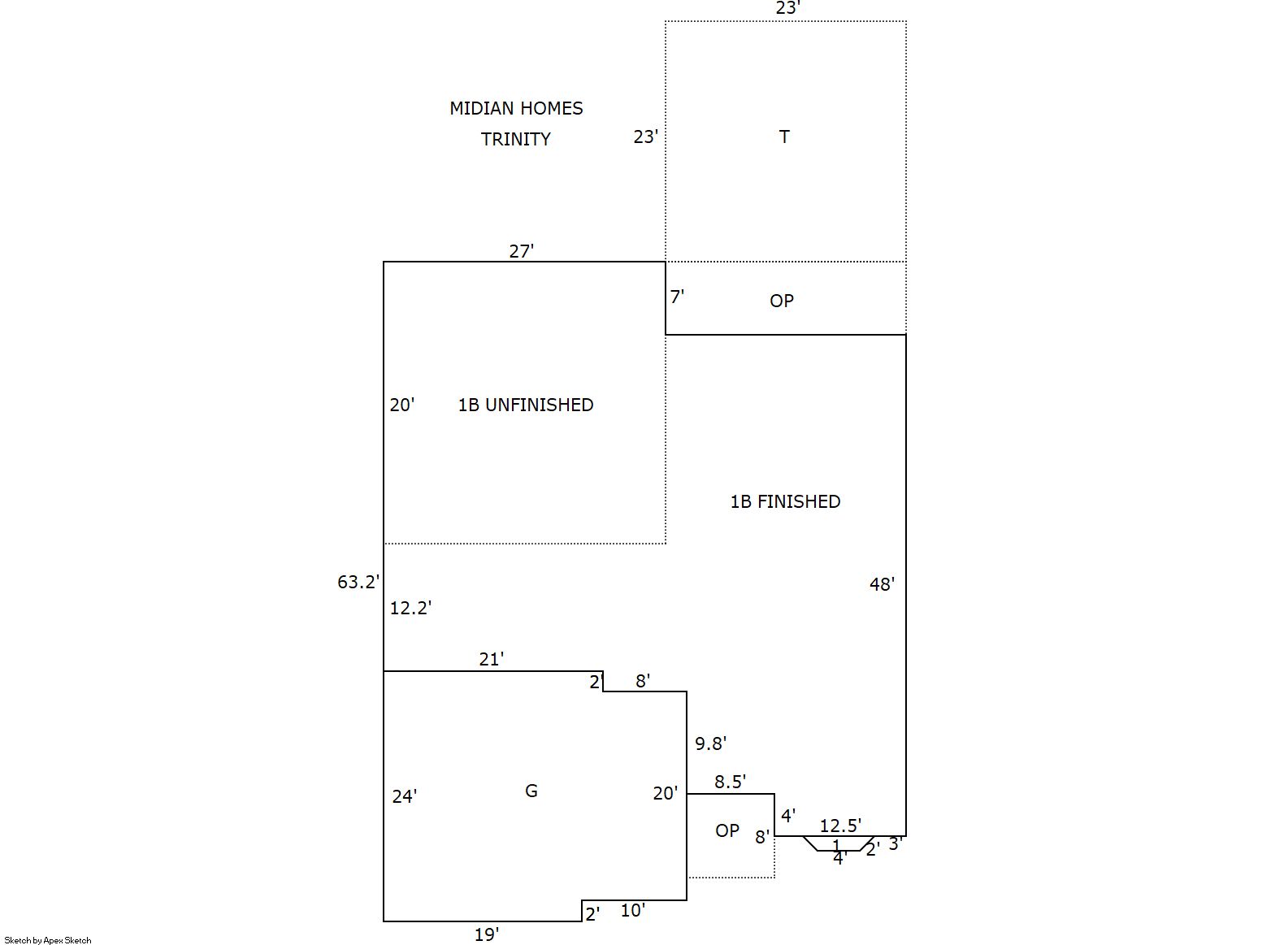
Building 1

AccountNo Building ID Occupancy
R8941332 1 Single Family Residential


ID Type NBHD Occupancy % Complete Bedrooms Baths
1 Residential 2W0013 Single Family Residential 100 6 4.00


ID Exterior Roof Cover Interior HVAC Perimeter Units Unit Type Make
1 Frame Siding Composition Shingle Drywall Central Air to Air 211 0 NA NA


ID Square Ft Condo SF Total Basement SF Finished Basement SF Garage SF Carport SF Balcony SF Porch SF
1 2,121 0 2,113 1,384 660 0 0 229


Built As Details for Building 1
ID Built As Square Ft Year Built Stories Length Width
1.00 Ranch 1 Story 2,121 2019 1 0 0


Additional Details for Building 1
ID Detail Type Description Units
1 Add On Fireplace Gas 1.00
1 Basement Finished 1384.00
1 Basement Total Basement SF 2113.00
1 Fixture Full Bath 3.00
1 Fixture Half Bath 1.00
1 Garage Attached 660.00
1 Porch Open Slab 529.00
1 Porch Slab Roof Ceil 229.00





Account Parcel Account Type Tax Year Buildings Actual Value Local Govt Assessed Value School Assessed Value
R8941332 080715202019 Residential 2026 1 725,044 45,320 51,120

Type Code Description Actual Value Local Govt Assessed Value School Assessed Value Acres Land SqFt
Improvement 1212 SINGLE FAMILY RESIDENTIAL IMPROVEMENTS 605,044 37,820 42,660 0.000 0
Land 1112 SINGLE FAMILY RESIDENTIAL-LAND 120,000 7,500 8,460 0.152 6,600
Totals - - 725,044 45,320 51,120 0.152 6,600


Account Parcel Account Type Tax Year Buildings Actual Value Local Govt Assessed Value School Assessed Value
R8941332 080715202019 Residential 2026 1 725,044 45,320 51,120

Tax Area District ID District Name Local Govt
Mill Levy
School
Mill Levy
Estimated
Taxes
2543 0700 AIMS JUNIOR COLLEGE 6.313 0.000 $286.11
2543 1051 CLEARVIEW LIBRARY 3.546 0.000 $160.70
2543 0304 NORTH WELD COUNTY WATER (NWC) 0.000 0.000 $0.00
2543 0301 NORTHERN COLORADO WATER (NCW) 1.000 0.000 $45.32
2543 0204 SCHOOL DIST RE4-WINDSOR 0.000 46.646 $2,384.54
2543 0100 WELD COUNTY 15.956 0.000 $723.13
2543 1200 WEST GREELEY CONSERVATION 0.414 0.000 $18.76
2543 0428 WINDSOR TOWN 12.030 0.000 $545.20
2543 0521 WINDSOR-SEVERANCE FIRE 8.535 0.000 $386.81
2543 1322 WINTER FARM METRO DIST 2 31.593 0.000 $1,431.79
Total - - 79.387 46.646 $5,982.36


The estimate of tax is based on the prior year mill levy and the 2025 projected assessment rates. Mill levies and tax estimates will be updated yearly on December 22nd for the current year. Additional information can be found at https://assessor.weld.gov










Select Reports to Print: