Account: R8941520

April 2, 2026

Account Parcel Account Type Tax Year Buildings Actual Value Local Govt Assessed Value School Assessed Value
R8941520 080715209035 Residential 2026 1 665,532 41,600 46,920

Legal
Lot 35 Block 8 WINTER FARM 3RD FG

Subdivision Block Lot Land Economic Area
WINTER FARM 3RD FG 8 35 WINTER FARM WATER

Property Address Property City Section Township Range
662 BOXWOOD DR WINDSOR 15 06 67




Account Parcel Account Type Tax Year Buildings Actual Value Local Govt Assessed Value School Assessed Value
R8941520 080715209035 Residential 2026 1 665,532 41,600 46,920

Account Owner Name Address
R8941520 HOLMGREN CARL J 662 BOXWOOD DR WINDSOR, CO 805503238
R8941520 HOLMGREN CHERYL L


Account Parcel Account Type Tax Year Buildings Actual Value Local Govt Assessed Value School Assessed Value
R8941520 080715209035 Residential 2026 1 665,532 41,600 46,920

Reception Rec Date Type Grantor Grantee Doc Fee Sale Date Sale Price
4098043 NA SUB SUBDIVISION WINTER FARM 3RD FG 0.00 NA 0
4098043 04-10-2015 PLT WINTER FARM SUB 3RD FG WINTER FARM SUB 3RD FG 0.00 03-06-2015 0
4159614 11-19-2015 QCN LORSON SOUTH LAND CORP EAGLE DEVELOPMENT COMPANY 0.00 11-19-2015 0
4258367 12-02-2016 SWD EAGLE DEVELOPMENT COMPANY THYSSEN DEVELOPMENT LLC 327.00 12-01-2016 3,270,000
4301596 05-12-2017 BSDN THYSSEN DEVELOPMENT LLC GFO HOMES LLC 0.00 04-24-2017 0
4372922 02-05-2018 BSDN GFO HOME LLC BRIDGEWATER HOMES LLC 0.00 01-30-2018 0
4412170 07-02-2018 SWD BRIDGEWATER HOMES LLC HOLMGREN CARL J; HOLMGREN CHERYL L 53.16 06-28-2018 531,600



Account Parcel Account Type Tax Year Buildings Actual Value Local Govt Assessed Value School Assessed Value
R8941520 080715209035 Residential 2026 1 665,532 41,600 46,920

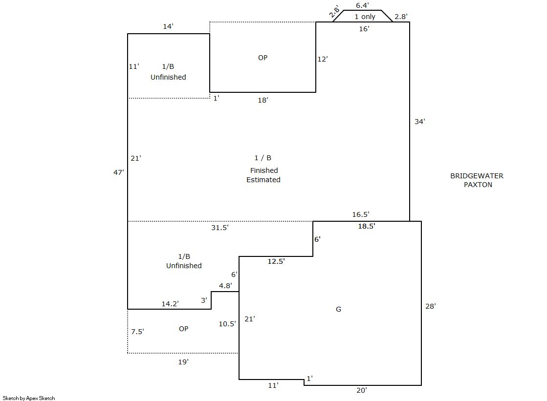
Building 1

AccountNo Building ID Occupancy
R8941520 1 Single Family Residential


ID Type NBHD Occupancy % Complete Bedrooms Baths
1 Residential 2W0013 Single Family Residential 100 3 3.00


ID Exterior Roof Cover Interior HVAC Perimeter Units Unit Type Make
1 Frame Siding Composition Shingle Drywall Central Air to Air 216 0 NA NA


ID Square Ft Condo SF Total Basement SF Finished Basement SF Garage SF Carport SF Balcony SF Porch SF
1 1,750 0 1,734 1,234 782 0 0 373


Built As Details for Building 1
ID Built As Square Ft Year Built Stories Length Width
1.00 Ranch 1 Story 1,750 2018 1 0 0


Additional Details for Building 1
ID Detail Type Description Units
1 Add On Fireplace Gas 1.00
1 Basement Finished 1234.00
1 Basement Total Basement SF 1734.00
1 Fixture Full Bath 3.00
1 Garage Attached 782.00
1 Porch Slab Roof Ceil 373.00





Account Parcel Account Type Tax Year Buildings Actual Value Local Govt Assessed Value School Assessed Value
R8941520 080715209035 Residential 2026 1 665,532 41,600 46,920

Type Code Description Actual Value Local Govt Assessed Value School Assessed Value Acres Land SqFt
Improvement 1212 SINGLE FAMILY RESIDENTIAL IMPROVEMENTS 533,532 33,350 37,610 0.000 0
Land 1112 SINGLE FAMILY RESIDENTIAL-LAND 132,000 8,250 9,310 0.161 7,021
Totals - - 665,532 41,600 46,920 0.161 7,021


Account Parcel Account Type Tax Year Buildings Actual Value Local Govt Assessed Value School Assessed Value
R8941520 080715209035 Residential 2026 1 665,532 41,600 46,920

Tax Area District ID District Name Local Govt
Mill Levy
School
Mill Levy
Estimated
Taxes
2543 0700 AIMS JUNIOR COLLEGE 6.313 0.000 $262.62
2543 1051 CLEARVIEW LIBRARY 3.546 0.000 $147.51
2543 0304 NORTH WELD COUNTY WATER (NWC) 0.000 0.000 $0.00
2543 0301 NORTHERN COLORADO WATER (NCW) 1.000 0.000 $41.60
2543 0204 SCHOOL DIST RE4-WINDSOR 0.000 46.646 $2,188.63
2543 0100 WELD COUNTY 15.956 0.000 $663.77
2543 1200 WEST GREELEY CONSERVATION 0.414 0.000 $17.22
2543 0428 WINDSOR TOWN 12.030 0.000 $500.45
2543 0521 WINDSOR-SEVERANCE FIRE 8.535 0.000 $355.06
2543 1322 WINTER FARM METRO DIST 2 31.593 0.000 $1,314.27
Total - - 79.387 46.646 $5,491.13


The estimate of tax is based on the prior year mill levy and the 2025 projected assessment rates. Mill levies and tax estimates will be updated yearly on December 22nd for the current year. Additional information can be found at https://assessor.weld.gov










Select Reports to Print: