Account: R8941531

April 1, 2026

Account Parcel Account Type Tax Year Buildings Actual Value Local Govt Assessed Value School Assessed Value
R8941531 080715209046 Residential 2026 1 630,972 39,440 44,490

Legal
Lot 46 Block 8 WINTER FARM 3RD FG

Subdivision Block Lot Land Economic Area
WINTER FARM 3RD FG 8 46 WINTER FARM WATER

Property Address Property City Section Township Range
602 BOXWOOD DR WINDSOR 15 06 67




Account Parcel Account Type Tax Year Buildings Actual Value Local Govt Assessed Value School Assessed Value
R8941531 080715209046 Residential 2026 1 630,972 39,440 44,490

Account Owner Name Address
R8941531 SARGENT TIFFANI ELIZABETH 5198 RENDEZVOUS PKWY TIMNATH, CO 805474314


Account Parcel Account Type Tax Year Buildings Actual Value Local Govt Assessed Value School Assessed Value
R8941531 080715209046 Residential 2026 1 630,972 39,440 44,490

Reception Rec Date Type Grantor Grantee Doc Fee Sale Date Sale Price
4098043 NA SUB SUBDIVISION WINTER FARM 3RD FG 0.00 NA 0
4098043 04-10-2015 PLT WINTER FARM SUB 3RD FG WINTER FARM SUB 3RD FG 0.00 03-06-2015 0
4159614 11-19-2015 QCN LORSON SOUTH LAND CORP EAGLE DEVELOPMENT COMPANY 0.00 11-19-2015 0
4256062 11-23-2016 SWD EAGLE DEVELOPMENT COMPANY SAINT AUBYN HOMES LLC 252.00 11-23-2016 2,520,000
4316826 07-10-2017 SWD ST AUBYN HOMES LLC KOFOED AUSTIN; KOFOED TAYLOR 40.50 07-10-2017 405,000
4494556 06-04-2019 SWD KOFOED AUSTIN L; KOFOED TAYLOR E HULL TYSON D; HULL SUZANNE E 47.00 05-31-2019 470,000
4845371 08-01-2022 WD HULL TYSON D; HULL SUZANNE E SARGENT TIFFANI ELIZABETH; SMITH JAMES JAY 65.50 07-27-2022 655,000
4850946 08-25-2022 QCN SARGENT TIFFANI ELIZABETH; SMITH JAMES JAY SARGENT TIFFANI ELIZABETH 0.00 08-18-2022 0



Account Parcel Account Type Tax Year Buildings Actual Value Local Govt Assessed Value School Assessed Value
R8941531 080715209046 Residential 2026 1 630,972 39,440 44,490

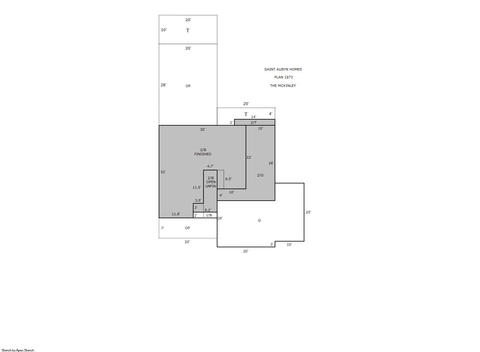
Building 1

AccountNo Building ID Occupancy
R8941531 1 Single Family Residential


ID Type NBHD Occupancy % Complete Bedrooms Baths
1 Residential 2W0013 Single Family Residential 100 4 4.00


ID Exterior Roof Cover Interior HVAC Perimeter Units Unit Type Make
1 Frame Siding Composition Shingle Drywall Central Air to Air 317 0 NA NA


ID Square Ft Condo SF Total Basement SF Finished Basement SF Garage SF Carport SF Balcony SF Porch SF
1 1,953 0 860 768 820 0 0 320


Built As Details for Building 1
ID Built As Square Ft Year Built Stories Length Width
1.00 2 Story 1,953 2017 2 0 0


Additional Details for Building 1
ID Detail Type Description Units
1 Add On Fire Pit 1.00
1 Basement Finished 768.00
1 Basement Total Basement SF 860.00
1 Fixture Full Bath 3.00
1 Fixture Half Bath 1.00
1 Garage Attached 820.00
1 Porch Open Slab 320.00
1 Porch Slab Roof Ceil 700.00





Account Parcel Account Type Tax Year Buildings Actual Value Local Govt Assessed Value School Assessed Value
R8941531 080715209046 Residential 2026 1 630,972 39,440 44,490

Type Code Description Actual Value Local Govt Assessed Value School Assessed Value Acres Land SqFt
Improvement 1212 SINGLE FAMILY RESIDENTIAL IMPROVEMENTS 498,972 31,190 35,180 0.000 0
Land 1112 SINGLE FAMILY RESIDENTIAL-LAND 132,000 8,250 9,310 0.152 6,600
Totals - - 630,972 39,440 44,490 0.152 6,600


Account Parcel Account Type Tax Year Buildings Actual Value Local Govt Assessed Value School Assessed Value
R8941531 080715209046 Residential 2026 1 630,972 39,440 44,490

Tax Area District ID District Name Local Govt
Mill Levy
School
Mill Levy
Estimated
Taxes
2543 0700 AIMS JUNIOR COLLEGE 6.313 0.000 $248.98
2543 1051 CLEARVIEW LIBRARY 3.546 0.000 $139.85
2543 0304 NORTH WELD COUNTY WATER (NWC) 0.000 0.000 $0.00
2543 0301 NORTHERN COLORADO WATER (NCW) 1.000 0.000 $39.44
2543 0204 SCHOOL DIST RE4-WINDSOR 0.000 46.646 $2,075.28
2543 0100 WELD COUNTY 15.956 0.000 $629.30
2543 1200 WEST GREELEY CONSERVATION 0.414 0.000 $16.33
2543 0428 WINDSOR TOWN 12.030 0.000 $474.46
2543 0521 WINDSOR-SEVERANCE FIRE 8.535 0.000 $336.62
2543 1322 WINTER FARM METRO DIST 2 31.593 0.000 $1,246.03
Total - - 79.387 46.646 $5,206.30


The estimate of tax is based on the prior year mill levy and the 2025 projected assessment rates. Mill levies and tax estimates will be updated yearly on December 22nd for the current year. Additional information can be found at https://assessor.weld.gov










Select Reports to Print: