Account: R8941552

April 1, 2026

Account Parcel Account Type Tax Year Buildings Actual Value Local Govt Assessed Value School Assessed Value
R8941552 080715210007 Residential 2026 1 626,624 39,160 44,180

Legal
Lot 7 Block 9 WINTER FARM 3RD FG

Subdivision Block Lot Land Economic Area
WINTER FARM 3RD FG 9 7 WINTER FARM 1ST

Property Address Property City Section Township Range
667 VERMILION PEAK DR WINDSOR 15 06 67




Account Parcel Account Type Tax Year Buildings Actual Value Local Govt Assessed Value School Assessed Value
R8941552 080715210007 Residential 2026 1 626,624 39,160 44,180

Account Owner Name Address
R8941552 ZAPZALKA BRENT 667 VERMILION PEAK DR WINDSOR, CO 805503251
R8941552 ZAPZALKA REYNA


Account Parcel Account Type Tax Year Buildings Actual Value Local Govt Assessed Value School Assessed Value
R8941552 080715210007 Residential 2026 1 626,624 39,160 44,180

Reception Rec Date Type Grantor Grantee Doc Fee Sale Date Sale Price
4098043 NA SUB SUBDIVISION WINTER FARM 3RD FG 0.00 NA 0
4098043 04-10-2015 PLT WINTER FARM SUB 3RD FG WINTER FARM SUB 3RD FG 0.00 03-06-2015 0
4159614 11-19-2015 QCN LORSON SOUTH LAND CORP EAGLE DEVELOPMENT COMPANY 0.00 11-19-2015 0
4256062 11-23-2016 SWD EAGLE DEVELOPMENT COMPANY SAINT AUBYN HOMES LLC 252.00 11-23-2016 2,520,000
4305203 05-26-2017 WD SAINT AUBYN HOMES LLC ZAPZALKA BRENT; APZALKA REYNA 39.48 05-25-2017 394,800
4326128 08-10-2017 QCN ZAPZALKA BRENT; ZAPZALKA REYNA ZAPZALKA BRENT; ZAPZALKA REYNA 0.00 08-10-2017 0



Account Parcel Account Type Tax Year Buildings Actual Value Local Govt Assessed Value School Assessed Value
R8941552 080715210007 Residential 2026 1 626,624 39,160 44,180

Building 1

AccountNo Building ID Occupancy
R8941552 1 Single Family Residential


ID Type NBHD Occupancy % Complete Bedrooms Baths
1 Residential 2W0013 Single Family Residential 100 5 3.00


ID Exterior Roof Cover Interior HVAC Perimeter Units Unit Type Make
1 Frame Siding Composition Shingle Drywall Central Air to Air 188 0 NA NA


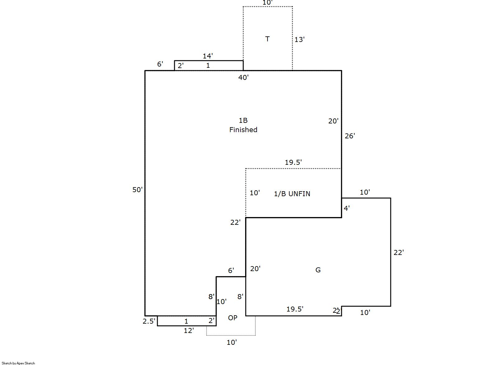
ID Square Ft Condo SF Total Basement SF Finished Basement SF Garage SF Carport SF Balcony SF Porch SF
1 1,614 0 1,562 1,367 610 0 0 84


Built As Details for Building 1
ID Built As Square Ft Year Built Stories Length Width
1.00 Ranch 1 Story 1,614 2017 1 0 0


Additional Details for Building 1
ID Detail Type Description Units
1 Add On Fireplace Gas 1.00
1 Basement Finished 1367.00
1 Basement Total Basement SF 1562.00
1 Fixture Full Bath 3.00
1 Garage Attached 610.00
1 Porch Open Slab 130.00
1 Porch Slab Roof Ceil 84.00





Account Parcel Account Type Tax Year Buildings Actual Value Local Govt Assessed Value School Assessed Value
R8941552 080715210007 Residential 2026 1 626,624 39,160 44,180

Type Code Description Actual Value Local Govt Assessed Value School Assessed Value Acres Land SqFt
Improvement 1212 SINGLE FAMILY RESIDENTIAL IMPROVEMENTS 506,624 31,660 35,720 0.000 0
Land 1112 SINGLE FAMILY RESIDENTIAL-LAND 120,000 7,500 8,460 0.190 8,286
Totals - - 626,624 39,160 44,180 0.190 8,286


Account Parcel Account Type Tax Year Buildings Actual Value Local Govt Assessed Value School Assessed Value
R8941552 080715210007 Residential 2026 1 626,624 39,160 44,180

Tax Area District ID District Name Local Govt
Mill Levy
School
Mill Levy
Estimated
Taxes
2543 0700 AIMS JUNIOR COLLEGE 6.313 0.000 $247.22
2543 1051 CLEARVIEW LIBRARY 3.546 0.000 $138.86
2543 0304 NORTH WELD COUNTY WATER (NWC) 0.000 0.000 $0.00
2543 0301 NORTHERN COLORADO WATER (NCW) 1.000 0.000 $39.16
2543 0204 SCHOOL DIST RE4-WINDSOR 0.000 46.646 $2,060.82
2543 0100 WELD COUNTY 15.956 0.000 $624.84
2543 1200 WEST GREELEY CONSERVATION 0.414 0.000 $16.21
2543 0428 WINDSOR TOWN 12.030 0.000 $471.09
2543 0521 WINDSOR-SEVERANCE FIRE 8.535 0.000 $334.23
2543 1322 WINTER FARM METRO DIST 2 31.593 0.000 $1,237.18
Total - - 79.387 46.646 $5,169.62


The estimate of tax is based on the prior year mill levy and the 2025 projected assessment rates. Mill levies and tax estimates will be updated yearly on December 22nd for the current year. Additional information can be found at https://assessor.weld.gov










Select Reports to Print: