Account: R8941863

April 1, 2026

Account Parcel Account Type Tax Year Buildings Actual Value Local Govt Assessed Value School Assessed Value
R8941863 131312135005 Residential 2026 1 319,769 19,980 22,540

Legal
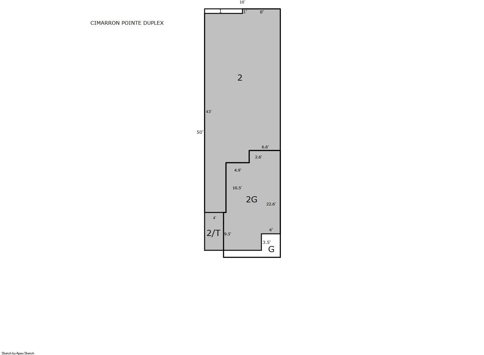
LOT 5 BLK5 CIMARRON POINTE 1ST FG

Subdivision Block Lot Land Economic Area
CIMARRON POINTE 1ST FG 5 5 CIMARRON POINTE TOWNHOMES

Property Address Property City Section Township Range
10818 CIMARRON ST 805 FIRESTONE 12 02 68




Account Parcel Account Type Tax Year Buildings Actual Value Local Govt Assessed Value School Assessed Value
R8941863 131312135005 Residential 2026 1 319,769 19,980 22,540

Account Owner Name Address
R8941863 ALL ACCESS STORAGE LLC 6400 RABBIT MOUNTAIN RD LONGMONT, CO 805037345


Account Parcel Account Type Tax Year Buildings Actual Value Local Govt Assessed Value School Assessed Value
R8941863 131312135005 Residential 2026 1 319,769 19,980 22,540

Reception Rec Date Type Grantor Grantee Doc Fee Sale Date Sale Price
4107039 NA SUB SUBDIVISION CIMARRON POINT 1ST FG 0.00 NA 0
4107039 05-14-2015 PLT CIMARRON POINTE 1ST FG CIMARRON POINTE 1ST FG 0.00 05-14-2015 0
4280762 02-23-2017 SWD CIMARRON VENTURES LLC COALRIDGE LAND COMPANY LLC 87.75 02-21-2017 877,500
4384694 03-21-2018 SWDN COALRIDGE LAND COMPANY LLC; INNOVATIVE REAL ESTATE INVESTMENTS LLC INNOVATIVE REAL ESTATE INVESTMENTS LLC 0.00 03-20-2018 0
4410366 06-26-2018 WD INNOVATIVE REAL ESTATE INVESTMENTS LLC ALL ACCESS STORAGE LLC 129.50 06-25-2018 1,295,000



Account Parcel Account Type Tax Year Buildings Actual Value Local Govt Assessed Value School Assessed Value
R8941863 131312135005 Residential 2026 1 319,769 19,980 22,540

Building 1

AccountNo Building ID Occupancy
R8941863 1 Duplex


ID Type NBHD Occupancy % Complete Bedrooms Baths
1 Duplex 3F0032 Duplex 100 3 2.00


ID Exterior Roof Cover Interior HVAC Perimeter Units Unit Type Make
1 Frame Siding Composition Shingle Drywall Central Air to Air 252 1 End NA


ID Square Ft Condo SF Total Basement SF Finished Basement SF Garage SF Carport SF Balcony SF Porch SF
1 1,344 0 0 0 252 0 0 32


Built As Details for Building 1
ID Built As Square Ft Year Built Stories Length Width
1.00 Townhouse Two Story 1,344 2018 2 0 0


Additional Details for Building 1
ID Detail Type Description Units
1 Fixture Full Bath 2.00
1 Garage Attached 252.00
1 Porch Open Slab 32.00





Account Parcel Account Type Tax Year Buildings Actual Value Local Govt Assessed Value School Assessed Value
R8941863 131312135005 Residential 2026 1 319,769 19,980 22,540

Type Code Description Actual Value Local Govt Assessed Value School Assessed Value Acres Land SqFt
Improvement 1212 SINGLE FAMILY RESIDENTIAL IMPROVEMENTS 254,769 15,920 17,960 0.000 0
Land 1112 SINGLE FAMILY RESIDENTIAL-LAND 65,000 4,060 4,580 0.033 1,425
Totals - - 319,769 19,980 22,540 0.033 1,425


Account Parcel Account Type Tax Year Buildings Actual Value Local Govt Assessed Value School Assessed Value
R8941863 131312135005 Residential 2026 1 319,769 19,980 22,540

Tax Area District ID District Name Local Govt
Mill Levy
School
Mill Levy
Estimated
Taxes
2556 0900 CARBON VALLEY REC 4.427 0.000 $88.45
2556 0406 FIRESTONE TOWN 6.805 0.000 $135.96
2556 0507 FREDERICK-FIRESTONE FIRE 15.559 0.000 $310.87
2556 1050 HIGH PLAINS LIBRARY 3.044 0.000 $60.82
2556 0301 NORTHERN COLORADO WATER (NCW) 1.000 0.000 $19.98
2556 0213 SCHOOL DIST RE1J-LONGMONT 0.000 57.717 $1,300.94
2556 0620 ST VRAIN SANITATION 0.316 0.000 $6.31
2556 0100 WELD COUNTY 15.956 0.000 $318.80
Total - - 47.107 57.717 $2,242.14


The estimate of tax is based on the prior year mill levy and the 2025 projected assessment rates. Mill levies and tax estimates will be updated yearly on December 22nd for the current year. Additional information can be found at https://assessor.weld.gov










Select Reports to Print: