Account: R8942536
April 5, 2026
| Account | Parcel | Account Type | Tax Year | Buildings | Actual Value | Local Govt Assessed Value | School Assessed Value |
|---|---|---|---|---|---|---|---|
| R8942536 | 146720210006 | Residential | 2026 | 1 | 1,159,963 | 72,500 | 81,780 |
| Legal |
|---|
| LOT 6 BLK1 ERIE HIGHLANDS FG #3 |
| Subdivision | Block | Lot | Land Economic Area |
|---|---|---|---|
| ERIE HIGHLANDS FG #3 | 1 | 6 | ERIE HIGHLANDS |
| Property Address | Property City | Section | Township | Range |
|---|---|---|---|---|
| 805 LONGS PEAK DR | ERIE | 20 | 01 | 68 |
| Account | Parcel | Account Type | Tax Year | Buildings | Actual Value | Local Govt Assessed Value | School Assessed Value |
|---|---|---|---|---|---|---|---|
| R8942536 | 146720210006 | Residential | 2026 | 1 | 1,159,963 | 72,500 | 81,780 |
| Account | Owner Name | Address |
|---|---|---|
| R8942536 | JUGERT JASON DAVID | 805 LONGS PEAK DR ERIE, CO 805162649 |
| R8942536 | JUGERT BRITTANY NICOLE |
| Account | Parcel | Account Type | Tax Year | Buildings | Actual Value | Local Govt Assessed Value | School Assessed Value |
|---|---|---|---|---|---|---|---|
| R8942536 | 146720210006 | Residential | 2026 | 1 | 1,159,963 | 72,500 | 81,780 |
| Reception | Rec Date | Type | Grantor | Grantee | Doc Fee | Sale Date | Sale Price |
|---|---|---|---|---|---|---|---|
| 4128216 | NA | SUB | SUBDIVISION | ERIE HIGHLANDS FG #3 | 0.00 | NA | 0 |
| 4128216 | 07-27-2015 | PLT | ERIE HIGHLANDS FG #3 | ERIE HIGHLANDS FG #3 | 0.00 | 07-27-2015 | 0 |
| 4257425 | 11-30-2016 | WD | OAKWOOD HOMES LLC | JUGERT JASON DAVID; JUGERT BRITTANY NICOLE | 66.72 | 11-29-2016 | 667,200 |
*If the hyperlink for the reception number does not work, try a manual search in the Clerk and Recorder records. Use the Grantor or Grantee in your search.
| Account | Parcel | Account Type | Tax Year | Buildings | Actual Value | Local Govt Assessed Value | School Assessed Value |
|---|---|---|---|---|---|---|---|
| R8942536 | 146720210006 | Residential | 2026 | 1 | 1,159,963 | 72,500 | 81,780 |
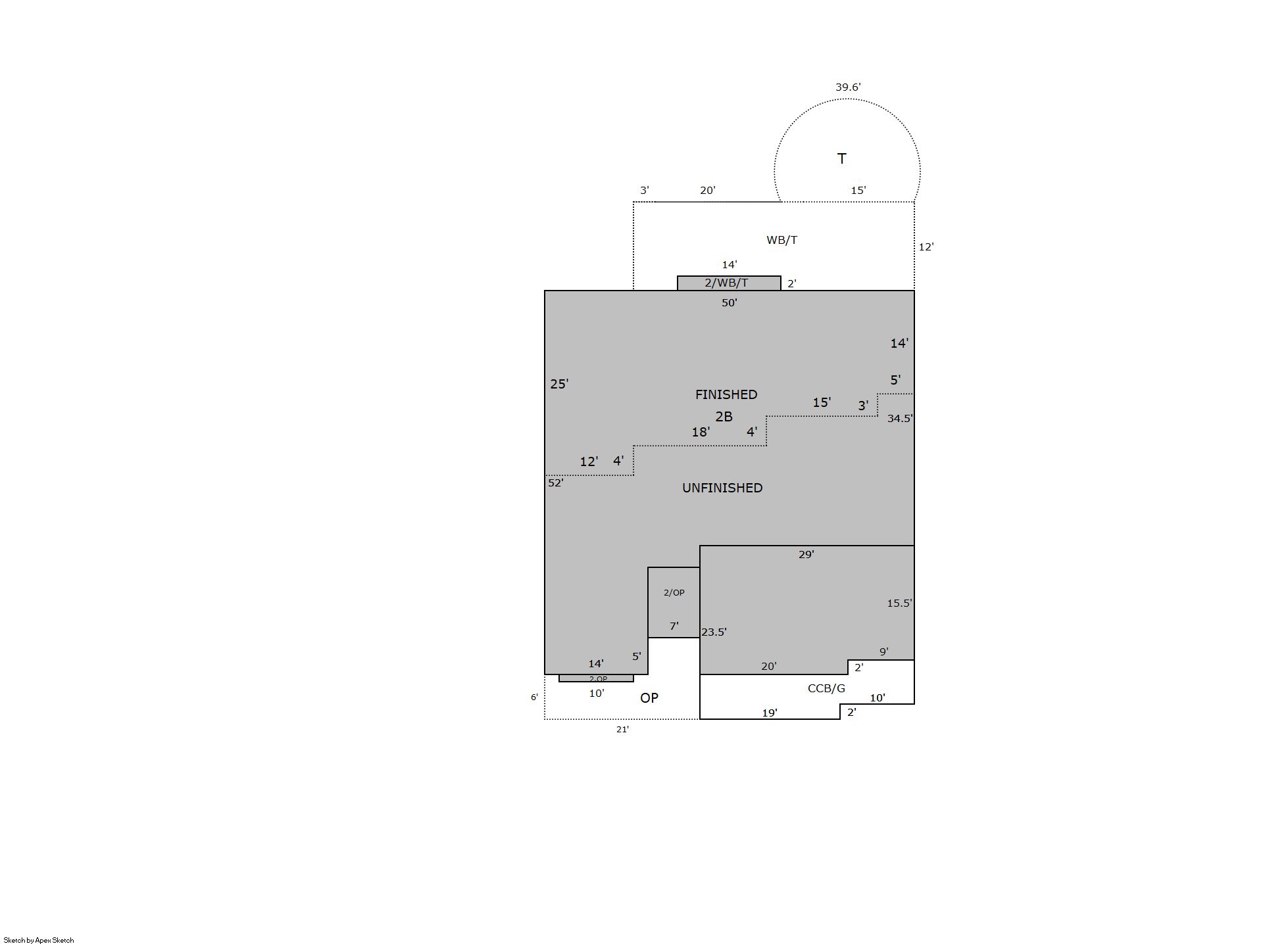
Building 1
| AccountNo | Building ID | Occupancy |
|---|---|---|
| R8942536 | 1 | Single Family Residential |
| ID | Type | NBHD | Occupancy | % Complete | Bedrooms | Baths |
|---|---|---|---|---|---|---|
| 1 | Residential | 3E1017 | Single Family Residential | 100 | 5 | 4.00 |
| ID | Exterior | Roof Cover | Interior | HVAC | Perimeter | Units | Unit Type | Make |
|---|---|---|---|---|---|---|---|---|
| 1 | Frame Siding | Clay Tile | Drywall | Central Air to Air | 457 | 0 | NA | NA |
| ID | Square Ft | Condo SF | Total Basement SF | Finished Basement SF | Garage SF | Carport SF | Balcony SF | Porch SF |
|---|---|---|---|---|---|---|---|---|
| 1 | 4,576 | 0 | 2,058 | 1,003 | 662 | 0 | 456 | 689 |
| ID | Built As | Square Ft | Year Built | Stories | Length | Width |
|---|---|---|---|---|---|---|
| 1.00 | 2 Story | 4,576 | 2016 | 2 | 0 | 0 |
| ID | Detail Type | Description | Units |
|---|---|---|---|
| 1 | Add On | Fire Pit | 1.00 |
| 1 | Balcony | Cover Concrete Balc | 172.00 |
| 1 | Balcony | Wood Wood Fin | 456.00 |
| 1 | Basement | Finished | 1003.00 |
| 1 | Basement | Total Basement SF | 2058.00 |
| 1 | Fixture | Full Bath | 3.00 |
| 1 | Fixture | Half Bath | 1.00 |
| 1 | Garage | Attached | 662.00 |
| 1 | Porch | Open Slab | 689.00 |
| 1 | Porch | Slab Roof Ceil | 161.00 |
| 1 | Rough In | Rough In | 1.00 |
| Account | Parcel | Account Type | Tax Year | Buildings | Actual Value | Local Govt Assessed Value | School Assessed Value |
|---|---|---|---|---|---|---|---|
| R8942536 | 146720210006 | Residential | 2026 | 1 | 1,159,963 | 72,500 | 81,780 |
| Type | Code | Description | Actual Value | Local Govt Assessed Value | School Assessed Value | Acres | Land SqFt |
|---|---|---|---|---|---|---|---|
| Improvement | 1212 | SINGLE FAMILY RESIDENTIAL IMPROVEMENTS | 1,007,963 | 63,000 | 71,060 | 0.000 | 0 |
| Land | 1112 | SINGLE FAMILY RESIDENTIAL-LAND | 152,000 | 9,500 | 10,720 | 0.196 | 8,549 |
| Totals | - | - | 1,159,963 | 72,500 | 81,780 | 0.196 | 8,549 |
Comparable sales for your Residential or Commercial property may be found using our SALES SEARCH TOOL
Values are updated annually on May 1st for Real Property and June 15th for Personal Property and Oil and Gas.
| Account | Parcel | Account Type | Tax Year | Buildings | Actual Value | Local Govt Assessed Value | School Assessed Value |
|---|---|---|---|---|---|---|---|
| R8942536 | 146720210006 | Residential | 2026 | 1 | 1,159,963 | 72,500 | 81,780 |
| Tax Area | District ID | District Name | Local Govt Mill Levy |
School Mill Levy |
Estimated Taxes |
|---|---|---|---|---|---|
| 6997 | 1499 | ERIE HIGHLANDS METRO 1 | 49.276 | 0.000 | $3,572.51 |
| 6997 | 0404 | ERIE TOWN | 13.237 | 0.000 | $959.68 |
| 6997 | 1050 | HIGH PLAINS LIBRARY | 3.044 | 0.000 | $220.69 |
| 6997 | 0512 | MOUNTAIN VIEW FIRE PROTECTION DISTRICT | 16.342 | 0.000 | $1,184.80 |
| 6997 | 0301 | NORTHERN COLORADO WATER (NCW) | 1.000 | 0.000 | $72.50 |
| 6997 | 1360 | RTD | 0.000 | 0.000 | $0.00 |
| 6997 | 0213 | SCHOOL DIST RE1J-LONGMONT | 0.000 | 57.717 | $4,720.10 |
| 6997 | 0100 | WELD COUNTY | 15.956 | 0.000 | $1,156.81 |
| Total | - | - | 98.855 | 57.717 | $11,887.08 |
The estimate of tax is based on the prior year mill levy and the 2025 projected assessment rates. Mill levies and tax estimates will be updated yearly on December 22nd for the current year. Additional information can be found at https://assessor.weld.gov


