Account: R8944511

April 4, 2026

Account Parcel Account Type Tax Year Buildings Actual Value Local Govt Assessed Value School Assessed Value
R8944511 131129330003 Vacant Land 2026 1 511,334 31,960 36,050

Legal
Lot 3 Block 6 HIDDEN CREEK AM NO 1

Subdivision Block Lot Land Economic Area
HIDDEN CREEK AM NO 1 6 3 HIDDEN CREEK

Property Address Property City Section Township Range
7409 E BIG THOMPSON CIR FREDERICK 29 02 67




Account Parcel Account Type Tax Year Buildings Actual Value Local Govt Assessed Value School Assessed Value
R8944511 131129330003 Vacant Land 2026 1 511,334 31,960 36,050

Account Owner Name Address
R8944511 CLAPES ANTHONY P 7409 E BIG THOMPSON CIR FREDERICK, CO 805304874
R8944511 CLAPES KRISTIN G


Account Parcel Account Type Tax Year Buildings Actual Value Local Govt Assessed Value School Assessed Value
R8944511 131129330003 Vacant Land 2026 1 511,334 31,960 36,050

Reception Rec Date Type Grantor Grantee Doc Fee Sale Date Sale Price
4176526 NA SUB SUBDIVISION HIDDEN CREEK FINAL PLAT AMD #1 0.00 NA 0
4176526 01-27-2016 PLT HIDDEN CREEK AM NO 1 HIDDEN CREEK AM NO 1 0.00 11-24-2015 0
4443759 11-02-2018 SWD HIDDEN CREEK DEVELOPMENT LLC LGI HOMES - COLORADO LLC 668.36 11-01-2018 6,683,600
4996534 11-25-2024 SWD LGI HOMES - COLORADO LLC CLAPES ANTHONY P; CLAPES KRISTIN G 50.99 11-22-2024 509,900



Account Parcel Account Type Tax Year Buildings Actual Value Local Govt Assessed Value School Assessed Value
R8944511 131129330003 Vacant Land 2026 1 511,334 31,960 36,050

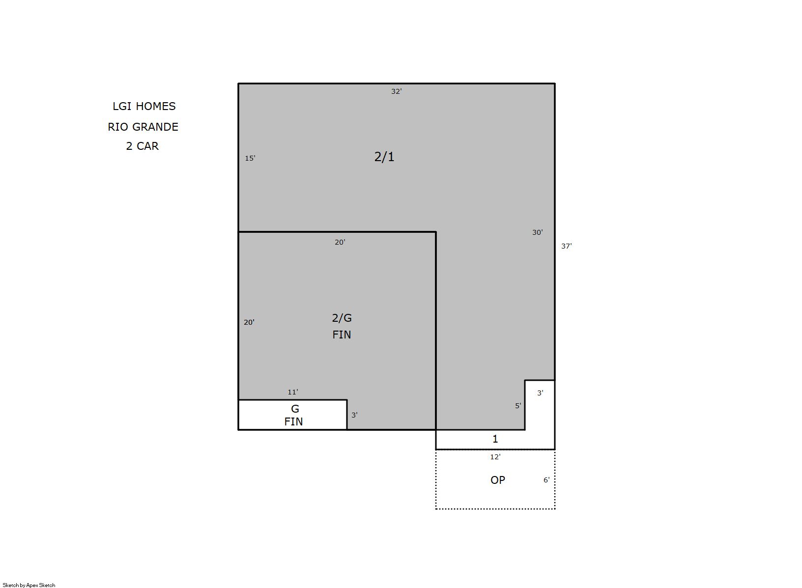
Building 1

AccountNo Building ID Occupancy
R8944511 1 Single Family Residential


ID Type NBHD Occupancy % Complete Bedrooms Baths
1 Residential 3K3025 Single Family Residential 100 3 3.00


ID Exterior Roof Cover Interior HVAC Perimeter Units Unit Type Make
1 Frame Siding Composition Shingle Drywall Central Air to Air 272 0 NA NA


ID Square Ft Condo SF Total Basement SF Finished Basement SF Garage SF Carport SF Balcony SF Porch SF
1 1,816 0 0 0 400 0 0 72


Built As Details for Building 1
ID Built As Square Ft Year Built Stories Length Width
1.00 2 Story 1,816 2023 2 0 0


Additional Details for Building 1
ID Detail Type Description Units
1 Fixture Full Bath 2.00
1 Fixture Half Bath 1.00
1 Garage Attached 400.00
1 Porch Slab Roof Ceil 72.00





Account Parcel Account Type Tax Year Buildings Actual Value Local Govt Assessed Value School Assessed Value
R8944511 131129330003 Vacant Land 2026 1 511,334 31,960 36,050

Type Code Description Actual Value Local Govt Assessed Value School Assessed Value Acres Land SqFt
Improvement 1212 SINGLE FAMILY RESIDENTIAL IMPROVEMENTS 391,334 24,460 27,590 0.000 0
Land 1112 SINGLE FAMILY RESIDENTIAL-LAND 120,000 7,500 8,460 0.145 6,300
Totals - - 511,334 31,960 36,050 0.145 6,300


Account Parcel Account Type Tax Year Buildings Actual Value Local Govt Assessed Value School Assessed Value
R8944511 131129330003 Vacant Land 2026 1 511,334 31,960 36,050

Tax Area District ID District Name Local Govt
Mill Levy
School
Mill Levy
Estimated
Taxes
5251 0900 CARBON VALLEY REC 4.427 0.000 $141.49
5251 0408 FREDERICK TOWN 6.555 0.000 $209.50
5251 0507 FREDERICK-FIRESTONE FIRE 15.559 0.000 $497.27
5251 1557 HIDDEN CREEK METRO DISTRICT 60.014 0.000 $1,918.05
5251 1050 HIGH PLAINS LIBRARY 3.044 0.000 $97.29
5251 1202 LONGMONT CONSERVATION 0.000 0.000 $0.00
5251 0301 NORTHERN COLORADO WATER (NCW) 1.000 0.000 $31.96
5251 0213 SCHOOL DIST RE1J-LONGMONT 0.000 57.717 $2,080.70
5251 0620 ST VRAIN SANITATION 0.316 0.000 $10.10
5251 0100 WELD COUNTY 15.956 0.000 $509.95
Total - - 106.871 57.717 $5,496.30


The estimate of tax is based on the prior year mill levy and the 2025 projected assessment rates. Mill levies and tax estimates will be updated yearly on December 22nd for the current year. Additional information can be found at https://assessor.weld.gov










Select Reports to Print: