Account: R8945751

April 1, 2026

Account Parcel Account Type Tax Year Buildings Actual Value Local Govt Assessed Value School Assessed Value
R8945751 080732448002 Residential 2026 1 669,538 41,850 47,200

Legal
Lot 2 Block 1 SOUTH HILL 2ND FG

Subdivision Block Lot Land Economic Area
SOUTH HILL 2ND FG 1 2 SOUTH HILL

Property Address Property City Section Township Range
885 CORN STALK DR WINDSOR 32 06 67




Account Parcel Account Type Tax Year Buildings Actual Value Local Govt Assessed Value School Assessed Value
R8945751 080732448002 Residential 2026 1 669,538 41,850 47,200

Account Owner Name Address
R8945751 MASTERS GWENDOYLN L 885 CORN STALK DR WINDSOR, CO 805503425
R8945751 MASTERS ARMAND P


Account Parcel Account Type Tax Year Buildings Actual Value Local Govt Assessed Value School Assessed Value
R8945751 080732448002 Residential 2026 1 669,538 41,850 47,200

Reception Rec Date Type Grantor Grantee Doc Fee Sale Date Sale Price
4205654 NA SUB SUBDIVISION SOUTH HILL 2ND FG 0.00 NA 0
4205654 05-23-2016 PLT SOUTH HILL 2ND FG SOUTH HILL 2ND FG 0.00 05-09-2016 0
4214132 06-24-2016 SWD TROLLCO INC PELICAN FARM INVESTMENTS LLC 800.00 06-21-2016 8,000,000
4214756 06-28-2016 SWD TROLLCO INC PELICAN FARM INVESTMENTS LLC 800.00 06-21-2016 8,000,000
4236791 09-15-2016 SWD PELICAN FARM INVESTMENTS LLC JOURNEY HOMES LLC 235.50 09-14-2016 2,355,000
4331855 08-31-2017 SWD JOURNEY HOMES LLC THAYER DANIEL C 44.01 08-30-2017 440,100
4669410 01-08-2021 SWD THAYER DANIEL C MASTERS GWENDOYLN L; MASTERS ARMAND P 55.40 01-06-2021 554,000



Account Parcel Account Type Tax Year Buildings Actual Value Local Govt Assessed Value School Assessed Value
R8945751 080732448002 Residential 2026 1 669,538 41,850 47,200

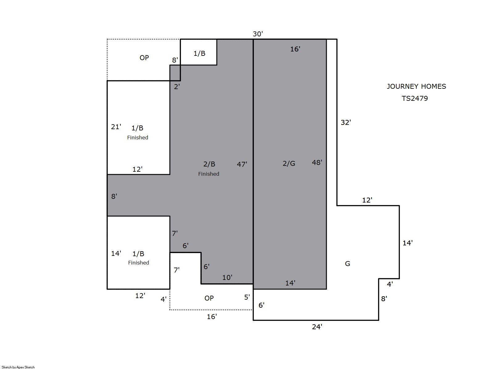
Building 1

AccountNo Building ID Occupancy
R8945751 1 Single Family Residential


ID Type NBHD Occupancy % Complete Bedrooms Baths
1 Residential 2W6018 Single Family Residential 100 6 5.00


ID Exterior Roof Cover Interior HVAC Perimeter Units Unit Type Make
1 Frame Siding Composition Shingle Drywall Central Air to Air 344 0 NA NA


ID Square Ft Condo SF Total Basement SF Finished Basement SF Garage SF Carport SF Balcony SF Porch SF
1 2,619 0 1,180 1,180 1,096 0 0 228


Built As Details for Building 1
ID Built As Square Ft Year Built Stories Length Width
1.00 2 Story 2,619 2016 2 0 0


Additional Details for Building 1
ID Detail Type Description Units
1 Add On Fireplace Gas 1.00
1 Basement Finished 1180.00
1 Basement Total Basement SF 1180.00
1 Fixture Full Bath 4.00
1 Fixture Half Bath 1.00
1 Garage Attached 1096.00
1 Porch Slab Roof Ceil 228.00
1 Rough In Rough In 1.00





Account Parcel Account Type Tax Year Buildings Actual Value Local Govt Assessed Value School Assessed Value
R8945751 080732448002 Residential 2026 1 669,538 41,850 47,200

Type Code Description Actual Value Local Govt Assessed Value School Assessed Value Acres Land SqFt
Improvement 1212 SINGLE FAMILY RESIDENTIAL IMPROVEMENTS 569,538 35,600 40,150 0.000 0
Land 1112 SINGLE FAMILY RESIDENTIAL-LAND 100,000 6,250 7,050 0.182 7,942
Totals - - 669,538 41,850 47,200 0.182 7,942


Account Parcel Account Type Tax Year Buildings Actual Value Local Govt Assessed Value School Assessed Value
R8945751 080732448002 Residential 2026 1 669,538 41,850 47,200

Tax Area District ID District Name Local Govt
Mill Levy
School
Mill Levy
Estimated
Taxes
0452 0700 AIMS JUNIOR COLLEGE 6.313 0.000 $264.20
0452 1051 CLEARVIEW LIBRARY 3.546 0.000 $148.40
0452 0301 NORTHERN COLORADO WATER (NCW) 1.000 0.000 $41.85
0452 0204 SCHOOL DIST RE4-WINDSOR 0.000 46.646 $2,201.69
0452 1304 WATER VALLEY METRO 2 41.079 0.000 $1,719.16
0452 0100 WELD COUNTY 15.956 0.000 $667.76
0452 1200 WEST GREELEY CONSERVATION 0.414 0.000 $17.33
0452 0428 WINDSOR TOWN 12.030 0.000 $503.46
0452 0521 WINDSOR-SEVERANCE FIRE 8.535 0.000 $357.19
Total - - 88.873 46.646 $5,921.03


The estimate of tax is based on the prior year mill levy and the 2025 projected assessment rates. Mill levies and tax estimates will be updated yearly on December 22nd for the current year. Additional information can be found at https://assessor.weld.gov










Select Reports to Print: