Account: R8945836
April 1, 2026
| Account | Parcel | Account Type | Tax Year | Buildings | Actual Value | Local Govt Assessed Value | School Assessed Value |
|---|---|---|---|---|---|---|---|
| R8945836 | 080732457004 | Residential | 2026 | 1 | 609,031 | 38,060 | 42,940 |
| Legal |
|---|
| Lot 4 Block 10 SOUTH HILL 2ND FG |
| Subdivision | Block | Lot | Land Economic Area |
|---|---|---|---|
| SOUTH HILL 2ND FG | 10 | 4 | SOUTH HILL |
| Property Address | Property City | Section | Township | Range |
|---|---|---|---|---|
| 972 TAIL WATER DR | WINDSOR | 32 | 06 | 67 |
| Account | Parcel | Account Type | Tax Year | Buildings | Actual Value | Local Govt Assessed Value | School Assessed Value |
|---|---|---|---|---|---|---|---|
| R8945836 | 080732457004 | Residential | 2026 | 1 | 609,031 | 38,060 | 42,940 |
| Account | Owner Name | Address |
|---|---|---|
| R8945836 | THAYER THOMAS | 972 TAIL WATER DR WINDSOR, CO 805503434 |
| R8945836 | THAYER TASHA |
| Account | Parcel | Account Type | Tax Year | Buildings | Actual Value | Local Govt Assessed Value | School Assessed Value |
|---|---|---|---|---|---|---|---|
| R8945836 | 080732457004 | Residential | 2026 | 1 | 609,031 | 38,060 | 42,940 |
| Reception | Rec Date | Type | Grantor | Grantee | Doc Fee | Sale Date | Sale Price |
|---|---|---|---|---|---|---|---|
| 4205654 | NA | SUB | SUBDIVISION | SOUTH HILL 2ND FG | 0.00 | NA | 0 |
| 4205654 | 05-23-2016 | PLT | SOUTH HILL 2ND FG | SOUTH HILL 2ND FG | 0.00 | 05-09-2016 | 0 |
| 4214132 | 06-24-2016 | SWD | TROLLCO INC | PELICAN FARM INVESTMENTS LLC | 800.00 | 06-21-2016 | 8,000,000 |
| 4214756 | 06-28-2016 | SWD | TROLLCO INC | PELICAN FARM INVESTMENTS LLC | 800.00 | 06-21-2016 | 8,000,000 |
| 4257903 | 12-01-2016 | SWD | PELICAN FARM INVESTMENTS LLC | COLA LLC | 416.50 | 11-30-2016 | 4,165,000 |
| 4270753 | 01-18-2017 | WDN | COLA LLC | ASPEN VIEW HOMES LLC | 0.00 | 01-12-2017 | 0 |
| 4289595 | 03-29-2017 | QCN | ASPEN VIEW HOMES LLC | COLA LLC | 0.00 | 03-24-2017 | 0 |
| 4289596 | 03-29-2017 | WD | COLA LLC | ASPEN VIEW HOMES LLC | 17.51 | 03-23-2017 | 175,100 |
| 4326510 | 08-11-2017 | WD | ASPEN VIEW HOMES LLC | THAYER TASHA; THAYER THOMAS | 42.85 | 08-11-2017 | 428,500 |
*If the hyperlink for the reception number does not work, try a manual search in the Clerk and Recorder records. Use the Grantor or Grantee in your search.
| Account | Parcel | Account Type | Tax Year | Buildings | Actual Value | Local Govt Assessed Value | School Assessed Value |
|---|---|---|---|---|---|---|---|
| R8945836 | 080732457004 | Residential | 2026 | 1 | 609,031 | 38,060 | 42,940 |
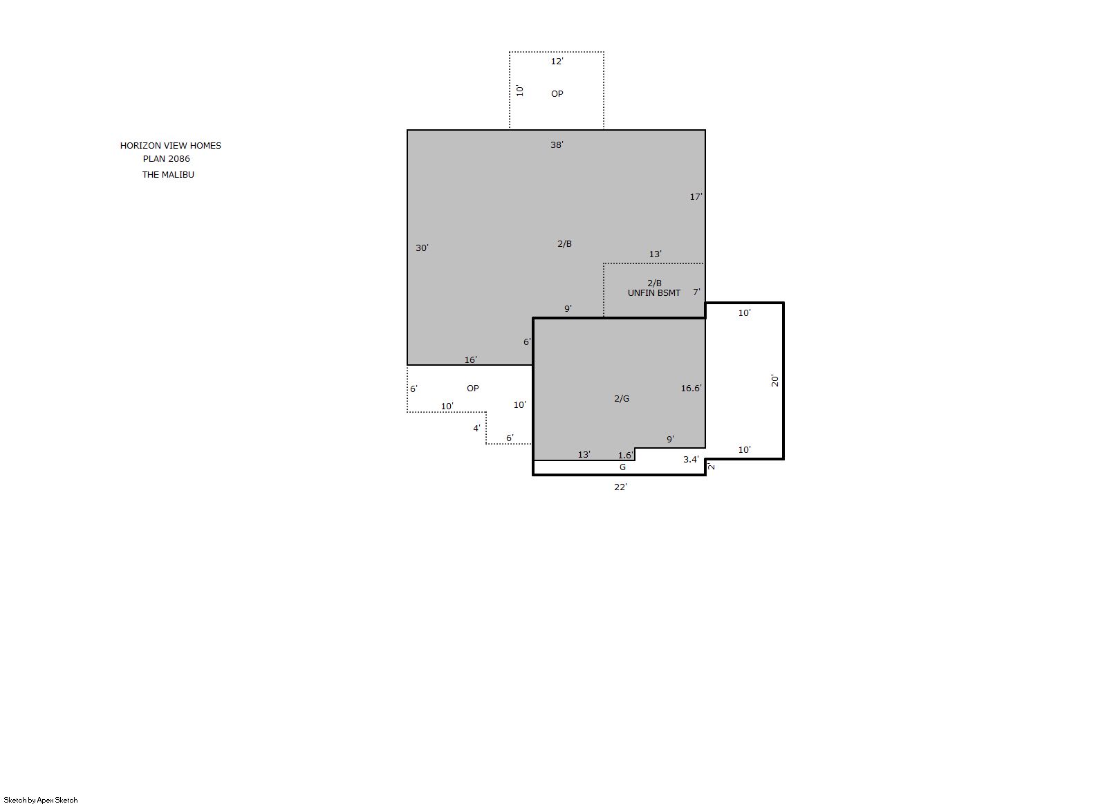
Building 1
| AccountNo | Building ID | Occupancy |
|---|---|---|
| R8945836 | 1 | Single Family Residential |
| ID | Type | NBHD | Occupancy | % Complete | Bedrooms | Baths |
|---|---|---|---|---|---|---|
| 1 | Residential | 2W6018 | Single Family Residential | 100 | 4 | 4.00 |
| ID | Exterior | Roof Cover | Interior | HVAC | Perimeter | Units | Unit Type | Make |
|---|---|---|---|---|---|---|---|---|
| 1 | Frame Siding | Composition Shingle | Drywall | Central Air to Air | 296 | 0 | NA | NA |
| ID | Square Ft | Condo SF | Total Basement SF | Finished Basement SF | Garage SF | Carport SF | Balcony SF | Porch SF |
|---|---|---|---|---|---|---|---|---|
| 1 | 2,402 | 0 | 1,008 | 917 | 640 | 0 | 0 | 240 |
| ID | Built As | Square Ft | Year Built | Stories | Length | Width |
|---|---|---|---|---|---|---|
| 1.00 | 2 Story | 2,402 | 2017 | 1 | 0 | 0 |
| ID | Detail Type | Description | Units |
|---|---|---|---|
| 1 | Basement | Finished | 917.00 |
| 1 | Basement | Total Basement SF | 1008.00 |
| 1 | Fixture | Full Bath | 3.00 |
| 1 | Fixture | Half Bath | 1.00 |
| 1 | Garage | Attached | 640.00 |
| 1 | Porch | Slab Roof Ceil | 240.00 |
| Account | Parcel | Account Type | Tax Year | Buildings | Actual Value | Local Govt Assessed Value | School Assessed Value |
|---|---|---|---|---|---|---|---|
| R8945836 | 080732457004 | Residential | 2026 | 1 | 609,031 | 38,060 | 42,940 |
| Type | Code | Description | Actual Value | Local Govt Assessed Value | School Assessed Value | Acres | Land SqFt |
|---|---|---|---|---|---|---|---|
| Improvement | 1212 | SINGLE FAMILY RESIDENTIAL IMPROVEMENTS | 509,031 | 31,810 | 35,890 | 0.000 | 0 |
| Land | 1112 | SINGLE FAMILY RESIDENTIAL-LAND | 100,000 | 6,250 | 7,050 | 0.226 | 9,864 |
| Totals | - | - | 609,031 | 38,060 | 42,940 | 0.226 | 9,864 |
Comparable sales for your Residential or Commercial property may be found using our SALES SEARCH TOOL
Values are updated annually on May 1st for Real Property and June 15th for Personal Property and Oil and Gas.
| Account | Parcel | Account Type | Tax Year | Buildings | Actual Value | Local Govt Assessed Value | School Assessed Value |
|---|---|---|---|---|---|---|---|
| R8945836 | 080732457004 | Residential | 2026 | 1 | 609,031 | 38,060 | 42,940 |
| Tax Area | District ID | District Name | Local Govt Mill Levy |
School Mill Levy |
Estimated Taxes |
|---|---|---|---|---|---|
| 0452 | 0700 | AIMS JUNIOR COLLEGE | 6.313 | 0.000 | $240.27 |
| 0452 | 1051 | CLEARVIEW LIBRARY | 3.546 | 0.000 | $134.96 |
| 0452 | 0301 | NORTHERN COLORADO WATER (NCW) | 1.000 | 0.000 | $38.06 |
| 0452 | 0204 | SCHOOL DIST RE4-WINDSOR | 0.000 | 46.646 | $2,002.98 |
| 0452 | 1304 | WATER VALLEY METRO 2 | 41.079 | 0.000 | $1,563.47 |
| 0452 | 0100 | WELD COUNTY | 15.956 | 0.000 | $607.29 |
| 0452 | 1200 | WEST GREELEY CONSERVATION | 0.414 | 0.000 | $15.76 |
| 0452 | 0428 | WINDSOR TOWN | 12.030 | 0.000 | $457.86 |
| 0452 | 0521 | WINDSOR-SEVERANCE FIRE | 8.535 | 0.000 | $324.84 |
| Total | - | - | 88.873 | 46.646 | $5,385.49 |
The estimate of tax is based on the prior year mill levy and the 2025 projected assessment rates. Mill levies and tax estimates will be updated yearly on December 22nd for the current year. Additional information can be found at https://assessor.weld.gov


