Account: R8946719
April 1, 2026
| Account | Parcel | Account Type | Tax Year | Buildings | Actual Value | Local Govt Assessed Value | School Assessed Value |
|---|---|---|---|---|---|---|---|
| R8946719 | 146933400041 | Agricultural | 2026 | 2 | 313,448 | 20,340 | 22,820 |
| Legal |
|---|
| PT SE4 33-1-67 LOT A REC EXEMPT RECX16-0076 |
| Subdivision | Block | Lot | Land Economic Area |
|---|---|---|---|
| SW ECON 4 RURAL |
| Property Address | Property City | Section | Township | Range |
|---|---|---|---|---|
| 8625 COUNTY ROAD 2 | WELD | 33 | 01 | 67 |
| Account | Parcel | Account Type | Tax Year | Buildings | Actual Value | Local Govt Assessed Value | School Assessed Value |
|---|---|---|---|---|---|---|---|
| R8946719 | 146933400041 | Agricultural | 2026 | 2 | 313,448 | 20,340 | 22,820 |
| Account | Owner Name | Address |
|---|---|---|
| R8946719 | KINNISON KERRI LYNN REVOCABLE TRUST | 134 LAKEFRONT DR MOORESVILLE, NC 281178771 |
| Account | Parcel | Account Type | Tax Year | Buildings | Actual Value | Local Govt Assessed Value | School Assessed Value |
|---|---|---|---|---|---|---|---|
| R8946719 | 146933400041 | Agricultural | 2026 | 2 | 313,448 | 20,340 | 22,820 |
| Reception | Rec Date | Type | Grantor | Grantee | Doc Fee | Sale Date | Sale Price |
|---|---|---|---|---|---|---|---|
| 4219060 | 07-14-2016 | RE | RECORDED EXEMPTION | RECX16-0076 | 0.00 | NA | 0 |
| 4219060 | 07-14-2016 | RE | RECX16-0076 | RECX16-0076 | 0.00 | 07-14-2016 | 0 |
| 4230313 | 08-23-2016 | OTH | MORR ASSETS LLC | KINNISON KERRI | 0.00 | 08-18-2016 | 0 |
| 4314831 | 06-30-2017 | QCN | MORR ASSETS LLC | KINNISON KERRI LYNN REVOCABLE TRUST | 0.00 | 06-30-2017 | 0 |
*If the hyperlink for the reception number does not work, try a manual search in the Clerk and Recorder records. Use the Grantor or Grantee in your search.
| Account | Parcel | Account Type | Tax Year | Buildings | Actual Value | Local Govt Assessed Value | School Assessed Value |
|---|---|---|---|---|---|---|---|
| R8946719 | 146933400041 | Agricultural | 2026 | 2 | 313,448 | 20,340 | 22,820 |
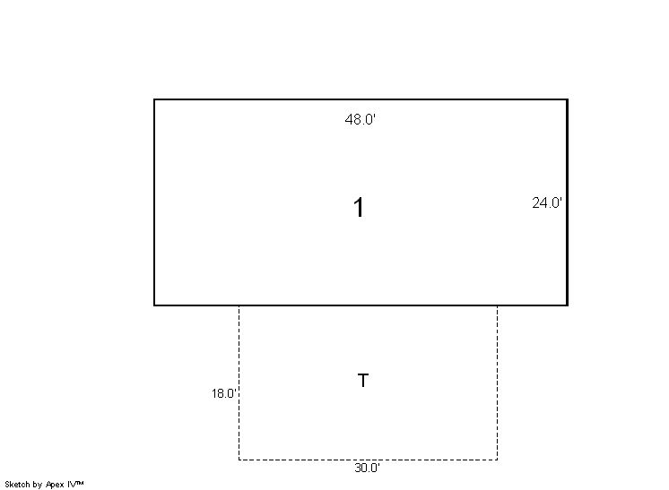
Building 1
| AccountNo | Building ID | Occupancy |
|---|---|---|
| R8946719 | 1 | Single Family Residential on Ag |
| ID | Type | NBHD | Occupancy | % Complete | Bedrooms | Baths |
|---|---|---|---|---|---|---|
| 1 | Residential | 4R0011 | Single Family Residential on Ag | 100 | 2 | 1.00 |
| ID | Exterior | Roof Cover | Interior | HVAC | Perimeter | Units | Unit Type | Make |
|---|---|---|---|---|---|---|---|---|
| 1 | Frame Siding | Composition Shingle | Drywall | Forced Air | 0 | 0 | NA | NA |
| ID | Square Ft | Condo SF | Total Basement SF | Finished Basement SF | Garage SF | Carport SF | Balcony SF | Porch SF |
|---|---|---|---|---|---|---|---|---|
| 1 | 1,152 | 0 | 0 | 0 | 0 | 0 | 0 | 540 |
| ID | Built As | Square Ft | Year Built | Stories | Length | Width |
|---|---|---|---|---|---|---|
| 1.00 | Ranch 1 Story | 1,152 | 1939 | 1 | 0 | 0 |
| ID | Detail Type | Description | Units |
|---|---|---|---|
| 1 | Fixture | Full Bath | 1.00 |
| 1 | Porch | Open Slab | 540.00 |
Building 2
| AccountNo | Building ID | Occupancy |
|---|---|---|
| R8946719 | 2 | Shed - Utility |
| ID | Type | NBHD | Occupancy | % Complete | Bedrooms | Baths |
|---|---|---|---|---|---|---|
| 2 | Out Building | NA | Shed - Utility | 100 | 0 | 0.00 |
| ID | Exterior | Roof Cover | Interior | HVAC | Perimeter | Units | Unit Type | Make |
|---|---|---|---|---|---|---|---|---|
| 2 | NA | NA | NA | None | 184 | 0 | NA | NA |
| ID | Square Ft | Condo SF | Total Basement SF | Finished Basement SF | Garage SF | Carport SF | Balcony SF | Porch SF |
|---|---|---|---|---|---|---|---|---|
| 2 | 1,632 | 0 | 0 | 0 | 0 | 0 | 0 | 0 |
| ID | Built As | Square Ft | Year Built | Stories | Length | Width |
|---|---|---|---|---|---|---|
| 2.00 | Shed - Utility | 1,632 | 1929 | 1 | 68 | 24 |
No Additional Details for Building 2
| Account | Parcel | Account Type | Tax Year | Buildings | Actual Value | Local Govt Assessed Value | School Assessed Value |
|---|---|---|---|---|---|---|---|
| R8946719 | 146933400041 | Agricultural | 2026 | 2 | 313,448 | 20,340 | 22,820 |
| Type | Code | Description | Actual Value | Local Govt Assessed Value | School Assessed Value | Acres | Land SqFt |
|---|---|---|---|---|---|---|---|
| Improvement | 4277 | FARM/RANCH RESIDENCE-IMPS | 309,828 | 19,360 | 21,840 | 0.000 | 0 |
| Improvement | 4279 | FARM RANCH SUPPORT BLDGS | 3,514 | 950 | 950 | 0.000 | 0 |
| Land | 4147 | GRAZING LAND-AGRICULTURAL | 106 | 30 | 30 | 6.340 | 276,170 |
| Totals | - | - | 313,448 | 20,340 | 22,820 | 6.340 | 276,170 |
Comparable sales for your Residential or Commercial property may be found using our SALES SEARCH TOOL
Values are updated annually on May 1st for Real Property and June 15th for Personal Property and Oil and Gas.
| Account | Parcel | Account Type | Tax Year | Buildings | Actual Value | Local Govt Assessed Value | School Assessed Value |
|---|---|---|---|---|---|---|---|
| R8946719 | 146933400041 | Agricultural | 2026 | 2 | 313,448 | 20,340 | 22,820 |
| Tax Area | District ID | District Name | Local Govt Mill Levy |
School Mill Levy |
Estimated Taxes |
|---|---|---|---|---|---|
| 2504 | 0700 | AIMS JUNIOR COLLEGE | 6.313 | 0.000 | $128.41 |
| 2504 | 0503 | GREATER BRIGHTON FIRE | 17.504 | 0.000 | $356.03 |
| 2504 | 1050 | HIGH PLAINS LIBRARY | 3.044 | 0.000 | $61.91 |
| 2504 | 0208 | SCHOOL DIST RE8-FORT LUPTON AND DACONO | 0.000 | 18.198 | $415.28 |
| 2504 | 0100 | WELD COUNTY | 15.956 | 0.000 | $324.55 |
| 2504 | 1209 | WEST ADAMS CONSERVATION | 0.000 | 0.000 | $0.00 |
| Total | - | - | 42.817 | 18.198 | $1,286.18 |
The estimate of tax is based on the prior year mill levy and the 2025 projected assessment rates. Mill levies and tax estimates will be updated yearly on December 22nd for the current year. Additional information can be found at https://assessor.weld.gov



