Account: R8947624
April 4, 2026
| Account | Parcel | Account Type | Tax Year | Buildings | Actual Value | Local Govt Assessed Value | School Assessed Value |
|---|---|---|---|---|---|---|---|
| R8947624 | 131333466005 | Residential | 2026 | 1 | 536,626 | 33,540 | 37,830 |
| Legal |
|---|
| LOT 5 BLK 19B WYNDHAM HILL FG 2 RPLT B |
| Subdivision | Block | Lot | Land Economic Area |
|---|---|---|---|
| WYNDHAM HILL FG 2 RPLT B | 19B | 5 | WYNDHAM HILL FG2 |
| Property Address | Property City | Section | Township | Range |
|---|---|---|---|---|
| 6034 SANDSTONE CIR | FREDERICK | 33 | 02 | 68 |
| Account | Parcel | Account Type | Tax Year | Buildings | Actual Value | Local Govt Assessed Value | School Assessed Value |
|---|---|---|---|---|---|---|---|
| R8947624 | 131333466005 | Residential | 2026 | 1 | 536,626 | 33,540 | 37,830 |
| Account | Owner Name | Address |
|---|---|---|
| R8947624 | HERRERA BRENDA ITZEL ROMERO | 6034 SANDSTONE CIR FREDERICK, CO 805169731 |
| R8947624 | DEJUAREZ MARIA DEJESUS ROSALBA HERRERA GARCIA | |
| R8947624 | HERRERA SANDRA LIZET ROMERO |
| Account | Parcel | Account Type | Tax Year | Buildings | Actual Value | Local Govt Assessed Value | School Assessed Value |
|---|---|---|---|---|---|---|---|
| R8947624 | 131333466005 | Residential | 2026 | 1 | 536,626 | 33,540 | 37,830 |
| Reception | Rec Date | Type | Grantor | Grantee | Doc Fee | Sale Date | Sale Price |
|---|---|---|---|---|---|---|---|
| 4268080 | NA | SUB | SUBDIVISION | WYNDHAM HILL FG #2 RPLT B | 0.00 | NA | 0 |
| 4268080 | 01-09-2017 | PLT | WYNDHAM HILL FG 2 RPLT B | WYNDHAM HILL FG 2 RPLT B | 0.00 | 01-09-2017 | 0 |
| 4300582 | 05-09-2017 | SWD | FREDERICK DEVELOPMENT COMPANY INC | CENTURY AT WYNDHAM HILL LLC | 157.85 | 05-08-2017 | 1,578,500 |
| 4495461 | 06-06-2019 | SWD | CENTURY AT WYNDHAM HILL LLC | HERRERA BRENDA ITZEL ROMERO; HERRERA SANDRA LIZET ROMERO; DEJUAREZ MARIA et al. | 40.00 | 05-31-2019 | 400,000 |
*If the hyperlink for the reception number does not work, try a manual search in the Clerk and Recorder records. Use the Grantor or Grantee in your search.
| Account | Parcel | Account Type | Tax Year | Buildings | Actual Value | Local Govt Assessed Value | School Assessed Value |
|---|---|---|---|---|---|---|---|
| R8947624 | 131333466005 | Residential | 2026 | 1 | 536,626 | 33,540 | 37,830 |
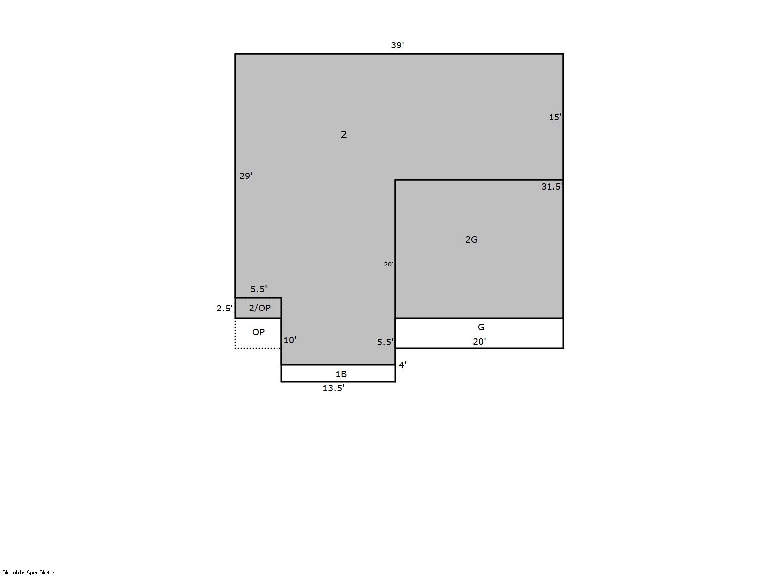
Building 1
| AccountNo | Building ID | Occupancy |
|---|---|---|
| R8947624 | 1 | Single Family Residential |
| ID | Type | NBHD | Occupancy | % Complete | Bedrooms | Baths |
|---|---|---|---|---|---|---|
| 1 | Residential | 3K2030 | Single Family Residential | 100 | 4 | 3.00 |
| ID | Exterior | Roof Cover | Interior | HVAC | Perimeter | Units | Unit Type | Make |
|---|---|---|---|---|---|---|---|---|
| 1 | Frame Siding | Composition Shingle | Drywall | Central Air to Air | 308 | 0 | NA | NA |
| ID | Square Ft | Condo SF | Total Basement SF | Finished Basement SF | Garage SF | Carport SF | Balcony SF | Porch SF |
|---|---|---|---|---|---|---|---|---|
| 1 | 2,289 | 0 | 0 | 0 | 400 | 0 | 0 | 33 |
| ID | Built As | Square Ft | Year Built | Stories | Length | Width |
|---|---|---|---|---|---|---|
| 1.00 | 2 Story | 2,289 | 2018 | 2 | 0 | 0 |
| ID | Detail Type | Description | Units |
|---|---|---|---|
| 1 | Fixture | Full Bath | 2.00 |
| 1 | Fixture | Half Bath | 1.00 |
| 1 | Garage | Attached | 400.00 |
| 1 | Porch | Open Slab | 33.00 |
| Account | Parcel | Account Type | Tax Year | Buildings | Actual Value | Local Govt Assessed Value | School Assessed Value |
|---|---|---|---|---|---|---|---|
| R8947624 | 131333466005 | Residential | 2026 | 1 | 536,626 | 33,540 | 37,830 |
| Type | Code | Description | Actual Value | Local Govt Assessed Value | School Assessed Value | Acres | Land SqFt |
|---|---|---|---|---|---|---|---|
| Improvement | 1212 | SINGLE FAMILY RESIDENTIAL IMPROVEMENTS | 421,626 | 26,350 | 29,720 | 0.000 | 0 |
| Land | 1112 | SINGLE FAMILY RESIDENTIAL-LAND | 115,000 | 7,190 | 8,110 | 0.130 | 5,676 |
| Totals | - | - | 536,626 | 33,540 | 37,830 | 0.130 | 5,676 |
Comparable sales for your Residential or Commercial property may be found using our SALES SEARCH TOOL
Values are updated annually on May 1st for Real Property and June 15th for Personal Property and Oil and Gas.
| Account | Parcel | Account Type | Tax Year | Buildings | Actual Value | Local Govt Assessed Value | School Assessed Value |
|---|---|---|---|---|---|---|---|
| R8947624 | 131333466005 | Residential | 2026 | 1 | 536,626 | 33,540 | 37,830 |
| Tax Area | District ID | District Name | Local Govt Mill Levy |
School Mill Levy |
Estimated Taxes |
|---|---|---|---|---|---|
| 4118 | 0900 | CARBON VALLEY REC | 4.427 | 0.000 | $148.48 |
| 4118 | 0408 | FREDERICK TOWN | 6.555 | 0.000 | $219.85 |
| 4118 | 0507 | FREDERICK-FIRESTONE FIRE | 15.559 | 0.000 | $521.85 |
| 4118 | 1050 | HIGH PLAINS LIBRARY | 3.044 | 0.000 | $102.10 |
| 4118 | 0311 | LEFT HAND WATER | 0.000 | 0.000 | $0.00 |
| 4118 | 1202 | LONGMONT CONSERVATION | 0.000 | 0.000 | $0.00 |
| 4118 | 0301 | NORTHERN COLORADO WATER (NCW) | 1.000 | 0.000 | $33.54 |
| 4118 | 0213 | SCHOOL DIST RE1J-LONGMONT | 0.000 | 57.717 | $2,183.43 |
| 4118 | 0620 | ST VRAIN SANITATION | 0.316 | 0.000 | $10.60 |
| 4118 | 0100 | WELD COUNTY | 15.956 | 0.000 | $535.16 |
| 4118 | 1357 | WYNDHAM HILL METRO 2 | 63.054 | 0.000 | $2,114.83 |
| Total | - | - | 109.911 | 57.717 | $5,869.85 |
The estimate of tax is based on the prior year mill levy and the 2025 projected assessment rates. Mill levies and tax estimates will be updated yearly on December 22nd for the current year. Additional information can be found at https://assessor.weld.gov


