Account: R8947870

April 5, 2026

Account Parcel Account Type Tax Year Buildings Actual Value Local Govt Assessed Value School Assessed Value
R8947870 131334467012 Residential 2026 1 546,565 34,160 38,540

Legal
Lot 12Block 4 WYNDHAM HILL FG 4 RPLT B

Subdivision Block Lot Land Economic Area
WYNDHAM HILL FG 4 RPLT B 4 12 WYNDHAM HILLS

Property Address Property City Section Township Range
6509 COPPER DR FREDERICK 34 02 68




Account Parcel Account Type Tax Year Buildings Actual Value Local Govt Assessed Value School Assessed Value
R8947870 131334467012 Residential 2026 1 546,565 34,160 38,540

Account Owner Name Address
R8947870 GAYTAN SAMUEL JOSEPH 6509 COPPER DR FREDERICK, CO 805169349
R8947870 GAYTAN RACHAEL BRIANNE


Account Parcel Account Type Tax Year Buildings Actual Value Local Govt Assessed Value School Assessed Value
R8947870 131334467012 Residential 2026 1 546,565 34,160 38,540

Reception Rec Date Type Grantor Grantee Doc Fee Sale Date Sale Price
4263898 NA SUB SUBDIVISION WYNDHAM HILL FG #4 RPLT B 0.00 NA 0
4263898 12-21-2016 PLT WYNDHAM HILL FG 4 RPLT B WYNDHAM HILL FG 4 RPLT B 0.00 12-05-2016 0
4263902 12-21-2016 SWD FREDERICK DEVELOPMENT COMPANY INC RICHMOND AMERICAN HOMES OF COLORADO INC 178.13 12-20-2016 1,781,300
4528104 10-01-2019 SWD RICHMOND AMERICAN HOMES OF COLORADO INC GAYTAN SAMUEL JOSEPH; GAYTAN RACHAEL BRIANNE 40.78 08-16-2019 407,800



Account Parcel Account Type Tax Year Buildings Actual Value Local Govt Assessed Value School Assessed Value
R8947870 131334467012 Residential 2026 1 546,565 34,160 38,540

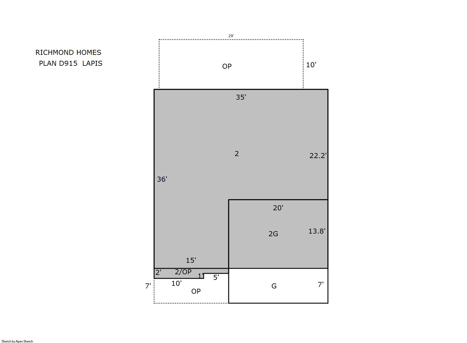
Building 1

AccountNo Building ID Occupancy
R8947870 1 Single Family Residential


ID Type NBHD Occupancy % Complete Bedrooms Baths
1 Residential 3K2030 Single Family Residential 100 4 3.00


ID Exterior Roof Cover Interior HVAC Perimeter Units Unit Type Make
1 Frame Siding Composition Shingle Drywall Central Air to Air 288 0 NA NA


ID Square Ft Condo SF Total Basement SF Finished Basement SF Garage SF Carport SF Balcony SF Porch SF
1 2,269 0 0 0 416 0 0 395


Built As Details for Building 1
ID Built As Square Ft Year Built Stories Length Width
1.00 2 Story 2,269 2019 2 0 0


Additional Details for Building 1
ID Detail Type Description Units
1 Fixture Full Bath 2.00
1 Fixture Half Bath 1.00
1 Garage Attached 416.00
1 Porch Slab Roof Ceil 395.00





Account Parcel Account Type Tax Year Buildings Actual Value Local Govt Assessed Value School Assessed Value
R8947870 131334467012 Residential 2026 1 546,565 34,160 38,540

Type Code Description Actual Value Local Govt Assessed Value School Assessed Value Acres Land SqFt
Improvement 1212 SINGLE FAMILY RESIDENTIAL IMPROVEMENTS 431,565 26,970 30,430 0.000 0
Land 1112 SINGLE FAMILY RESIDENTIAL-LAND 115,000 7,190 8,110 0.126 5,500
Totals - - 546,565 34,160 38,540 0.126 5,500


Account Parcel Account Type Tax Year Buildings Actual Value Local Govt Assessed Value School Assessed Value
R8947870 131334467012 Residential 2026 1 546,565 34,160 38,540

Tax Area District ID District Name Local Govt
Mill Levy
School
Mill Levy
Estimated
Taxes
4118 0900 CARBON VALLEY REC 4.427 0.000 $151.23
4118 0408 FREDERICK TOWN 6.555 0.000 $223.92
4118 0507 FREDERICK-FIRESTONE FIRE 15.559 0.000 $531.50
4118 1050 HIGH PLAINS LIBRARY 3.044 0.000 $103.98
4118 0311 LEFT HAND WATER 0.000 0.000 $0.00
4118 1202 LONGMONT CONSERVATION 0.000 0.000 $0.00
4118 0301 NORTHERN COLORADO WATER (NCW) 1.000 0.000 $34.16
4118 0213 SCHOOL DIST RE1J-LONGMONT 0.000 57.717 $2,224.41
4118 0620 ST VRAIN SANITATION 0.316 0.000 $10.79
4118 0100 WELD COUNTY 15.956 0.000 $545.06
4118 1357 WYNDHAM HILL METRO 2 63.054 0.000 $2,153.92
Total - - 109.911 57.717 $5,978.97


The estimate of tax is based on the prior year mill levy and the 2025 projected assessment rates. Mill levies and tax estimates will be updated yearly on December 22nd for the current year. Additional information can be found at https://assessor.weld.gov










Select Reports to Print: