Account: R8948798

April 1, 2026

Account Parcel Account Type Tax Year Buildings Actual Value Local Govt Assessed Value School Assessed Value
R8948798 080117300006 Agricultural 2026 2 555,475 36,830 41,190

Legal
PT SW4 17 6 64 LOT B REC EXEMPT RECX16-0139

Subdivision Block Lot Land Economic Area
GILL/ GALETON RURAL

Property Address Property City Section Township Range
33154 COUNTY ROAD 51 WELD 17 06 64




Account Parcel Account Type Tax Year Buildings Actual Value Local Govt Assessed Value School Assessed Value
R8948798 080117300006 Agricultural 2026 2 555,475 36,830 41,190

Account Owner Name Address
R8948798 ABERNATHY BRETT L 33154 COUNTY ROAD 51 GREELEY, CO 806319681


Account Parcel Account Type Tax Year Buildings Actual Value Local Govt Assessed Value School Assessed Value
R8948798 080117300006 Agricultural 2026 2 555,475 36,830 41,190

Reception Rec Date Type Grantor Grantee Doc Fee Sale Date Sale Price
4297010 04-26-2017 RE RECORDED EXEMPTION RECX16-0139 0.00 NA 0
4297010 04-26-2017 RE RECX16-0139 RECX16-0139 0.00 04-24-2017 0
4303795 05-22-2017 QCN ABERNATHY BRETT L ABERNATHY BRETT L 0.00 05-22-2017 0



Account Parcel Account Type Tax Year Buildings Actual Value Local Govt Assessed Value School Assessed Value
R8948798 080117300006 Agricultural 2026 2 555,475 36,830 41,190

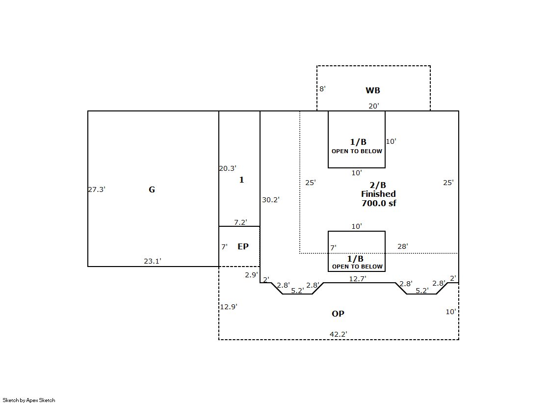
Building 1

AccountNo Building ID Occupancy
R8948798 1 Single Family Residential on Ag


ID Type NBHD Occupancy % Complete Bedrooms Baths
1 Residential 7R0004 Single Family Residential on Ag 100 3 3.00


ID Exterior Roof Cover Interior HVAC Perimeter Units Unit Type Make
1 Frame Hardboard Composition Shingle Drywall Central Air to Air 356 1 NA NA


ID Square Ft Condo SF Total Basement SF Finished Basement SF Garage SF Carport SF Balcony SF Porch SF
1 2,146 0 1,085 700 631 0 160 415


Built As Details for Building 1
ID Built As Square Ft Year Built Stories Length Width
1.00 2 Story 2,146 2003 1 0 0


Additional Details for Building 1
ID Detail Type Description Units
1 Balcony Wood Wood Fin 160.00
1 Basement Finished 700.00
1 Basement Total Basement SF 1085.00
1 Fixture Full Bath 3.00
1 Fixture Half Bath 1.00
1 Garage Attached 631.00
1 Porch Encl Solid Wall 51.00
1 Porch Slab Roof Ceil 415.00



Building 2

AccountNo Building ID Occupancy
R8948798 2 Utility Building


ID Type NBHD Occupancy % Complete Bedrooms Baths
2 Out Building NA Utility Building 100 NA 0.00


ID Exterior Roof Cover Interior HVAC Perimeter Units Unit Type Make
2 NA NA NA None 164 0 NA NA


ID Square Ft Condo SF Total Basement SF Finished Basement SF Garage SF Carport SF Balcony SF Porch SF
2 1,672 0 0 0 0 0 0 0


Built As Details for Building 2
ID Built As Square Ft Year Built Stories Length Width
2.00 Utility Building 1,672 2011 1 44 38

No Additional Details for Building 2






Account Parcel Account Type Tax Year Buildings Actual Value Local Govt Assessed Value School Assessed Value
R8948798 080117300006 Agricultural 2026 2 555,475 36,830 41,190

Type Code Description Actual Value Local Govt Assessed Value School Assessed Value Acres Land SqFt
Improvement 4277 FARM/RANCH RESIDENCE-IMPS 545,335 34,080 38,450 0.000 0
Improvement 4279 FARM RANCH SUPPORT BLDGS 10,071 2,720 2,720 0.000 0
Land 4147 GRAZING LAND-AGRICULTURAL 65 20 20 4.028 175,455
Land 4167 WASTE LAND 4 10 0 0.572 24,921
Totals - - 555,475 36,830 41,190 4.600 200,376


Account Parcel Account Type Tax Year Buildings Actual Value Local Govt Assessed Value School Assessed Value
R8948798 080117300006 Agricultural 2026 2 555,475 36,830 41,190

Tax Area District ID District Name Local Govt
Mill Levy
School
Mill Levy
Estimated
Taxes
5049 0700 AIMS JUNIOR COLLEGE 6.313 0.000 $232.51
5049 0911 EATON AREA PARK AND RECREATION DISTRICT 5.425 0.000 $199.80
5049 0508 GALETON FIRE 4.000 0.000 $147.32
5049 1050 HIGH PLAINS LIBRARY 3.044 0.000 $112.11
5049 0304 NORTH WELD COUNTY WATER (NWC) 0.000 0.000 $0.00
5049 0301 NORTHERN COLORADO WATER (NCW) 1.000 0.000 $36.83
5049 0202 SCHOOL DIST RE2-EATON 0.000 34.206 $1,408.95
5049 0100 WELD COUNTY 15.956 0.000 $587.66
5049 1200 WEST GREELEY CONSERVATION 0.414 0.000 $15.25
Total - - 36.152 34.206 $2,740.42


The estimate of tax is based on the prior year mill levy and the 2025 projected assessment rates. Mill levies and tax estimates will be updated yearly on December 22nd for the current year. Additional information can be found at https://assessor.weld.gov










Select Reports to Print: