Account: R8948970

April 1, 2026

Account Parcel Account Type Tax Year Buildings Actual Value Local Govt Assessed Value School Assessed Value
R8948970 131113300022 Agricultural 2026 3 892,971 98,310 103,810

Legal
PT N2SW4 13-2-67 LOT B REC EXEMPT RECX17-0007

Subdivision Block Lot Land Economic Area
CENTRAL ECON 4 RURAL

Property Address Property City Section Township Range
9124 COUNTY ROAD 23 WELD 13 02 67




Account Parcel Account Type Tax Year Buildings Actual Value Local Govt Assessed Value School Assessed Value
R8948970 131113300022 Agricultural 2026 3 892,971 98,310 103,810

Account Owner Name Address
R8948970 PICKERING CODY 9124 COUNTY ROAD 23 FORT LUPTON, CO 806219304
R8948970 PICKERING RANA


Account Parcel Account Type Tax Year Buildings Actual Value Local Govt Assessed Value School Assessed Value
R8948970 131113300022 Agricultural 2026 3 892,971 98,310 103,810

Reception Rec Date Type Grantor Grantee Doc Fee Sale Date Sale Price
4299270 05-03-2017 RE RECORDED EXEMPTION RECX17-0007 0.00 NA 0
4299270 05-03-2017 RE RECX17-0007 RECX17-0007 0.00 04-28-2017 0
4436872 10-08-2018 QCN SURE SHOT PROPERTIES LLC SURE SHOT PROPERTIES LLC 0.00 10-03-2018 0
4572943 03-09-2020 SWDN SURE SHOT PROPERTIES LLC SHOEMAKER LONNIE 0.00 03-02-2020 0
4756604 09-15-2021 USR USR20-0028 USR20-0028 0.00 09-07-2021 0
4842707 07-18-2022 SWD SHOEMAKER LONNIE PICKERING CODY; PICKERING RANA 113.50 07-14-2022 1,135,000



Account Parcel Account Type Tax Year Buildings Actual Value Local Govt Assessed Value School Assessed Value
R8948970 131113300022 Agricultural 2026 3 892,971 98,310 103,810

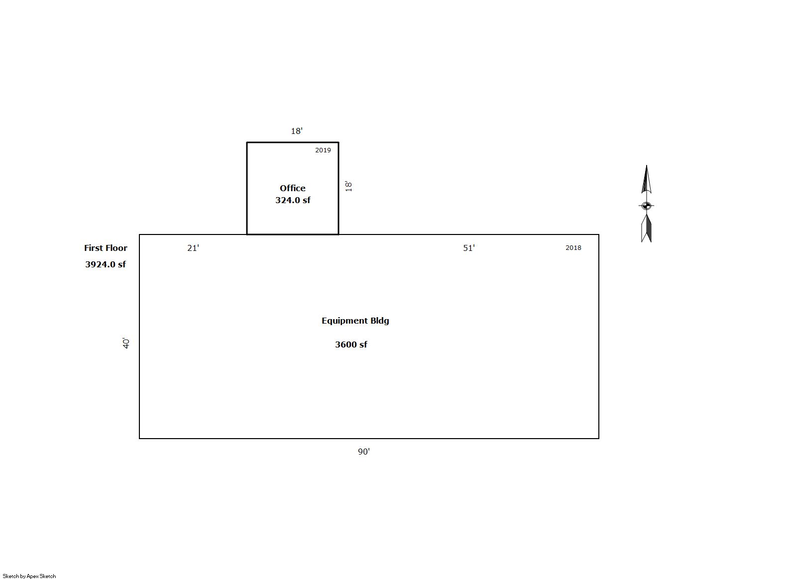
Building 1

AccountNo Building ID Occupancy
R8948970 1 Warehouse


ID Type NBHD Occupancy % Complete Bedrooms Baths
1 Commercial NA Warehouse 100 NA 0.00


ID Exterior Roof Cover Interior HVAC Perimeter Units Unit Type Make
1 NA NA NA Electric 296 0 NA NA


ID Square Ft Condo SF Total Basement SF Finished Basement SF Garage SF Carport SF Balcony SF Porch SF
1 3,924 0 0 0 0 0 0 0


Built As Details for Building 1
ID Built As Square Ft Year Built Stories Length Width
1.00 Office Building 324 2019 1 18 18
1.00 Equipment Building 3,600 2018 1 90 40

No Additional Details for Building 1




Building 2

AccountNo Building ID Occupancy
R8948970 2 Single Family Residential on Ag


ID Type NBHD Occupancy % Complete Bedrooms Baths
2 Residential 4R1016 Single Family Residential on Ag 100 5 4.00


ID Exterior Roof Cover Interior HVAC Perimeter Units Unit Type Make
2 Frame Siding Composition Shingle Drywall Central Air to Air 194 0 NA NA


ID Square Ft Condo SF Total Basement SF Finished Basement SF Garage SF Carport SF Balcony SF Porch SF
2 2,112 0 2,112 1,584 712 0 0 340


Built As Details for Building 2
ID Built As Square Ft Year Built Stories Length Width
2.00 Ranch 1 Story 2,112 2019 1 0 0


Additional Details for Building 2
ID Detail Type Description Units
2 Add On Swimming Pools 1.00
2 Basement Finished 1584.00
2 Basement Total Basement SF 2112.00
2 Fixture Full Bath 3.00
2 Fixture Half Bath 1.00
2 Garage Attached 712.00
2 Porch Slab Roof Ceil 340.00



Building 3

AccountNo Building ID Occupancy
R8948970 3 Shed - Cattle


ID Type NBHD Occupancy % Complete Bedrooms Baths
3 Out Building NA Shed - Cattle 100 NA 0.00


ID Exterior Roof Cover Interior HVAC Perimeter Units Unit Type Make
3 NA NA NA NA 144 0 NA NA


ID Square Ft Condo SF Total Basement SF Finished Basement SF Garage SF Carport SF Balcony SF Porch SF
3 2,584 0 0 0 0 0 0 0


Built As Details for Building 3
ID Built As Square Ft Year Built Stories Length Width
3.00 Shed - Cattle 2,584 2020 1 76 34

No Additional Details for Building 3






Account Parcel Account Type Tax Year Buildings Actual Value Local Govt Assessed Value School Assessed Value
R8948970 131113300022 Agricultural 2026 3 892,971 98,310 103,810

Type Code Description Actual Value Local Govt Assessed Value School Assessed Value Acres Land SqFt
Improvement 2235 WAREHOUSE/STORAGE-IMPS 126,452 34,140 34,140 0.000 0
Improvement 4277 FARM/RANCH RESIDENCE-IMPS 688,192 43,010 48,520 0.000 0
Improvement 4279 FARM RANCH SUPPORT BLDGS 17,413 4,700 4,700 0.000 0
Land 2135 WAREHOUSE/STORAGE-LAND 60,389 16,310 16,310 2.000 87,120
Land 4127 DRY FARM LAND-AGRICULTURAL 522 140 140 5.580 243,065
Land 4167 WASTE LAND 3 10 0 0.420 18,295
Totals - - 892,971 98,310 103,810 8.000 348,480


Account Parcel Account Type Tax Year Buildings Actual Value Local Govt Assessed Value School Assessed Value
R8948970 131113300022 Agricultural 2026 3 892,971 98,310 103,810

Tax Area District ID District Name Local Govt
Mill Levy
School
Mill Levy
Estimated
Taxes
2228 0700 AIMS JUNIOR COLLEGE 6.313 0.000 $620.63
2228 0302 CENTRAL COLORADO WATER (CCW) 0.980 0.000 $96.34
2228 0309 CENTRAL COLORADO WATER SUBDISTRICT (CCS) 1.462 0.000 $143.73
2228 0506 FORT LUPTON FIRE 9.357 0.000 $919.89
2228 1050 HIGH PLAINS LIBRARY 3.044 0.000 $299.26
2228 0301 NORTHERN COLORADO WATER (NCW) 1.000 0.000 $98.31
2228 1201 PLATTE VALLEY CONSERVATION 0.000 0.000 $0.00
2228 0208 SCHOOL DIST RE8-FORT LUPTON AND DACONO 0.000 18.198 $1,889.13
2228 0100 WELD COUNTY 15.956 0.000 $1,568.63
Total - - 38.112 18.198 $5,635.93


The estimate of tax is based on the prior year mill levy and the 2025 projected assessment rates. Mill levies and tax estimates will be updated yearly on December 22nd for the current year. Additional information can be found at https://assessor.weld.gov










Select Reports to Print: