Account: R8949108
April 2, 2026
| Account | Parcel | Account Type | Tax Year | Buildings | Actual Value | Local Govt Assessed Value | School Assessed Value |
|---|---|---|---|---|---|---|---|
| R8949108 | 147731200001 | Agricultural | 2026 | 1 | 485,350 | 30,720 | 34,590 |
| Legal |
|---|
| NW4 31-1-63 LOT A REC EXEMPT RECX16-0181 |
| Subdivision | Block | Lot | Land Economic Area |
|---|---|---|---|
| ECON 5 RURAL |
| Property Address | Property City | Section | Township | Range |
|---|---|---|---|---|
| 871 COUNTY ROAD 63 | 31 | 01 | 63 |
| Account | Parcel | Account Type | Tax Year | Buildings | Actual Value | Local Govt Assessed Value | School Assessed Value |
|---|---|---|---|---|---|---|---|
| R8949108 | 147731200001 | Agricultural | 2026 | 1 | 485,350 | 30,720 | 34,590 |
| Account | Owner Name | Address |
|---|---|---|
| R8949108 | BLUNN QUINTON | 871 COUNTY ROAD 63 KEENESBURG, CO 806438407 |
| R8949108 | BLUNN KAYLEE |
| Account | Parcel | Account Type | Tax Year | Buildings | Actual Value | Local Govt Assessed Value | School Assessed Value |
|---|---|---|---|---|---|---|---|
| R8949108 | 147731200001 | Agricultural | 2026 | 1 | 485,350 | 30,720 | 34,590 |
| Reception | Rec Date | Type | Grantor | Grantee | Doc Fee | Sale Date | Sale Price |
|---|---|---|---|---|---|---|---|
| 4299273 | 05-03-2017 | RE | RECX16-0181 | RECX16-0181 | 0.00 | 05-01-2017 | 0 |
| 4299273 | 05-03-2017 | RE | RECORDED EXEMPTION | RECX16-0181 | 0.00 | NA | 0 |
| 4313022 | 06-26-2017 | WD | COAN MICHAEL J | BLUNN QUINTON | 6.67 | 06-23-2017 | 66,700 |
| 4404574 | 06-05-2018 | QCN | BLUNN QUINTON | BLUNN KAYLEE; BLUNN QUINTON | 0.00 | 05-31-2018 | 0 |
*If the hyperlink for the reception number does not work, try a manual search in the Clerk and Recorder records. Use the Grantor or Grantee in your search.
| Account | Parcel | Account Type | Tax Year | Buildings | Actual Value | Local Govt Assessed Value | School Assessed Value |
|---|---|---|---|---|---|---|---|
| R8949108 | 147731200001 | Agricultural | 2026 | 1 | 485,350 | 30,720 | 34,590 |
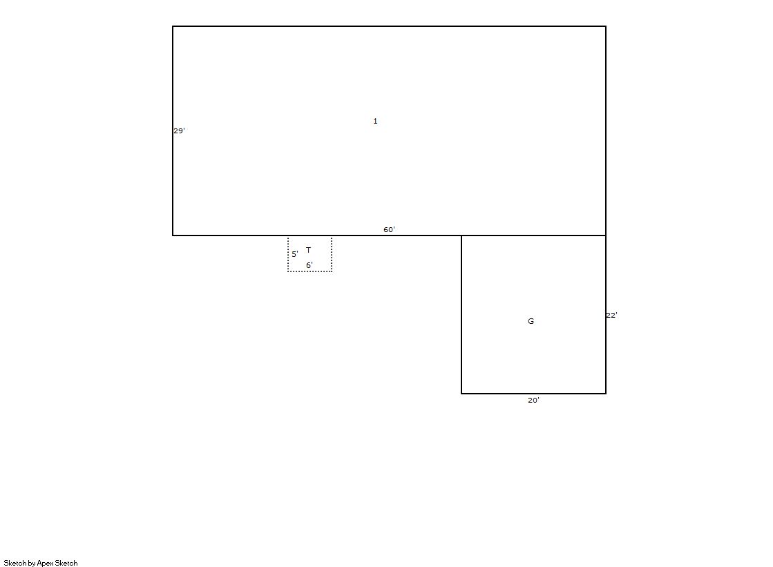
Building 1
| AccountNo | Building ID | Occupancy |
|---|---|---|
| R8949108 | 1 | Single Family Residential on Ag |
| ID | Type | NBHD | Occupancy | % Complete | Bedrooms | Baths |
|---|---|---|---|---|---|---|
| 1 | Residential | 5R0007 | Single Family Residential on Ag | 100 | 2 | 0.00 |
| ID | Exterior | Roof Cover | Interior | HVAC | Perimeter | Units | Unit Type | Make |
|---|---|---|---|---|---|---|---|---|
| 1 | Frame Hardboard | Composition Shingle | Drywall | Central Air to Air | 178 | 0 | NA | NA |
| ID | Square Ft | Condo SF | Total Basement SF | Finished Basement SF | Garage SF | Carport SF | Balcony SF | Porch SF |
|---|---|---|---|---|---|---|---|---|
| 1 | 1,740 | 0 | 0 | 0 | 440 | 0 | 0 | 30 |
| ID | Built As | Square Ft | Year Built | Stories | Length | Width |
|---|---|---|---|---|---|---|
| 1.00 | Modular 1 Story | 1,740 | 2018 | 1 | 60 | 29 |
| ID | Detail Type | Description | Units |
|---|---|---|---|
| 1 | Fixture | Full Bath | 2.00 |
| 1 | Garage | Attached | 440.00 |
| 1 | Porch | Open Slab | 30.00 |
| Account | Parcel | Account Type | Tax Year | Buildings | Actual Value | Local Govt Assessed Value | School Assessed Value |
|---|---|---|---|---|---|---|---|
| R8949108 | 147731200001 | Agricultural | 2026 | 1 | 485,350 | 30,720 | 34,590 |
| Type | Code | Description | Actual Value | Local Govt Assessed Value | School Assessed Value | Acres | Land SqFt |
|---|---|---|---|---|---|---|---|
| Improvement | 4277 | FARM/RANCH RESIDENCE-IMPS | 483,498 | 30,220 | 34,090 | 0.000 | 0 |
| Land | 4127 | DRY FARM LAND-AGRICULTURAL | 1,852 | 500 | 500 | 10.000 | 435,600 |
| Totals | - | - | 485,350 | 30,720 | 34,590 | 10.000 | 435,600 |
Comparable sales for your Residential or Commercial property may be found using our SALES SEARCH TOOL
Values are updated annually on May 1st for Real Property and June 15th for Personal Property and Oil and Gas.
| Account | Parcel | Account Type | Tax Year | Buildings | Actual Value | Local Govt Assessed Value | School Assessed Value |
|---|---|---|---|---|---|---|---|
| R8949108 | 147731200001 | Agricultural | 2026 | 1 | 485,350 | 30,720 | 34,590 |
| Tax Area | District ID | District Name | Local Govt Mill Levy |
School Mill Levy |
Estimated Taxes |
|---|---|---|---|---|---|
| 2449 | 0700 | AIMS JUNIOR COLLEGE | 6.313 | 0.000 | $193.94 |
| 2449 | 0302 | CENTRAL COLORADO WATER (CCW) | 0.980 | 0.000 | $30.11 |
| 2449 | 1050 | HIGH PLAINS LIBRARY | 3.044 | 0.000 | $93.51 |
| 2449 | 0308 | LOST CREEK GROUNDWATER (LCGW) | 0.945 | 0.000 | $29.03 |
| 2449 | 0518 | S. E. WELD FIRE | 10.470 | 0.000 | $321.64 |
| 2449 | 0203 | SCHOOL DIST RE3J-KEENESBURG | 0.000 | 15.822 | $547.28 |
| 2449 | 1208 | SOUTHEAST WELD CONSERVATION | 0.000 | 0.000 | $0.00 |
| 2449 | 0100 | WELD COUNTY | 15.956 | 0.000 | $490.17 |
| Total | - | - | 37.708 | 15.822 | $1,705.67 |
The estimate of tax is based on the prior year mill levy and the 2025 projected assessment rates. Mill levies and tax estimates will be updated yearly on December 22nd for the current year. Additional information can be found at https://assessor.weld.gov


