Account: R8950127
April 1, 2026
| Account | Parcel | Account Type | Tax Year | Buildings | Actual Value | Local Govt Assessed Value | School Assessed Value |
|---|---|---|---|---|---|---|---|
| R8950127 | 146717175010 | Residential | 2026 | 1 | 600,015 | 37,500 | 42,300 |
| Legal |
|---|
| Lot 10 Block 11 COLLIERS HILL FG 4C FINAL PLAT |
| Subdivision | Block | Lot | Land Economic Area |
|---|---|---|---|
| COLLIERS HILL FG 4C FINAL PLAT | 11 | 10 | COLLIERS HILL |
| Property Address | Property City | Section | Township | Range |
|---|---|---|---|---|
| 874 AUDUBON PEAK DR | ERIE | 17 | 01 | 68 |
| Account | Parcel | Account Type | Tax Year | Buildings | Actual Value | Local Govt Assessed Value | School Assessed Value |
|---|---|---|---|---|---|---|---|
| R8950127 | 146717175010 | Residential | 2026 | 1 | 600,015 | 37,500 | 42,300 |
| Account | Owner Name | Address |
|---|---|---|
| R8950127 | STOLL DIANA L | 874 AUDUBON PEAK DR ERIE, CO 805166215 |
| Account | Parcel | Account Type | Tax Year | Buildings | Actual Value | Local Govt Assessed Value | School Assessed Value |
|---|---|---|---|---|---|---|---|
| R8950127 | 146717175010 | Residential | 2026 | 1 | 600,015 | 37,500 | 42,300 |
| Reception | Rec Date | Type | Grantor | Grantee | Doc Fee | Sale Date | Sale Price |
|---|---|---|---|---|---|---|---|
| 4311236 | 06-19-2017 | PLT | COLLIERS HILL FG 4C FINAL PLAT | COLLIERS HILL FG 4C FINAL PLAT | 0.00 | 03-09-2017 | 0 |
| 4311239 | 06-19-2017 | SWD | DAYBREAK RECOVERY ACQUISITION LLC | RICHMOND AMERICAN HOMES OF COLORADO INC | 761.80 | 06-16-2017 | 7,618,000 |
| 4503042 | 07-03-2019 | SWD | RICHMOND AMERICAN HOMES OF COLORADO INC | HART BRIDGET ANN | 42.43 | 05-28-2019 | 424,300 |
| 5061334 | 10-24-2025 | SWD | HART BRIDGET ANN | STOLL DIANA L | 61.50 | 10-22-2025 | 615,000 |
*If the hyperlink for the reception number does not work, try a manual search in the Clerk and Recorder records. Use the Grantor or Grantee in your search.
| Account | Parcel | Account Type | Tax Year | Buildings | Actual Value | Local Govt Assessed Value | School Assessed Value |
|---|---|---|---|---|---|---|---|
| R8950127 | 146717175010 | Residential | 2026 | 1 | 600,015 | 37,500 | 42,300 |
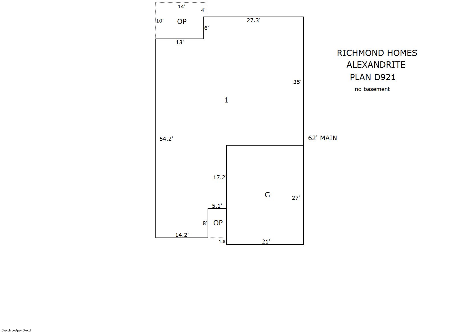
Building 1
| AccountNo | Building ID | Occupancy |
|---|---|---|
| R8950127 | 1 | Single Family Residential |
| ID | Type | NBHD | Occupancy | % Complete | Bedrooms | Baths |
|---|---|---|---|---|---|---|
| 1 | Residential | 3E1008 | Single Family Residential | 100 | 3 | 2.00 |
| ID | Exterior | Roof Cover | Interior | HVAC | Perimeter | Units | Unit Type | Make |
|---|---|---|---|---|---|---|---|---|
| 1 | Frame Siding | Composition Shingle | Drywall | Central Air to Air | 201 | 0 | NA | NA |
| ID | Square Ft | Condo SF | Total Basement SF | Finished Basement SF | Garage SF | Carport SF | Balcony SF | Porch SF |
|---|---|---|---|---|---|---|---|---|
| 1 | 1,778 | 0 | 0 | 0 | 567 | 0 | 0 | 175 |
| ID | Built As | Square Ft | Year Built | Stories | Length | Width |
|---|---|---|---|---|---|---|
| 1.00 | Ranch 1 Story | 1,778 | 2019 | 1 | 0 | 0 |
| ID | Detail Type | Description | Units |
|---|---|---|---|
| 1 | Add On | Fireplace Gas | 1.00 |
| 1 | Fixture | Full Bath | 2.00 |
| 1 | Garage | Attached | 567.00 |
| 1 | Porch | Slab Roof Ceil | 175.00 |
| Account | Parcel | Account Type | Tax Year | Buildings | Actual Value | Local Govt Assessed Value | School Assessed Value |
|---|---|---|---|---|---|---|---|
| R8950127 | 146717175010 | Residential | 2026 | 1 | 600,015 | 37,500 | 42,300 |
| Type | Code | Description | Actual Value | Local Govt Assessed Value | School Assessed Value | Acres | Land SqFt |
|---|---|---|---|---|---|---|---|
| Improvement | 1212 | SINGLE FAMILY RESIDENTIAL IMPROVEMENTS | 440,015 | 27,500 | 31,020 | 0.000 | 0 |
| Land | 1112 | SINGLE FAMILY RESIDENTIAL-LAND | 160,000 | 10,000 | 11,280 | 0.134 | 5,854 |
| Totals | - | - | 600,015 | 37,500 | 42,300 | 0.134 | 5,854 |
Comparable sales for your Residential or Commercial property may be found using our SALES SEARCH TOOL
Values are updated annually on May 1st for Real Property and June 15th for Personal Property and Oil and Gas.
| Account | Parcel | Account Type | Tax Year | Buildings | Actual Value | Local Govt Assessed Value | School Assessed Value |
|---|---|---|---|---|---|---|---|
| R8950127 | 146717175010 | Residential | 2026 | 1 | 600,015 | 37,500 | 42,300 |
| Tax Area | District ID | District Name | Local Govt Mill Levy |
School Mill Levy |
Estimated Taxes |
|---|---|---|---|---|---|
| 4682 | 1204 | BOULDER VALLEY CONSERVATION | 0.000 | 0.000 | $0.00 |
| 4682 | 1456 | COLLIERS HILL METRO 2 | 63.475 | 0.000 | $2,380.31 |
| 4682 | 0404 | ERIE TOWN | 13.237 | 0.000 | $496.39 |
| 4682 | 1050 | HIGH PLAINS LIBRARY | 3.044 | 0.000 | $114.15 |
| 4682 | 0512 | MOUNTAIN VIEW FIRE PROTECTION DISTRICT | 16.342 | 0.000 | $612.83 |
| 4682 | 0301 | NORTHERN COLORADO WATER (NCW) | 1.000 | 0.000 | $37.50 |
| 4682 | 1360 | RTD | 0.000 | 0.000 | $0.00 |
| 4682 | 0213 | SCHOOL DIST RE1J-LONGMONT | 0.000 | 57.717 | $2,441.43 |
| 4682 | 0100 | WELD COUNTY | 15.956 | 0.000 | $598.35 |
| Total | - | - | 113.054 | 57.717 | $6,680.95 |
The estimate of tax is based on the prior year mill levy and the 2025 projected assessment rates. Mill levies and tax estimates will be updated yearly on December 22nd for the current year. Additional information can be found at https://assessor.weld.gov


