Account: R8950496

April 1, 2026

Account Parcel Account Type Tax Year Buildings Actual Value Local Govt Assessed Value School Assessed Value
R8950496 080718156001 Residential 2026 1 591,147 36,940 41,670

Legal
Lot 1 Block 14 Windshire Park 5th Fg

Subdivision Block Lot Land Economic Area
WINDSHIRE PARK 5TH FG 14 1 WINDSHIRE PARK

Property Address Property City Section Township Range
845 CHARLTON DR WINDSOR 18 06 67




Account Parcel Account Type Tax Year Buildings Actual Value Local Govt Assessed Value School Assessed Value
R8950496 080718156001 Residential 2026 1 591,147 36,940 41,670

Account Owner Name Address
R8950496 MONTEZ RICHARD 845 CHARLTON DR WINDSOR, CO 805505870
R8950496 MONTEZ DEBRA


Account Parcel Account Type Tax Year Buildings Actual Value Local Govt Assessed Value School Assessed Value
R8950496 080718156001 Residential 2026 1 591,147 36,940 41,670

Reception Rec Date Type Grantor Grantee Doc Fee Sale Date Sale Price
4324364 08-04-2017 PLT WINDSHIRE PARK 5TH FG WINDSHIRE PARK 5TH FG 0.00 08-04-2017 0
4479084 04-05-2019 SWD WINDSHIRE GROUP DEVELOPMENT INC FORESTAR (USA) REAL ESTATE GROUP INC 626.40 04-03-2019 6,264,000
4504987 07-12-2019 SWD FORESTAR (USA) REAL ESTATE GROUP INC MELODY HOMES INC 180.00 07-10-2019 1,800,000
4574008 03-11-2020 SWD MELODY HOMES INC MONTEZ RICHARD ; MONTEZ DEBRA 42.35 03-09-2020 423,500



Account Parcel Account Type Tax Year Buildings Actual Value Local Govt Assessed Value School Assessed Value
R8950496 080718156001 Residential 2026 1 591,147 36,940 41,670

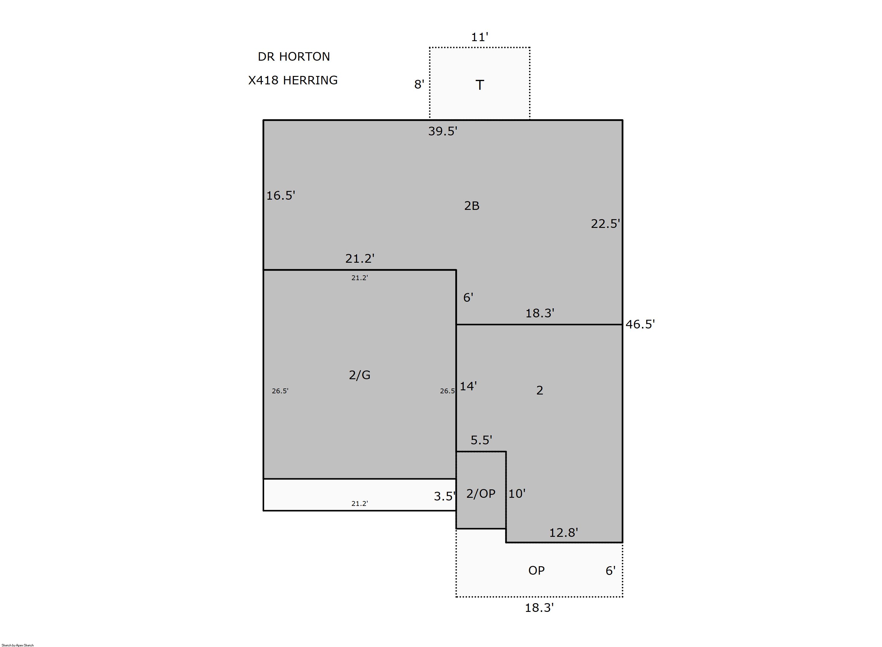
Building 1

AccountNo Building ID Occupancy
R8950496 1 Single Family Residential


ID Type NBHD Occupancy % Complete Bedrooms Baths
1 Residential 2W0016 Single Family Residential 100 5 4.00


ID Exterior Roof Cover Interior HVAC Perimeter Units Unit Type Make
1 Frame Siding Composition Shingle Drywall Central Air to Air 344 0 NA NA


ID Square Ft Condo SF Total Basement SF Finished Basement SF Garage SF Carport SF Balcony SF Porch SF
1 2,826 0 762 0 562 0 0 88


Built As Details for Building 1
ID Built As Square Ft Year Built Stories Length Width
1.00 2 Story 2,826 2019 2 0 0


Additional Details for Building 1
ID Detail Type Description Units
1 Basement Total Basement SF 762.00
1 Fixture Full Bath 4.00
1 Garage Attached 562.00
1 Porch Open Slab 88.00
1 Porch Slab Roof Ceil 165.00
1 Rough In Rough In 1.00





Account Parcel Account Type Tax Year Buildings Actual Value Local Govt Assessed Value School Assessed Value
R8950496 080718156001 Residential 2026 1 591,147 36,940 41,670

Type Code Description Actual Value Local Govt Assessed Value School Assessed Value Acres Land SqFt
Improvement 1212 SINGLE FAMILY RESIDENTIAL IMPROVEMENTS 486,147 30,380 34,270 0.000 0
Land 1112 SINGLE FAMILY RESIDENTIAL-LAND 105,000 6,560 7,400 0.169 7,378
Totals - - 591,147 36,940 41,670 0.169 7,378


Account Parcel Account Type Tax Year Buildings Actual Value Local Govt Assessed Value School Assessed Value
R8950496 080718156001 Residential 2026 1 591,147 36,940 41,670

Tax Area District ID District Name Local Govt
Mill Levy
School
Mill Levy
Estimated
Taxes
3480 0700 AIMS JUNIOR COLLEGE 6.313 0.000 $233.20
3480 1051 CLEARVIEW LIBRARY 3.546 0.000 $130.99
3480 0304 NORTH WELD COUNTY WATER (NWC) 0.000 0.000 $0.00
3480 0301 NORTHERN COLORADO WATER (NCW) 1.000 0.000 $36.94
3480 0204 SCHOOL DIST RE4-WINDSOR 0.000 46.646 $1,943.74
3480 0100 WELD COUNTY 15.956 0.000 $589.41
3480 1200 WEST GREELEY CONSERVATION 0.414 0.000 $15.29
3480 1386 WINDSHIRE PARK METRO 2 38.695 0.000 $1,429.39
3480 0428 WINDSOR TOWN 12.030 0.000 $444.39
3480 0521 WINDSOR-SEVERANCE FIRE 8.535 0.000 $315.28
Total - - 86.489 46.646 $5,138.64


The estimate of tax is based on the prior year mill levy and the 2025 projected assessment rates. Mill levies and tax estimates will be updated yearly on December 22nd for the current year. Additional information can be found at https://assessor.weld.gov










Select Reports to Print: