Account: R8951336
April 4, 2026
| Account | Parcel | Account Type | Tax Year | Buildings | Actual Value | Local Govt Assessed Value | School Assessed Value |
|---|---|---|---|---|---|---|---|
| R8951336 | 146720231005 | Residential | 2026 | 1 | 1,239,348 | 77,460 | 87,380 |
| Legal |
|---|
| Lot 5 Block 1 ERIE HIGHLANDS FILING NO. 13 |
| Subdivision | Block | Lot | Land Economic Area |
|---|---|---|---|
| ERIE HIGHLANDS FILING NO. 13 | 1 | 5 | ERIE HIGHLANDS |
| Property Address | Property City | Section | Township | Range |
|---|---|---|---|---|
| 734 PAGODA CT | ERIE | 20 | 01 | 68 |
| Account | Parcel | Account Type | Tax Year | Buildings | Actual Value | Local Govt Assessed Value | School Assessed Value |
|---|---|---|---|---|---|---|---|
| R8951336 | 146720231005 | Residential | 2026 | 1 | 1,239,348 | 77,460 | 87,380 |
| Account | Owner Name | Address |
|---|---|---|
| R8951336 | ERIE HIGHLANDS LLC | 132 MIDLAND AVE UNIT 4 BASALT, CO 816218354 |
| Account | Parcel | Account Type | Tax Year | Buildings | Actual Value | Local Govt Assessed Value | School Assessed Value |
|---|---|---|---|---|---|---|---|
| R8951336 | 146720231005 | Residential | 2026 | 1 | 1,239,348 | 77,460 | 87,380 |
| Reception | Rec Date | Type | Grantor | Grantee | Doc Fee | Sale Date | Sale Price |
|---|---|---|---|---|---|---|---|
| 4338679 | 09-27-2017 | PLT | ERIE HIGHLANDS FILING NO. 13 | ERIE HIGHLANDS FILING NO. 13 | 0.00 | 08-16-2017 | 0 |
| 4563391 | 02-03-2020 | SWD | CLAYTON PROPERTIES GROUP II | ERIE HIGHLANDS LLC | 105.95 | 01-28-2020 | 1,059,500 |
*If the hyperlink for the reception number does not work, try a manual search in the Clerk and Recorder records. Use the Grantor or Grantee in your search.
| Account | Parcel | Account Type | Tax Year | Buildings | Actual Value | Local Govt Assessed Value | School Assessed Value |
|---|---|---|---|---|---|---|---|
| R8951336 | 146720231005 | Residential | 2026 | 1 | 1,239,348 | 77,460 | 87,380 |
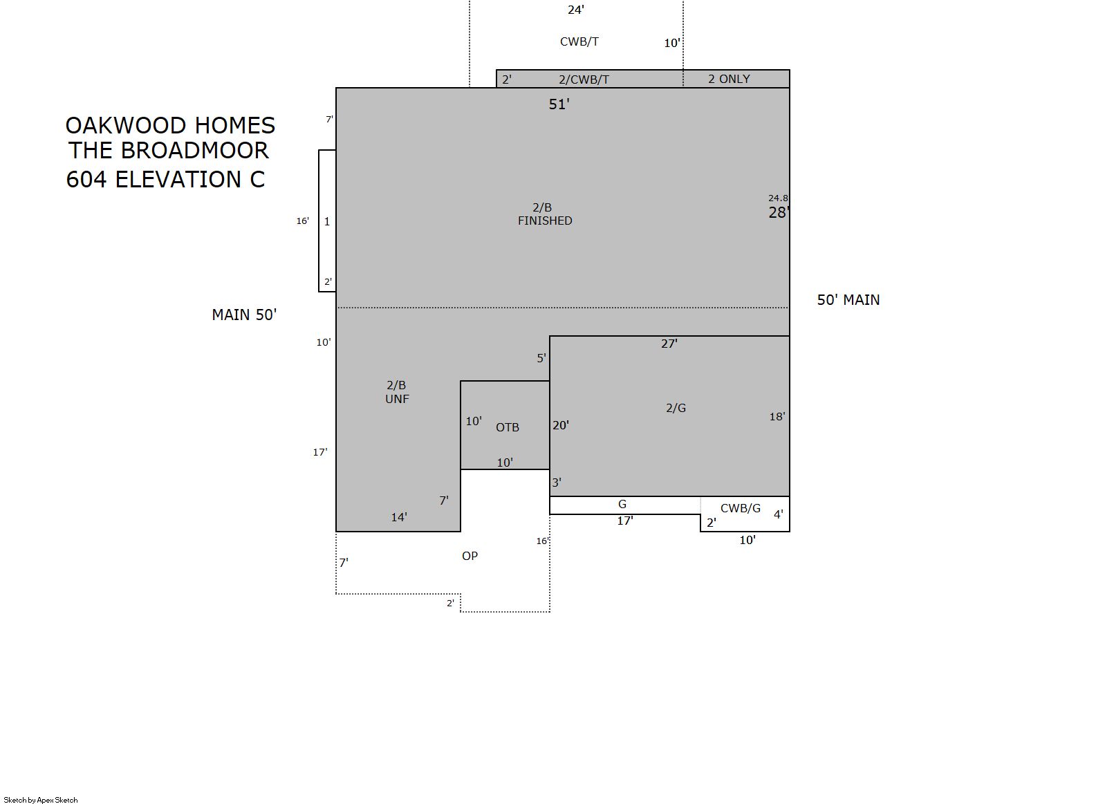
Building 1
| AccountNo | Building ID | Occupancy |
|---|---|---|
| R8951336 | 1 | Single Family Residential |
| ID | Type | NBHD | Occupancy | % Complete | Bedrooms | Baths |
|---|---|---|---|---|---|---|
| 1 | Residential | 3E1017 | Single Family Residential | 100 | 5 | 4.00 |
| ID | Exterior | Roof Cover | Interior | HVAC | Perimeter | Units | Unit Type | Make |
|---|---|---|---|---|---|---|---|---|
| 1 | Frame Stucco | Clay Tile | Drywall | Central Air to Air | 458 | 0 | NA | NA |
| ID | Square Ft | Condo SF | Total Basement SF | Finished Basement SF | Garage SF | Carport SF | Balcony SF | Porch SF |
|---|---|---|---|---|---|---|---|---|
| 1 | 4,256 | 0 | 1,886 | 1,265 | 560 | 0 | 280 | 240 |
| ID | Built As | Square Ft | Year Built | Stories | Length | Width |
|---|---|---|---|---|---|---|
| 1.00 | 2 Story | 4,256 | 2019 | 2 | 0 | 0 |
| ID | Detail Type | Description | Units |
|---|---|---|---|
| 1 | Add On | Fire Pit | 1.00 |
| 1 | Add On | Fireplace Gas | 2.00 |
| 1 | Balcony | Cover Wood Balc | 280.00 |
| 1 | Basement | Finished | 1265.00 |
| 1 | Basement | Total Basement SF | 1886.00 |
| 1 | Basement | Walkout | 1.00 |
| 1 | Fixture | Full Bath | 4.00 |
| 1 | Garage | Attached | 560.00 |
| 1 | Porch | Open Slab | 240.00 |
| 1 | Porch | Slab Roof Ceil | 258.00 |
| Account | Parcel | Account Type | Tax Year | Buildings | Actual Value | Local Govt Assessed Value | School Assessed Value |
|---|---|---|---|---|---|---|---|
| R8951336 | 146720231005 | Residential | 2026 | 1 | 1,239,348 | 77,460 | 87,380 |
| Type | Code | Description | Actual Value | Local Govt Assessed Value | School Assessed Value | Acres | Land SqFt |
|---|---|---|---|---|---|---|---|
| Improvement | 1212 | SINGLE FAMILY RESIDENTIAL IMPROVEMENTS | 1,087,348 | 67,960 | 76,660 | 0.000 | 0 |
| Land | 1112 | SINGLE FAMILY RESIDENTIAL-LAND | 152,000 | 9,500 | 10,720 | 0.360 | 15,695 |
| Totals | - | - | 1,239,348 | 77,460 | 87,380 | 0.360 | 15,695 |
Comparable sales for your Residential or Commercial property may be found using our SALES SEARCH TOOL
Values are updated annually on May 1st for Real Property and June 15th for Personal Property and Oil and Gas.
| Account | Parcel | Account Type | Tax Year | Buildings | Actual Value | Local Govt Assessed Value | School Assessed Value |
|---|---|---|---|---|---|---|---|
| R8951336 | 146720231005 | Residential | 2026 | 1 | 1,239,348 | 77,460 | 87,380 |
| Tax Area | District ID | District Name | Local Govt Mill Levy |
School Mill Levy |
Estimated Taxes |
|---|---|---|---|---|---|
| 6997 | 1499 | ERIE HIGHLANDS METRO 1 | 49.276 | 0.000 | $3,816.92 |
| 6997 | 0404 | ERIE TOWN | 13.237 | 0.000 | $1,025.34 |
| 6997 | 1050 | HIGH PLAINS LIBRARY | 3.044 | 0.000 | $235.79 |
| 6997 | 0512 | MOUNTAIN VIEW FIRE PROTECTION DISTRICT | 16.342 | 0.000 | $1,265.85 |
| 6997 | 0301 | NORTHERN COLORADO WATER (NCW) | 1.000 | 0.000 | $77.46 |
| 6997 | 1360 | RTD | 0.000 | 0.000 | $0.00 |
| 6997 | 0213 | SCHOOL DIST RE1J-LONGMONT | 0.000 | 57.717 | $5,043.31 |
| 6997 | 0100 | WELD COUNTY | 15.956 | 0.000 | $1,235.95 |
| Total | - | - | 98.855 | 57.717 | $12,700.62 |
The estimate of tax is based on the prior year mill levy and the 2025 projected assessment rates. Mill levies and tax estimates will be updated yearly on December 22nd for the current year. Additional information can be found at https://assessor.weld.gov


