Account: R8951798

April 1, 2026

Account Parcel Account Type Tax Year Buildings Actual Value Local Govt Assessed Value School Assessed Value
R8951798 105910100005 Agricultural 2026 1 500,000 31,310 35,300

Legal
PT NE4 10 4 67 COMM E4 COR N00D19E 1324.96 TO POB N89D19W 210 N00D19W 353.60 N89D09W 120 N00D19W 82 N89D09W 314 S00D19E 435.60 N89D09W 678.30 N00D21W 1023.01 S77D49E 1236.45 THENCE ALNG CURVE R 205.05 (R=278.30 CH=S21D56E) N89D40E 40 S00D19E 591.66 TO POB EXC BEG 30'W & 385.5'N OF SE COR THERE OF W100' N50' E100' S50' TO BEG EXC COMM NE COR S55D10W 758.42 TO POB S12D11W 20 N77D48W 665.86 N12D11E 20 S77D48E 665.86 TO POB

Subdivision Block Lot Land Economic Area
MILLIKEN RURAL

Property Address Property City Section Township Range
9819 COUNTY ROAD 46 1/2 WELD 10 04 67




Account Parcel Account Type Tax Year Buildings Actual Value Local Govt Assessed Value School Assessed Value
R8951798 105910100005 Agricultural 2026 1 500,000 31,310 35,300

Account Owner Name Address
R8951798 LITTLE THOMPSON RANCH LLC 9819 COUNTY ROAD 46 1/2 MILLIKEN, CO 805439402


Account Parcel Account Type Tax Year Buildings Actual Value Local Govt Assessed Value School Assessed Value
R8951798 105910100005 Agricultural 2026 1 500,000 31,310 35,300

Reception Rec Date Type Grantor Grantee Doc Fee Sale Date Sale Price
4981103 09-06-2024 BSDN BINDER FAMILY FARMS LLC LITTLE THOMPSON RANCH LLC 0.00 08-30-2024 0
4990426 10-25-2024 BSDN BINDER FAMILY FARMS LLC LITTLE THOMPSON RANCH LLC 0.00 10-16-2024 0



Account Parcel Account Type Tax Year Buildings Actual Value Local Govt Assessed Value School Assessed Value
R8951798 105910100005 Agricultural 2026 1 500,000 31,310 35,300

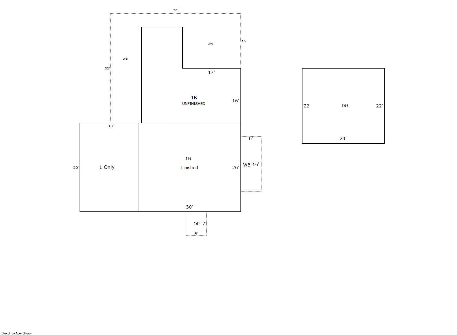
Building 1

AccountNo Building ID Occupancy
R8951798 1 Single Family Residential on Ag


ID Type NBHD Occupancy % Complete Bedrooms Baths
1 Residential 0R1009 Single Family Residential on Ag 100 3 3.00


ID Exterior Roof Cover Interior HVAC Perimeter Units Unit Type Make
1 Frame Hardboard Composition Shingle Drywall Central Air to Air 202 0 NA NA


ID Square Ft Condo SF Total Basement SF Finished Basement SF Garage SF Carport SF Balcony SF Porch SF
1 1,830 0 1,388 780 528 0 704 42


Built As Details for Building 1
ID Built As Square Ft Year Built Stories Length Width
1.00 Ranch 1 Story 1,830 1900 1 0 0


Additional Details for Building 1
ID Detail Type Description Units
1 Balcony Wood Wood Fin 704.00
1 Basement Finished 780.00
1 Basement Total Basement SF 1388.00
1 Fixture Full Bath 3.00
1 Garage Detached 528.00
1 Porch Slab Roof Ceil 42.00





Account Parcel Account Type Tax Year Buildings Actual Value Local Govt Assessed Value School Assessed Value
R8951798 105910100005 Agricultural 2026 1 500,000 31,310 35,300

Type Code Description Actual Value Local Govt Assessed Value School Assessed Value Acres Land SqFt
Improvement 4277 FARM/RANCH RESIDENCE-IMPS 499,706 31,230 35,230 0.000 0
Land 4147 GRAZING LAND-AGRICULTURAL 277 70 70 21.057 917,243
Land 4167 WASTE LAND 17 10 0 2.520 109,771
Totals - - 500,000 31,310 35,300 23.577 1,027,014


Account Parcel Account Type Tax Year Buildings Actual Value Local Govt Assessed Value School Assessed Value
R8951798 105910100005 Agricultural 2026 1 500,000 31,310 35,300

Tax Area District ID District Name Local Govt
Mill Levy
School
Mill Levy
Estimated
Taxes
5744 0700 AIMS JUNIOR COLLEGE 6.313 0.000 $197.66
5744 0302 CENTRAL COLORADO WATER (CCW) 0.980 0.000 $30.68
5744 0309 CENTRAL COLORADO WATER SUBDISTRICT (CCS) 1.462 0.000 $45.78
5744 0510 FRONT RANGE FIRE RESCUE FIRE PROTECTION DISTRICT 11.483 0.000 $359.53
5744 1050 HIGH PLAINS LIBRARY 3.044 0.000 $95.31
5744 0306 LITTLE THOMPSON WATER (LTW) 0.000 0.000 $0.00
5744 0301 NORTHERN COLORADO WATER (NCW) 1.000 0.000 $31.31
5744 0205 SCHOOL DIST RE5J-JOHNSTOWN 0.000 36.271 $1,280.37
5744 0901 THOMPSON RIVER REC 3.594 0.000 $112.53
5744 0100 WELD COUNTY 15.956 0.000 $499.58
5744 1200 WEST GREELEY CONSERVATION 0.414 0.000 $12.96
Total - - 44.246 36.271 $2,665.71


The estimate of tax is based on the prior year mill levy and the 2025 projected assessment rates. Mill levies and tax estimates will be updated yearly on December 22nd for the current year. Additional information can be found at https://assessor.weld.gov










Select Reports to Print: