Account: R8953527
April 5, 2026
| Account | Parcel | Account Type | Tax Year | Buildings | Actual Value | Local Govt Assessed Value | School Assessed Value |
|---|---|---|---|---|---|---|---|
| R8953527 | 095921444001 | Residential | 2026 | 1 | 308,118 | 19,260 | 21,720 |
| Legal |
|---|
| Unit 1 ORCHARD PARK CONDOMINIUMS PHASE XV BLDG 8 |
| Subdivision | Block | Lot | Land Economic Area |
|---|---|---|---|
| ORCHARD PARK CONDOMINIUMS PHASE XV | 1 |
| Property Address | Property City | Section | Township | Range |
|---|---|---|---|---|
| 6450 ORCHARD PARK DR 1 | EVANS | 21 | 05 | 66 |
| Account | Parcel | Account Type | Tax Year | Buildings | Actual Value | Local Govt Assessed Value | School Assessed Value |
|---|---|---|---|---|---|---|---|
| R8953527 | 095921444001 | Residential | 2026 | 1 | 308,118 | 19,260 | 21,720 |
| Account | Owner Name | Address |
|---|---|---|
| R8953527 | SCHMIDT & SONS REI OF COLORADO LLC | 16895 COUNTY ROAD 42 LA SALLE, CO 806459201 |
| Account | Parcel | Account Type | Tax Year | Buildings | Actual Value | Local Govt Assessed Value | School Assessed Value |
|---|---|---|---|---|---|---|---|
| R8953527 | 095921444001 | Residential | 2026 | 1 | 308,118 | 19,260 | 21,720 |
| Reception | Rec Date | Type | Grantor | Grantee | Doc Fee | Sale Date | Sale Price |
|---|---|---|---|---|---|---|---|
| 4393470 | 04-24-2018 | PLT | ORCHARD PARK CONDOMINIUMS PHASE XV | ORCHARD PARK CONDOMINIUMS PHASE XV | 0.00 | 04-24-2018 | 0 |
| 4404842 | 06-06-2018 | SWD | ORCHARD PARK II LLC | SCHMIDT BRET W | 21.96 | 06-05-2018 | 219,600 |
| 4848156 | 08-12-2022 | SWDN | SCHMIDT BRET W | SCHMIDT & SONS REI OF COLORADO LLC | 0.00 | 08-11-2022 | 0 |
*If the hyperlink for the reception number does not work, try a manual search in the Clerk and Recorder records. Use the Grantor or Grantee in your search.
| Account | Parcel | Account Type | Tax Year | Buildings | Actual Value | Local Govt Assessed Value | School Assessed Value |
|---|---|---|---|---|---|---|---|
| R8953527 | 095921444001 | Residential | 2026 | 1 | 308,118 | 19,260 | 21,720 |
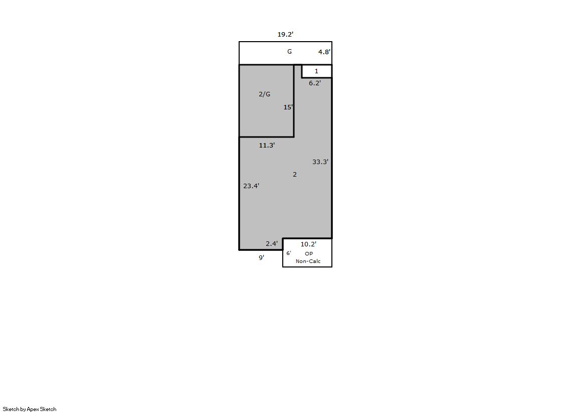
Building 1
| AccountNo | Building ID | Occupancy |
|---|---|---|
| R8953527 | 1 | Condominium unit |
| ID | Type | NBHD | Occupancy | % Complete | Bedrooms | Baths |
|---|---|---|---|---|---|---|
| 1 | Condo | 2E0059 | Condominium unit | 100 | 2 | 3.00 |
| ID | Exterior | Roof Cover | Interior | HVAC | Perimeter | Units | Unit Type | Make |
|---|---|---|---|---|---|---|---|---|
| 1 | Frame Siding | Composition Shingle | Drywall | Central Air to Air | 230 | 0 | End | NA |
| ID | Square Ft | Condo SF | Total Basement SF | Finished Basement SF | Garage SF | Carport SF | Balcony SF | Porch SF |
|---|---|---|---|---|---|---|---|---|
| 1 | 1,239 | 0 | 0 | 0 | 262 | 0 | 0 | 0 |
| ID | Built As | Square Ft | Year Built | Stories | Length | Width |
|---|---|---|---|---|---|---|
| 1.00 | Condo <= 3 Stories | 1,239 | 2017 | 1 | 0 | 0 |
| ID | Detail Type | Description | Units |
|---|---|---|---|
| 1 | Fixture | Full Bath | 2.00 |
| 1 | Fixture | Half Bath | 1.00 |
| 1 | Garage | Attached | 262.00 |
| Account | Parcel | Account Type | Tax Year | Buildings | Actual Value | Local Govt Assessed Value | School Assessed Value |
|---|---|---|---|---|---|---|---|
| R8953527 | 095921444001 | Residential | 2026 | 1 | 308,118 | 19,260 | 21,720 |
| Type | Code | Description | Actual Value | Local Govt Assessed Value | School Assessed Value | Acres | Land SqFt |
|---|---|---|---|---|---|---|---|
| Improvement | 1230 | CONDOS | 308,118 | 19,260 | 21,720 | 0.000 | 0 |
| Totals | - | - | 308,118 | 19,260 | 21,720 | 0.000 | 0 |
Comparable sales for your Residential or Commercial property may be found using our SALES SEARCH TOOL
Values are updated annually on May 1st for Real Property and June 15th for Personal Property and Oil and Gas.
| Account | Parcel | Account Type | Tax Year | Buildings | Actual Value | Local Govt Assessed Value | School Assessed Value |
|---|---|---|---|---|---|---|---|
| R8953527 | 095921444001 | Residential | 2026 | 1 | 308,118 | 19,260 | 21,720 |
| Tax Area | District ID | District Name | Local Govt Mill Levy |
School Mill Levy |
Estimated Taxes |
|---|---|---|---|---|---|
| 0663 | 0700 | AIMS JUNIOR COLLEGE | 6.313 | 0.000 | $121.59 |
| 0663 | 0405 | EVANS CITY | 3.536 | 0.000 | $68.10 |
| 0663 | 0534 | EVANS FIRE | 15.500 | 0.000 | $298.53 |
| 0663 | 1050 | HIGH PLAINS LIBRARY | 3.044 | 0.000 | $58.63 |
| 0663 | 0301 | NORTHERN COLORADO WATER (NCW) | 1.000 | 0.000 | $19.26 |
| 0663 | 0206 | SCHOOL DIST 6-GREELEY | 0.000 | 47.615 | $1,034.20 |
| 0663 | 0100 | WELD COUNTY | 15.956 | 0.000 | $307.31 |
| 0663 | 1200 | WEST GREELEY CONSERVATION | 0.414 | 0.000 | $7.97 |
| Total | - | - | 45.763 | 47.615 | $1,915.59 |
The estimate of tax is based on the prior year mill levy and the 2025 projected assessment rates. Mill levies and tax estimates will be updated yearly on December 22nd for the current year. Additional information can be found at https://assessor.weld.gov


