Account: R8955613

April 1, 2026

Account Parcel Account Type Tax Year Buildings Actual Value Local Govt Assessed Value School Assessed Value
R8955613 130724400004 Agricultural 2026 2 564,270 38,980 43,350

Legal
NE4SE4 AND LOT A REC EXEMPT RE-1154 24 2 65 EXC COMM E4 COR S89D51W 40 TO POB S01D03E 199.35 S01D03E 115.05 S89D49W 60.01 N01D03W 1115.05 N01D03W 198.42 N01D03W 1.61 N01D03W 496.85 N89D51E 60.01 S01D03E 496.85 S01D03E .65 TO POB ALSO EXC BEG SE COR WHENCE S05D24'E 1320.37 S89D49'W 70.01 N44D23'E 98.23 S01D03'E 70.01 TO POB

Subdivision Block Lot Land Economic Area
ECON 5 RURAL

Property Address Property City Section Township Range
8465 COUNTY ROAD 49 WELD 24 02 65




Account Parcel Account Type Tax Year Buildings Actual Value Local Govt Assessed Value School Assessed Value
R8955613 130724400004 Agricultural 2026 2 564,270 38,980 43,350

Account Owner Name Address
R8955613 CROGHAN MARY E 8465 COUNTY ROAD 49 HUDSON, CO 806429522


Account Parcel Account Type Tax Year Buildings Actual Value Local Govt Assessed Value School Assessed Value
R8955613 130724400004 Agricultural 2026 2 564,270 38,980 43,350

Reception Rec Date Type Grantor Grantee Doc Fee Sale Date Sale Price
4955463 04-18-2024 DTHC CROGHAN THOMAS DANIEL CROGHAN MARY E 0.00 08-04-2021 0



Account Parcel Account Type Tax Year Buildings Actual Value Local Govt Assessed Value School Assessed Value
R8955613 130724400004 Agricultural 2026 2 564,270 38,980 43,350

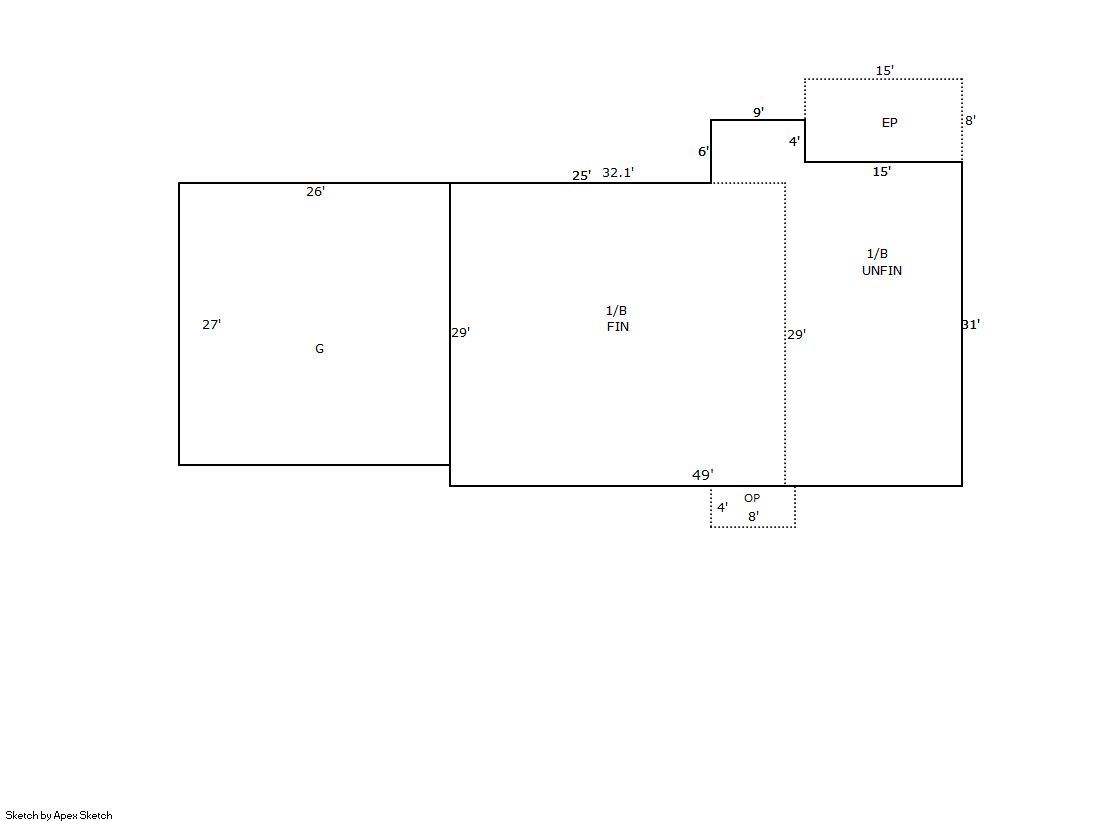
Building 1

AccountNo Building ID Occupancy
R8955613 1 Single Family Residential on Ag


ID Type NBHD Occupancy % Complete Bedrooms Baths
1 Residential 5R0008 Single Family Residential on Ag 100 3 3.00


ID Exterior Roof Cover Interior HVAC Perimeter Units Unit Type Make
1 Frame Masonry Veneer Composition Shingle Drywall Central Air to Air 168 0 NA NA


ID Square Ft Condo SF Total Basement SF Finished Basement SF Garage SF Carport SF Balcony SF Porch SF
1 1,505 0 1,505 931 702 0 0 120


Built As Details for Building 1
ID Built As Square Ft Year Built Stories Length Width
1.00 Ranch 1 Story 1,505 1975 1 0 0


Additional Details for Building 1
ID Detail Type Description Units
1 Add On Fireplace Gas 2.00
1 Basement Finished 931.00
1 Basement Total Basement SF 1505.00
1 Fixture Full Bath 2.00
1 Fixture Half Bath 1.00
1 Garage Attached 702.00
1 Porch Encl Solid Wall 120.00
1 Porch Slab Roof Ceil 32.00



Building 2

AccountNo Building ID Occupancy
R8955613 2 Equipment Building


ID Type NBHD Occupancy % Complete Bedrooms Baths
2 Out Building NA Equipment Building 100 NA 0.00


ID Exterior Roof Cover Interior HVAC Perimeter Units Unit Type Make
2 NA NA NA NA 144 0 NA NA


ID Square Ft Condo SF Total Basement SF Finished Basement SF Garage SF Carport SF Balcony SF Porch SF
2 1,280 0 0 0 0 0 0 0


Built As Details for Building 2
ID Built As Square Ft Year Built Stories Length Width
2.00 Equipment Building 1,280 2016 1 40 32

No Additional Details for Building 2






Account Parcel Account Type Tax Year Buildings Actual Value Local Govt Assessed Value School Assessed Value
R8955613 130724400004 Agricultural 2026 2 564,270 38,980 43,350

Type Code Description Actual Value Local Govt Assessed Value School Assessed Value Acres Land SqFt
Improvement 4277 FARM/RANCH RESIDENCE-IMPS 546,381 34,150 38,520 0.000 0
Improvement 4279 FARM RANCH SUPPORT BLDGS 16,791 4,530 4,530 0.000 0
Land 4147 GRAZING LAND-AGRICULTURAL 1,098 300 300 52.440 2,284,286
Totals - - 564,270 38,980 43,350 52.440 2,284,286


Account Parcel Account Type Tax Year Buildings Actual Value Local Govt Assessed Value School Assessed Value
R8955613 130724400004 Agricultural 2026 2 564,270 38,980 43,350

Tax Area District ID District Name Local Govt
Mill Levy
School
Mill Levy
Estimated
Taxes
2214 0700 AIMS JUNIOR COLLEGE 6.313 0.000 $246.08
2214 0302 CENTRAL COLORADO WATER (CCW) 0.980 0.000 $38.20
2214 0309 CENTRAL COLORADO WATER SUBDISTRICT (CCS) 1.462 0.000 $56.99
2214 1050 HIGH PLAINS LIBRARY 3.044 0.000 $118.66
2214 0509 HUDSON FIRE 12.237 0.000 $477.00
2214 1201 PLATTE VALLEY CONSERVATION 0.000 0.000 $0.00
2214 0203 SCHOOL DIST RE3J-KEENESBURG 0.000 15.822 $685.88
2214 0100 WELD COUNTY 15.956 0.000 $621.96
Total - - 39.992 15.822 $2,244.77


The estimate of tax is based on the prior year mill levy and the 2025 projected assessment rates. Mill levies and tax estimates will be updated yearly on December 22nd for the current year. Additional information can be found at https://assessor.weld.gov










Select Reports to Print: