Account: R8956532

April 1, 2026

Account Parcel Account Type Tax Year Buildings Actual Value Local Govt Assessed Value School Assessed Value
R8956532 146707110014 Residential 2026 1 727,100 45,440 51,260

Legal
Lot 14 Block 10 MORGAN HILL FG #1

Subdivision Block Lot Land Economic Area
MORGAN HILL FG #1 10 14 MORGAN

Property Address Property City Section Township Range
97 MORGAN CIR S ERIE 07 01 68




Account Parcel Account Type Tax Year Buildings Actual Value Local Govt Assessed Value School Assessed Value
R8956532 146707110014 Residential 2026 1 727,100 45,440 51,260

Account Owner Name Address
R8956532 ZIERDT TYLER 97 MORGAN CIR S ERIE, CO 805168941
R8956532 MANN MEGAN


Account Parcel Account Type Tax Year Buildings Actual Value Local Govt Assessed Value School Assessed Value
R8956532 146707110014 Residential 2026 1 727,100 45,440 51,260

Reception Rec Date Type Grantor Grantee Doc Fee Sale Date Sale Price
4427659 08-31-2018 PLT MORGAN HILL FG NO 1 MORGAN HILL FG NO 1 0.00 08-31-2018 0
4427661 08-31-2018 BSD MORGAN HILL INVESTORS LLC CDG MORGAN HILL INC 448.80 08-30-2018 4,488,000
4427664 08-31-2018 SWD CDG MORGAN HILL INC CENTURY LAND HOLDINGS LLC 558.00 08-30-2018 5,580,000
4667049 01-04-2021 SWD CENTURY LAND HOLDINGS LLC ZIERDT TYLER; MANN MEGAN 55.04 12-14-2020 550,400



Account Parcel Account Type Tax Year Buildings Actual Value Local Govt Assessed Value School Assessed Value
R8956532 146707110014 Residential 2026 1 727,100 45,440 51,260

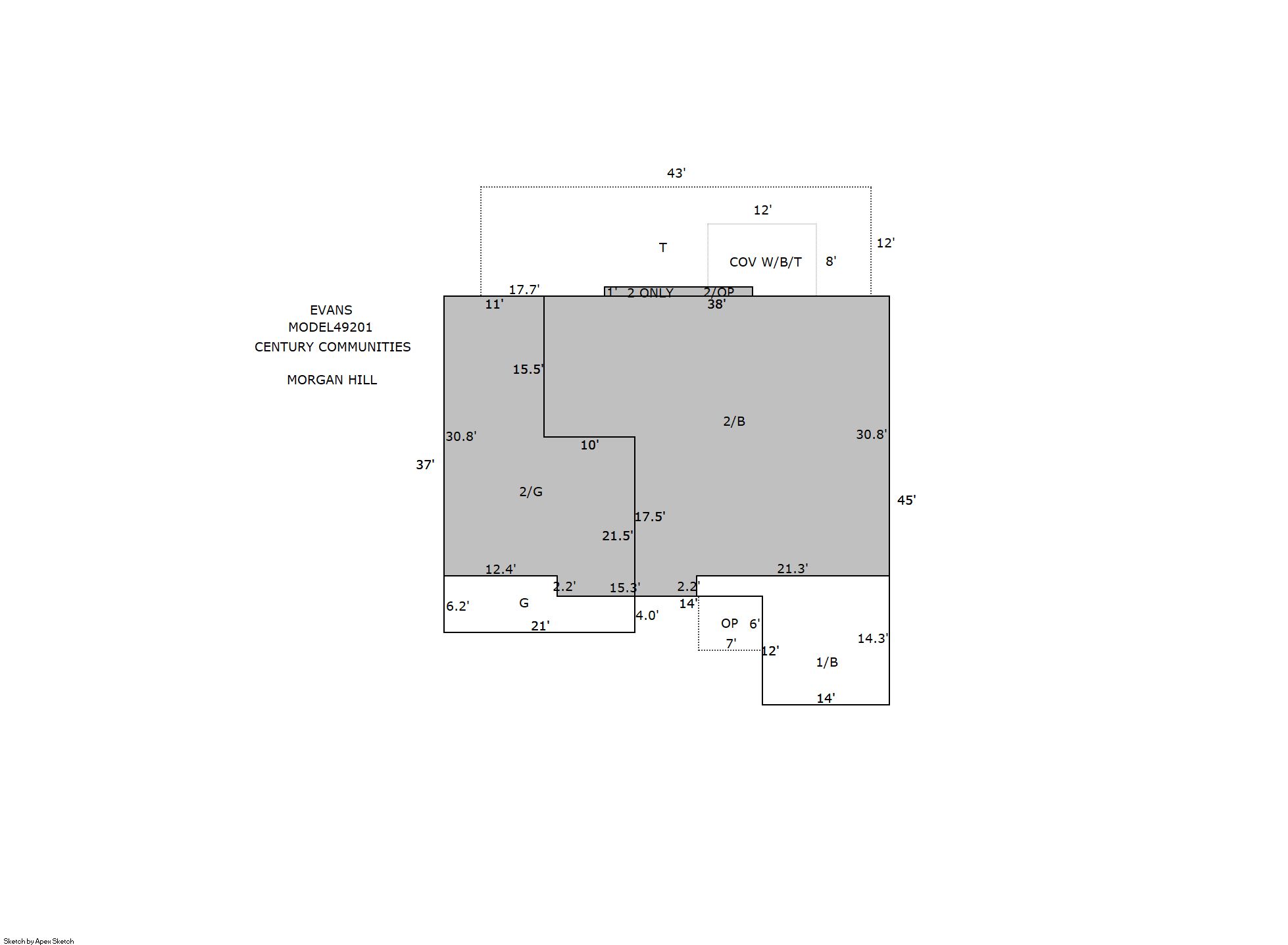
Building 1

AccountNo Building ID Occupancy
R8956532 1 Single Family Residential


ID Type NBHD Occupancy % Complete Bedrooms Baths
1 Residential 3E1018 Single Family Residential 100 4 3.00


ID Exterior Roof Cover Interior HVAC Perimeter Units Unit Type Make
1 Frame Siding Composition Shingle Drywall Central Air to Air 332 0 NA NA


ID Square Ft Condo SF Total Basement SF Finished Basement SF Garage SF Carport SF Balcony SF Porch SF
1 2,805 0 1,247 0 622 0 96 42


Built As Details for Building 1
ID Built As Square Ft Year Built Stories Length Width
1.00 2 Story 2,805 2020 2 0 0


Additional Details for Building 1
ID Detail Type Description Units
1 Add On Fire Pit 1.00
1 Add On Fireplace Gas 1.00
1 Balcony Cover Wood Balc 96.00
1 Basement Total Basement SF 1247.00
1 Fixture Full Bath 2.00
1 Fixture Half Bath 1.00
1 Garage Attached 622.00
1 Porch Open Slab 516.00
1 Porch Slab Roof Ceil 42.00
1 Rough In Rough In 1.00





Account Parcel Account Type Tax Year Buildings Actual Value Local Govt Assessed Value School Assessed Value
R8956532 146707110014 Residential 2026 1 727,100 45,440 51,260

Type Code Description Actual Value Local Govt Assessed Value School Assessed Value Acres Land SqFt
Improvement 1212 SINGLE FAMILY RESIDENTIAL IMPROVEMENTS 578,100 36,130 40,760 0.000 0
Land 1112 SINGLE FAMILY RESIDENTIAL-LAND 149,000 9,310 10,500 0.196 8,556
Totals - - 727,100 45,440 51,260 0.196 8,556


Account Parcel Account Type Tax Year Buildings Actual Value Local Govt Assessed Value School Assessed Value
R8956532 146707110014 Residential 2026 1 727,100 45,440 51,260

Tax Area District ID District Name Local Govt
Mill Levy
School
Mill Levy
Estimated
Taxes
4959 1204 BOULDER VALLEY CONSERVATION 0.000 0.000 $0.00
4959 0404 ERIE TOWN 13.237 0.000 $601.49
4959 1050 HIGH PLAINS LIBRARY 3.044 0.000 $138.32
4959 0311 LEFT HAND WATER 0.000 0.000 $0.00
4959 1467 MORGAN HILL METRO 1 62.833 0.000 $2,855.13
4959 0512 MOUNTAIN VIEW FIRE PROTECTION DISTRICT 16.342 0.000 $742.58
4959 0301 NORTHERN COLORADO WATER (NCW) 1.000 0.000 $45.44
4959 1360 RTD 0.000 0.000 $0.00
4959 0213 SCHOOL DIST RE1J-LONGMONT 0.000 57.717 $2,958.57
4959 0100 WELD COUNTY 15.956 0.000 $725.04
Total - - 112.412 57.717 $8,066.57


The estimate of tax is based on the prior year mill levy and the 2025 projected assessment rates. Mill levies and tax estimates will be updated yearly on December 22nd for the current year. Additional information can be found at https://assessor.weld.gov










Select Reports to Print: