Account: R8956934
December 13, 2025
| Account | Parcel | Account Type | Tax Year | Buildings | Actual Value | Local Govt Assessed Value | School Assessed Value |
|---|---|---|---|---|---|---|---|
| R8956934 | 055315100017 | Agricultural | 2025 | 1 | 404,021 | 27,230 | 30,380 |
| Legal |
|---|
| PT NE4 15-8-66 COMM N4 SEC COR TH S89D57E 2641.35 S40D01W 3214.89 N17D16W 2579.36 N89D39E 192.17 TPOB |
| Subdivision | Block | Lot | Land Economic Area |
|---|---|---|---|
| PIERCE RURAL |
| Property Address | Property City | Section | Township | Range |
|---|---|---|---|---|
| 15864 COUNTY ROAD 94 | WELD | 15 | 08 | 66 |
| Account | Parcel | Account Type | Tax Year | Buildings | Actual Value | Local Govt Assessed Value | School Assessed Value |
|---|---|---|---|---|---|---|---|
| R8956934 | 055315100017 | Agricultural | 2025 | 1 | 404,021 | 27,230 | 30,380 |
| Account | Owner Name | Address |
|---|---|---|
| R8956934 | SMITH CHAD R | 15864 COUNTY ROAD 94 PIERCE, CO 806509706 |
| R8956934 | SMITH CARIE L |
| Account | Parcel | Account Type | Tax Year | Buildings | Actual Value | Local Govt Assessed Value | School Assessed Value |
|---|---|---|---|---|---|---|---|
| R8956934 | 055315100017 | Agricultural | 2025 | 1 | 404,021 | 27,230 | 30,380 |
| Reception | Rec Date | Type | Grantor | Grantee | Doc Fee | Sale Date | Sale Price |
|---|---|---|---|---|---|---|---|
| 4433436 | 09-24-2018 | WD | T&M PROPERTIES LLC | CMH HOMES INC | 20.70 | 09-21-2018 | 207,000 |
| 4501310 | 06-27-2019 | SWD | CMH HOMES INC | SMITH CHAD R; SMITH CARIE L | 50.40 | 06-26-2019 | 504,000 |
*If the hyperlink for the reception number does not work, try a manual search in the Clerk and Recorder records. Use the Grantor or Grantee in your search.
| Account | Parcel | Account Type | Tax Year | Buildings | Actual Value | Local Govt Assessed Value | School Assessed Value |
|---|---|---|---|---|---|---|---|
| R8956934 | 055315100017 | Agricultural | 2025 | 1 | 404,021 | 27,230 | 30,380 |
Building 1
| AccountNo | Building ID | Occupancy |
|---|---|---|
| R8956934 | 1 | Single Family Residential on Ag |
| ID | Type | NBHD | Occupancy | % Complete | Bedrooms | Baths |
|---|---|---|---|---|---|---|
| 1 | Residential | 8R0001 | Single Family Residential on Ag | 100 | 3 | 2.00 |
| ID | Exterior | Roof Cover | Interior | HVAC | Perimeter | Units | Unit Type | Make |
|---|---|---|---|---|---|---|---|---|
| 1 | Frame Hardboard | Composition Shingle | Drywall | Central Air to Air | 220 | 0 | NA | Karsten |
| ID | Square Ft | Condo SF | Total Basement SF | Finished Basement SF | Garage SF | Carport SF | Balcony SF | Porch SF |
|---|---|---|---|---|---|---|---|---|
| 1 | 2,422 | 0 | 0 | 0 | 0 | 0 | 0 | 16 |
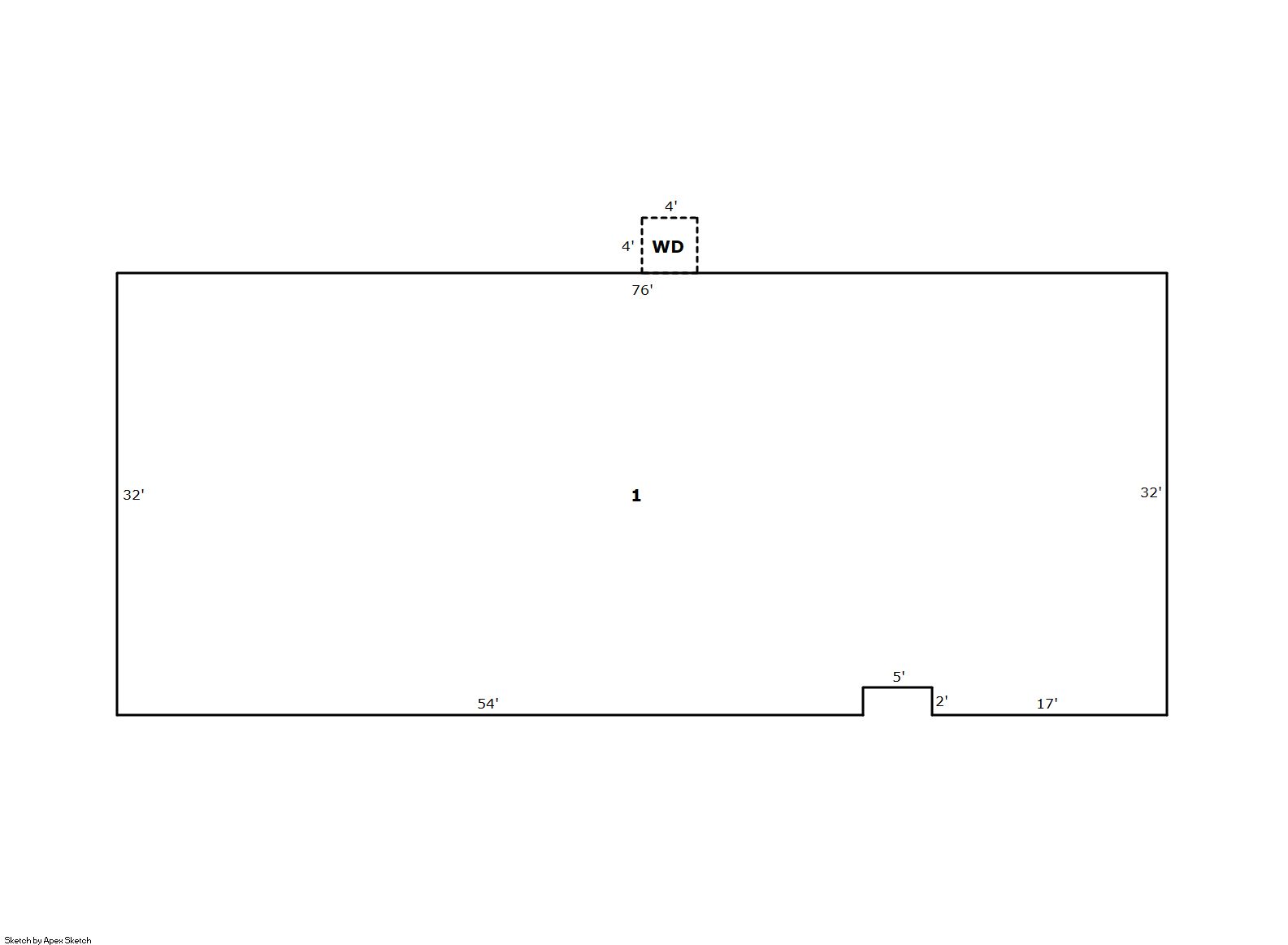
| ID | Built As | Square Ft | Year Built | Stories | Length | Width |
|---|---|---|---|---|---|---|
| 1.00 | Modular 1 Story | 2,422 | 2019 | 1 | 76 | 32 |
| ID | Detail Type | Description | Units |
|---|---|---|---|
| 1 | Fixture | Full Bath | 3.00 |
| 1 | Porch | Wood Deck | 16.00 |
| Account | Parcel | Account Type | Tax Year | Buildings | Actual Value | Local Govt Assessed Value | School Assessed Value |
|---|---|---|---|---|---|---|---|
| R8956934 | 055315100017 | Agricultural | 2025 | 1 | 404,021 | 27,230 | 30,380 |
| Type | Code | Description | Actual Value | Local Govt Assessed Value | School Assessed Value | Acres | Land SqFt |
|---|---|---|---|---|---|---|---|
| Improvement | 4277 | FARM/RANCH RESIDENCE-IMPS | 394,474 | 24,650 | 27,810 | 0.000 | 0 |
| Land | 4127 | DRY FARM LAND-AGRICULTURAL | 9,535 | 2,570 | 2,570 | 79.800 | 3,476,088 |
| Land | 4167 | WASTE LAND | 12 | 10 | 0 | 1.820 | 79,279 |
| Totals | - | - | 404,021 | 27,230 | 30,380 | 81.620 | 3,555,367 |
Comparable sales for your Residential or Commercial property may be found using our SALES SEARCH TOOL
Values are updated annually on May 1st for Real Property and June 15th for Personal Property and Oil and Gas.
| Account | Parcel | Account Type | Tax Year | Buildings | Actual Value | Local Govt Assessed Value | School Assessed Value |
|---|---|---|---|---|---|---|---|
| R8956934 | 055315100017 | Agricultural | 2025 | 1 | 404,021 | 27,230 | 30,380 |
| Tax Area | District ID | District Name | Local Govt Mill Levy |
School Mill Levy |
Estimated Taxes |
|---|---|---|---|---|---|
| 0916 | 0700 | AIMS JUNIOR COLLEGE | 6.305 | 0.000 | $171.69 |
| 0916 | 1050 | HIGH PLAINS LIBRARY | 3.179 | 0.000 | $86.56 |
| 0916 | 0301 | NORTHERN COLORADO WATER (NCW) | 1.000 | 0.000 | $27.23 |
| 0916 | 0514 | NUNN FIRE | 3.541 | 0.000 | $96.42 |
| 0916 | 0209 | SCHOOL DIST RE9-AULT | 0.000 | 33.185 | $1,008.16 |
| 0916 | 0100 | WELD COUNTY | 15.956 | 0.000 | $434.48 |
| 0916 | 1200 | WEST GREELEY CONSERVATION | 0.414 | 0.000 | $11.27 |
| Total | - | - | 30.395 | 33.185 | $1,835.82 |
The estimate of tax is based on the prior year mill levy and the 2025 assessment rates. Mill levies and tax estimates will be updated yearly on December 22nd for the current year. Additional information can be found at https://assessor.weld.gov


