Account: R8958638

April 5, 2026

Account Parcel Account Type Tax Year Buildings Actual Value Local Govt Assessed Value School Assessed Value
R8958638 070534304048 Residential 2026 1 450,178 28,140 31,740

Legal
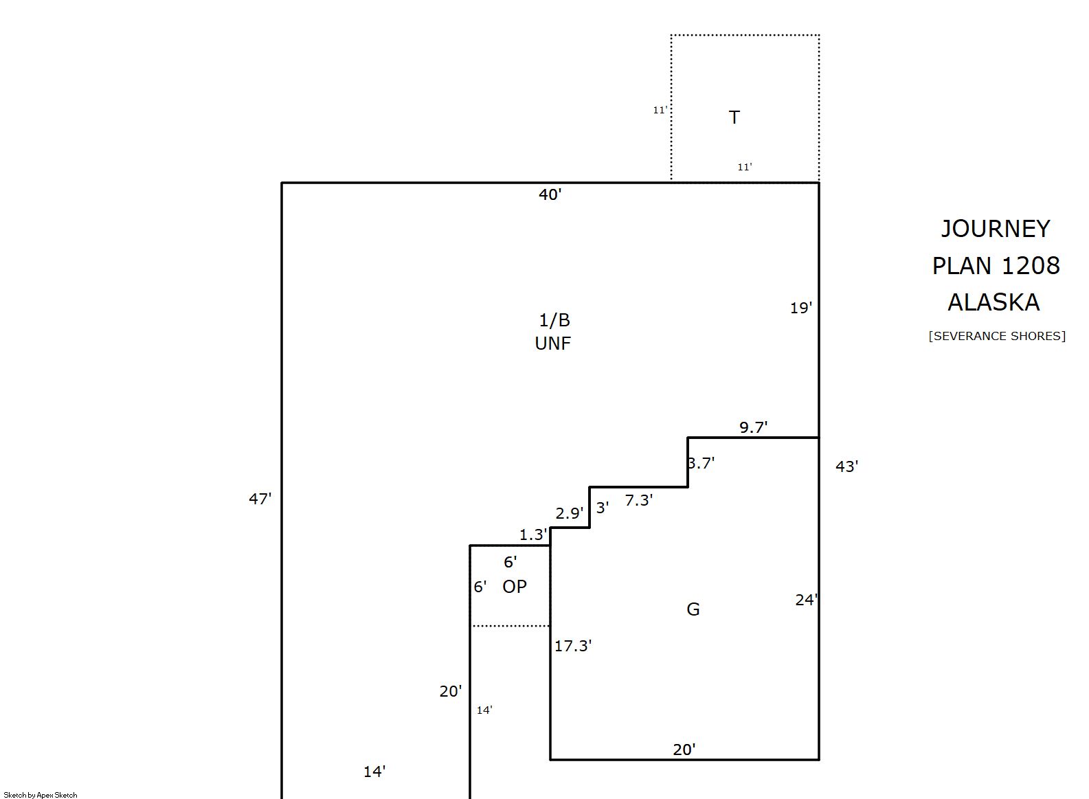
Lot 48 SEVERANCE SHORES

Subdivision Block Lot Land Economic Area
SEVERANCE SHORES 48 SEVERANCE SHORES

Property Address Property City Section Township Range
1570 DRIFTLINE DR SEVERANCE 34 07 67




Account Parcel Account Type Tax Year Buildings Actual Value Local Govt Assessed Value School Assessed Value
R8958638 070534304048 Residential 2026 1 450,178 28,140 31,740

Account Owner Name Address
R8958638 BAILON ANDRES LOPEZ 1570 DRIFTLINE DR SEVERANCE, CO 805503805


Account Parcel Account Type Tax Year Buildings Actual Value Local Govt Assessed Value School Assessed Value
R8958638 070534304048 Residential 2026 1 450,178 28,140 31,740

Reception Rec Date Type Grantor Grantee Doc Fee Sale Date Sale Price
4451984 12-07-2018 PLT SEVERANCE SHORES SUB SEVERANCE SHORES SUB 0.00 10-31-2018 0
4471945 03-07-2019 AFFD SEVERANCE SHORES SEVERANCE SHORES 0.00 03-07-2019 0
4479142 04-05-2019 AFFD SEVERANCE SHORES SEVERANCE SHORES 0.00 04-03-2019 0
4506488 07-17-2019 SWD SEVERANCE SHORES INVESTMENTS LLC JOURNEY HOMES LLC 479.50 07-15-2019 4,795,000
4569842 02-26-2020 SWD JOURNEY HOMES LLC BAILON ANDRES LOPEZ 31.88 02-21-2020 318,800



Account Parcel Account Type Tax Year Buildings Actual Value Local Govt Assessed Value School Assessed Value
R8958638 070534304048 Residential 2026 1 450,178 28,140 31,740

Building 1

AccountNo Building ID Occupancy
R8958638 1 Single Family Residential


ID Type NBHD Occupancy % Complete Bedrooms Baths
1 Residential 2S0020 Single Family Residential 100 3 2.00


ID Exterior Roof Cover Interior HVAC Perimeter Units Unit Type Make
1 Frame Siding Composition Shingle Drywall Forced Air 174 0 NA NA


ID Square Ft Condo SF Total Basement SF Finished Basement SF Garage SF Carport SF Balcony SF Porch SF
1 1,246 0 1,246 0 434 0 0 36


Built As Details for Building 1
ID Built As Square Ft Year Built Stories Length Width
1.00 Ranch 1 Story 1,246 2019 1 0 0


Additional Details for Building 1
ID Detail Type Description Units
1 Basement Total Basement SF 1246.00
1 Fixture Full Bath 2.00
1 Garage Attached 434.00
1 Porch Open Slab 121.00
1 Porch Slab Roof Ceil 36.00
1 Rough In Rough In 1.00





Account Parcel Account Type Tax Year Buildings Actual Value Local Govt Assessed Value School Assessed Value
R8958638 070534304048 Residential 2026 1 450,178 28,140 31,740

Type Code Description Actual Value Local Govt Assessed Value School Assessed Value Acres Land SqFt
Improvement 1212 SINGLE FAMILY RESIDENTIAL IMPROVEMENTS 348,178 21,760 24,550 0.000 0
Land 1112 SINGLE FAMILY RESIDENTIAL-LAND 102,000 6,380 7,190 0.204 8,877
Totals - - 450,178 28,140 31,740 0.204 8,877


Account Parcel Account Type Tax Year Buildings Actual Value Local Govt Assessed Value School Assessed Value
R8958638 070534304048 Residential 2026 1 450,178 28,140 31,740

Tax Area District ID District Name Local Govt
Mill Levy
School
Mill Levy
Estimated
Taxes
5274 0700 AIMS JUNIOR COLLEGE 6.313 0.000 $177.65
5274 1051 CLEARVIEW LIBRARY 3.546 0.000 $99.78
5274 0304 NORTH WELD COUNTY WATER (NWC) 0.000 0.000 $0.00
5274 0301 NORTHERN COLORADO WATER (NCW) 1.000 0.000 $28.14
5274 0204 SCHOOL DIST RE4-WINDSOR 0.000 46.646 $1,480.54
5274 1550 SEVERANCE SHORES METRO DISTRICT 3 74.742 0.000 $2,103.24
5274 0427 SEVERANCE TOWN 12.635 0.000 $355.55
5274 0100 WELD COUNTY 15.956 0.000 $449.00
5274 1200 WEST GREELEY CONSERVATION 0.414 0.000 $11.65
5274 0521 WINDSOR-SEVERANCE FIRE 8.535 0.000 $240.17
Total - - 123.141 46.646 $4,945.73


The estimate of tax is based on the prior year mill levy and the 2025 projected assessment rates. Mill levies and tax estimates will be updated yearly on December 22nd for the current year. Additional information can be found at https://assessor.weld.gov










Select Reports to Print: