Account: R8958957
April 4, 2026
| Account | Parcel | Account Type | Tax Year | Buildings | Actual Value | Local Govt Assessed Value | School Assessed Value |
|---|---|---|---|---|---|---|---|
| R8958957 | 131336318006 | Residential | 2026 | 1 | 404,355 | 25,270 | 28,500 |
| Legal |
|---|
| Lot 6 Block 3 SILVERSTONE FG #3 |
| Subdivision | Block | Lot | Land Economic Area |
|---|---|---|---|
| SILVERSTONE FG #3 | 3 | 6 | SILVERSTONE |
| Property Address | Property City | Section | Township | Range |
|---|---|---|---|---|
| 5324 SPALDING PL | FREDERICK | 36 | 02 | 68 |
| Account | Parcel | Account Type | Tax Year | Buildings | Actual Value | Local Govt Assessed Value | School Assessed Value |
|---|---|---|---|---|---|---|---|
| R8958957 | 131336318006 | Residential | 2026 | 1 | 404,355 | 25,270 | 28,500 |
| Account | Owner Name | Address |
|---|---|---|
| R8958957 | JOHNSON ADAM L | 5324 SPALDING PL FREDERICK, CO 805045973 |
| R8958957 | JOHNSON MARTHA GAYLE | |
| R8958957 | JOHNSON REBEKAH L |
| Account | Parcel | Account Type | Tax Year | Buildings | Actual Value | Local Govt Assessed Value | School Assessed Value |
|---|---|---|---|---|---|---|---|
| R8958957 | 131336318006 | Residential | 2026 | 1 | 404,355 | 25,270 | 28,500 |
| Reception | Rec Date | Type | Grantor | Grantee | Doc Fee | Sale Date | Sale Price |
|---|---|---|---|---|---|---|---|
| 4459017 | 01-10-2019 | PLT | SILVERSTONE FG #3 | SILVERSTONE FG #3 | 0.00 | 01-10-2019 | 0 |
| 4459291 | 01-11-2019 | SWD | DACONO INVESTMENT CO | SILVERSTONE DEVELOPMENT COMPANY INC | 258.00 | 01-09-2019 | 2,580,000 |
| 4459586 | 01-11-2019 | SWD | SILVERSTONE DEVELOPMENT COMPANY INC | RICHMOND AMERICAN HOMES OF COLORADO INC | 189.75 | 01-08-2019 | 1,897,500 |
| 4459587 | 01-11-2019 | QCN | SILVERSTONE DEVELOPMENT COMPANY INC | RICHMOND AMERICAN HOMES OF COLORADO INC | 0.00 | 01-08-2019 | 0 |
| 4476768 | 03-28-2019 | PLT | SILVERSTONE FG NO 3 | SILVERSTONE FG NO 3 | 0.00 | 03-28-2019 | 0 |
| 4761740 | 09-30-2021 | SWD | RICHMOND AMERICAN HOMES OF COLORADO INC | JOHNSON ADAM L; JOHNSON REBEKAH L; JOHNSON MARTHA GAYLE | 38.27 | 09-12-2021 | 382,700 |
*If the hyperlink for the reception number does not work, try a manual search in the Clerk and Recorder records. Use the Grantor or Grantee in your search.
| Account | Parcel | Account Type | Tax Year | Buildings | Actual Value | Local Govt Assessed Value | School Assessed Value |
|---|---|---|---|---|---|---|---|
| R8958957 | 131336318006 | Residential | 2026 | 1 | 404,355 | 25,270 | 28,500 |
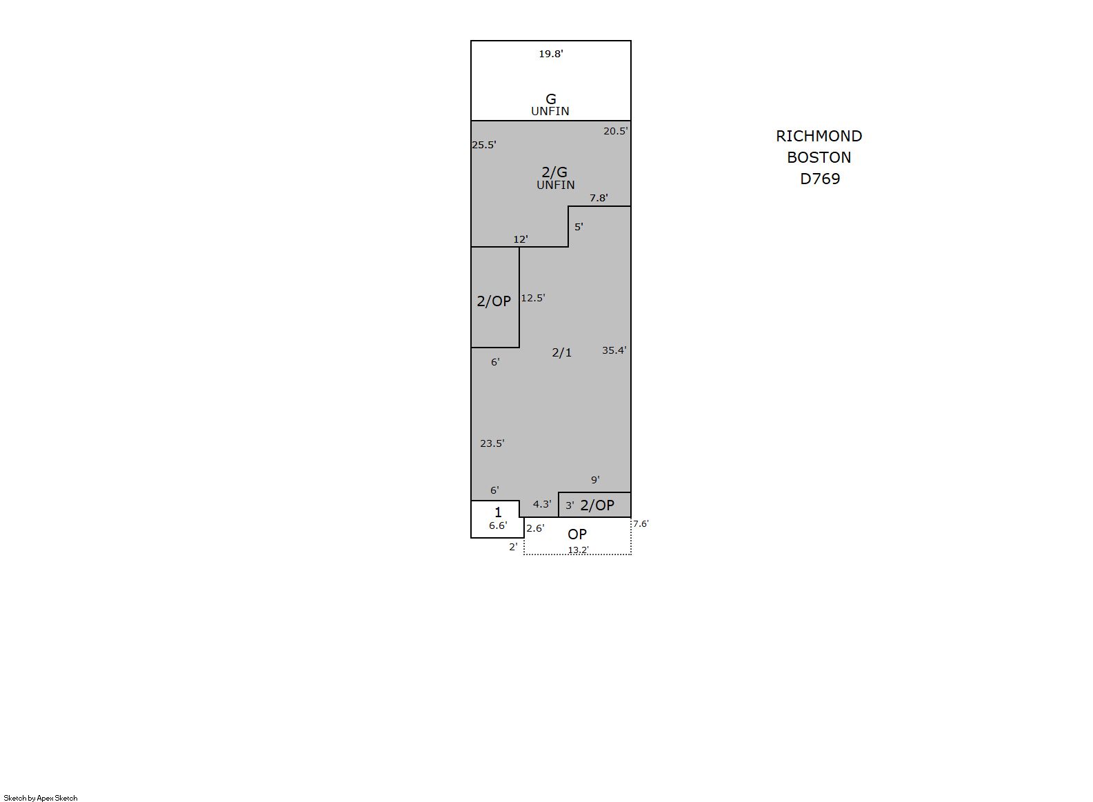
Building 1
| AccountNo | Building ID | Occupancy |
|---|---|---|
| R8958957 | 1 | Duplex |
| ID | Type | NBHD | Occupancy | % Complete | Bedrooms | Baths |
|---|---|---|---|---|---|---|
| 1 | Duplex | 3K2046 | Duplex | 100 | 2 | 3.00 |
| ID | Exterior | Roof Cover | Interior | HVAC | Perimeter | Units | Unit Type | Make |
|---|---|---|---|---|---|---|---|---|
| 1 | Frame Siding | Composition Shingle | Drywall | Central Air to Air | 259 | 0 | End | NA |
| ID | Square Ft | Condo SF | Total Basement SF | Finished Basement SF | Garage SF | Carport SF | Balcony SF | Porch SF |
|---|---|---|---|---|---|---|---|---|
| 1 | 1,577 | 0 | 0 | 0 | 467 | 0 | 0 | 163 |
| ID | Built As | Square Ft | Year Built | Stories | Length | Width |
|---|---|---|---|---|---|---|
| 1.00 | Townhouse Two Story | 1,577 | 2021 | 2 | 0 | 0 |
| ID | Detail Type | Description | Units |
|---|---|---|---|
| 1 | Fixture | Full Bath | 2.00 |
| 1 | Fixture | Half Bath | 1.00 |
| 1 | Garage | Attached | 467.00 |
| 1 | Porch | Slab Roof Ceil | 163.00 |
| Account | Parcel | Account Type | Tax Year | Buildings | Actual Value | Local Govt Assessed Value | School Assessed Value |
|---|---|---|---|---|---|---|---|
| R8958957 | 131336318006 | Residential | 2026 | 1 | 404,355 | 25,270 | 28,500 |
| Type | Code | Description | Actual Value | Local Govt Assessed Value | School Assessed Value | Acres | Land SqFt |
|---|---|---|---|---|---|---|---|
| Improvement | 1212 | SINGLE FAMILY RESIDENTIAL IMPROVEMENTS | 319,355 | 19,960 | 22,510 | 0.000 | 0 |
| Land | 1112 | SINGLE FAMILY RESIDENTIAL-LAND | 85,000 | 5,310 | 5,990 | 0.046 | 2,000 |
| Totals | - | - | 404,355 | 25,270 | 28,500 | 0.046 | 2,000 |
Comparable sales for your Residential or Commercial property may be found using our SALES SEARCH TOOL
Values are updated annually on May 1st for Real Property and June 15th for Personal Property and Oil and Gas.
| Account | Parcel | Account Type | Tax Year | Buildings | Actual Value | Local Govt Assessed Value | School Assessed Value |
|---|---|---|---|---|---|---|---|
| R8958957 | 131336318006 | Residential | 2026 | 1 | 404,355 | 25,270 | 28,500 |
| Tax Area | District ID | District Name | Local Govt Mill Levy |
School Mill Levy |
Estimated Taxes |
|---|---|---|---|---|---|
| 4887 | 0900 | CARBON VALLEY REC | 4.427 | 0.000 | $111.87 |
| 4887 | 0408 | FREDERICK TOWN | 6.555 | 0.000 | $165.64 |
| 4887 | 0507 | FREDERICK-FIRESTONE FIRE | 15.559 | 0.000 | $393.18 |
| 4887 | 1050 | HIGH PLAINS LIBRARY | 3.044 | 0.000 | $76.92 |
| 4887 | 0301 | NORTHERN COLORADO WATER (NCW) | 1.000 | 0.000 | $25.27 |
| 4887 | 0213 | SCHOOL DIST RE1J-LONGMONT | 0.000 | 57.717 | $1,644.93 |
| 4887 | 1463 | SILVERSTONE METRO DISTRICT 2 | 66.790 | 0.000 | $1,687.78 |
| 4887 | 0620 | ST VRAIN SANITATION | 0.316 | 0.000 | $7.99 |
| 4887 | 0100 | WELD COUNTY | 15.956 | 0.000 | $403.21 |
| Total | - | - | 113.647 | 57.717 | $4,516.79 |
The estimate of tax is based on the prior year mill levy and the 2025 projected assessment rates. Mill levies and tax estimates will be updated yearly on December 22nd for the current year. Additional information can be found at https://assessor.weld.gov


