Account: R8960560

April 4, 2026

Account Parcel Account Type Tax Year Buildings Actual Value Local Govt Assessed Value School Assessed Value
R8960560 131314212011 Residential 2026 1 530,720 33,170 37,420

Legal
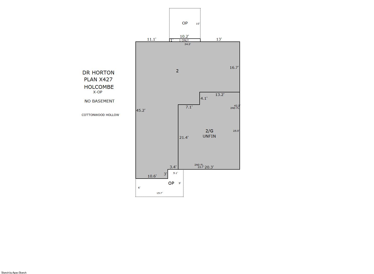
Lot 11 Block 2 COTTONWOOD HOLLOW FG #1

Subdivision Block Lot Land Economic Area
COTTONWOOD HOLLOW FG #1 2 11 COTTONWOOD HOLLOW

Property Address Property City Section Township Range
9536 APPLEWOOD ST FIRESTONE 14 02 68




Account Parcel Account Type Tax Year Buildings Actual Value Local Govt Assessed Value School Assessed Value
R8960560 131314212011 Residential 2026 1 530,720 33,170 37,420

Account Owner Name Address
R8960560 PR ARC BORROWER 1 LLC PO BOX 4090 SCOTTSDALE, AZ 852614090


Account Parcel Account Type Tax Year Buildings Actual Value Local Govt Assessed Value School Assessed Value
R8960560 131314212011 Residential 2026 1 530,720 33,170 37,420

Reception Rec Date Type Grantor Grantee Doc Fee Sale Date Sale Price
4485833 05-01-2019 PLT COTTONWOOD HOLLOW FG #1 COTTONWOOD HOLLOW FG #1 0.00 01-17-2019 0
4656669 12-03-2020 SWD MORTGAGE CONSULTANTS LLC FORESTAR USA REAL ESTATE GROUP INC 160.00 11-19-2020 1,600,000
4807441 03-03-2022 SWD FORESTAR (USA) REAL ESTATE GROUP INC MELODY HOMES INC 288.00 03-01-2022 2,880,000
4907860 07-07-2023 SWDN MELODY HOMES INC DHIR-COTTONWOOD HOLLOW LLC 0.00 06-29-2023 0
4921331 09-19-2023 SWD DHIR-COTTONWOOD HOLLOW LLC SFR V TRANCHE 5 BORROWER LLC 4,055.42 09-11-2023 40,554,200
5040489 07-10-2025 SWDN SFR V TRANCHE 5 BORROWER LLC PR ARC BORROWER 1 LLC 0.00 06-23-2025 0



Account Parcel Account Type Tax Year Buildings Actual Value Local Govt Assessed Value School Assessed Value
R8960560 131314212011 Residential 2026 1 530,720 33,170 37,420

Building 1

AccountNo Building ID Occupancy
R8960560 1 Single Family Residential


ID Type NBHD Occupancy % Complete Bedrooms Baths
1 Residential 3F1034 Single Family Residential 100 4 3.00


ID Exterior Roof Cover Interior HVAC Perimeter Units Unit Type Make
1 Frame Siding Composition Shingle Drywall Central Air to Air 320 0 NA NA


ID Square Ft Condo SF Total Basement SF Finished Basement SF Garage SF Carport SF Balcony SF Porch SF
1 2,480 0 0 0 489 0 0 212


Built As Details for Building 1
ID Built As Square Ft Year Built Stories Length Width
1.00 2 Story 2,480 2022 2 0 0


Additional Details for Building 1
ID Detail Type Description Units
1 Fixture Full Bath 2.00
1 Fixture Half Bath 1.00
1 Garage Attached 489.00
1 Porch Slab Roof Ceil 212.00





Account Parcel Account Type Tax Year Buildings Actual Value Local Govt Assessed Value School Assessed Value
R8960560 131314212011 Residential 2026 1 530,720 33,170 37,420

Type Code Description Actual Value Local Govt Assessed Value School Assessed Value Acres Land SqFt
Improvement 1212 SINGLE FAMILY RESIDENTIAL IMPROVEMENTS 415,720 25,980 29,310 0.000 0
Land 1112 SINGLE FAMILY RESIDENTIAL-LAND 115,000 7,190 8,110 0.160 6,982
Totals - - 530,720 33,170 37,420 0.160 6,982


Account Parcel Account Type Tax Year Buildings Actual Value Local Govt Assessed Value School Assessed Value
R8960560 131314212011 Residential 2026 1 530,720 33,170 37,420

Tax Area District ID District Name Local Govt
Mill Levy
School
Mill Levy
Estimated
Taxes
6143 0900 CARBON VALLEY REC 4.427 0.000 $146.84
6143 0305 CENTRAL WELD COUNTY WATER (CWC) 0.000 0.000 $0.00
6143 1369 COTTONWOOD HOLLOW RESIDENTIAL METRO 69.744 0.000 $2,313.41
6143 0406 FIRESTONE TOWN 6.805 0.000 $225.72
6143 0507 FREDERICK-FIRESTONE FIRE 15.559 0.000 $516.09
6143 1050 HIGH PLAINS LIBRARY 3.044 0.000 $100.97
6143 0301 NORTHERN COLORADO WATER (NCW) 1.000 0.000 $33.17
6143 0953 NORTHERN FIRESTONE URBAN RENEWAL (NFURA) 0.000 0.000 $0.00
6143 0213 SCHOOL DIST RE1J-LONGMONT 0.000 57.717 $2,159.77
6143 0620 ST VRAIN SANITATION 0.316 0.000 $10.48
6143 0100 WELD COUNTY 15.956 0.000 $529.26
Total - - 116.851 57.717 $6,035.72


The estimate of tax is based on the prior year mill levy and the 2025 projected assessment rates. Mill levies and tax estimates will be updated yearly on December 22nd for the current year. Additional information can be found at https://assessor.weld.gov










Select Reports to Print: