Account: R8960604
April 4, 2026
| Account | Parcel | Account Type | Tax Year | Buildings | Actual Value | Local Govt Assessed Value | School Assessed Value |
|---|---|---|---|---|---|---|---|
| R8960604 | 131314216017 | Residential | 2026 | 1 | 466,520 | 29,160 | 32,890 |
| Legal |
|---|
| Lot 17 Block 6 COTTONWOOD HOLLOW FG #1 |
| Subdivision | Block | Lot | Land Economic Area |
|---|---|---|---|
| COTTONWOOD HOLLOW FG #1 | 6 | 17 | COTTONWOOD HOLLOW |
| Property Address | Property City | Section | Township | Range |
|---|---|---|---|---|
| 9562 APPLEWOOD ST | FIRESTONE | 14 | 02 | 68 |
| Account | Parcel | Account Type | Tax Year | Buildings | Actual Value | Local Govt Assessed Value | School Assessed Value |
|---|---|---|---|---|---|---|---|
| R8960604 | 131314216017 | Residential | 2026 | 1 | 466,520 | 29,160 | 32,890 |
| Account | Owner Name | Address |
|---|---|---|
| R8960604 | PR ARC BORROWER 1 LLC | PO BOX 4090 SCOTTSDALE, AZ 852614090 |
| Account | Parcel | Account Type | Tax Year | Buildings | Actual Value | Local Govt Assessed Value | School Assessed Value |
|---|---|---|---|---|---|---|---|
| R8960604 | 131314216017 | Residential | 2026 | 1 | 466,520 | 29,160 | 32,890 |
| Reception | Rec Date | Type | Grantor | Grantee | Doc Fee | Sale Date | Sale Price |
|---|---|---|---|---|---|---|---|
| 4485833 | 05-01-2019 | PLT | COTTONWOOD HOLLOW FG #1 | COTTONWOOD HOLLOW FG #1 | 0.00 | 01-17-2019 | 0 |
| 4656669 | 12-03-2020 | SWD | MORTGAGE CONSULTANTS LLC | FORESTAR USA REAL ESTATE GROUP INC | 160.00 | 11-19-2020 | 1,600,000 |
| 4766992 | 10-19-2021 | SWD | FORESTAR (USA) REAL ESTATE GROUP INC | MELODY HOMES INC | 192.00 | 10-14-2021 | 1,920,000 |
| 4868300 | 11-22-2022 | SWDN | MELODY HOMES INC | DHIR-COTTONWOOD HOLLOW LLC | 0.00 | 11-11-2022 | 0 |
| 4921331 | 09-19-2023 | SWD | DHIR-COTTONWOOD HOLLOW LLC | SFR V TRANCHE 5 BORROWER LLC | 4,055.42 | 09-11-2023 | 40,554,200 |
| 5040489 | 07-10-2025 | SWDN | SFR V TRANCHE 5 BORROWER LLC | PR ARC BORROWER 1 LLC | 0.00 | 06-23-2025 | 0 |
*If the hyperlink for the reception number does not work, try a manual search in the Clerk and Recorder records. Use the Grantor or Grantee in your search.
| Account | Parcel | Account Type | Tax Year | Buildings | Actual Value | Local Govt Assessed Value | School Assessed Value |
|---|---|---|---|---|---|---|---|
| R8960604 | 131314216017 | Residential | 2026 | 1 | 466,520 | 29,160 | 32,890 |
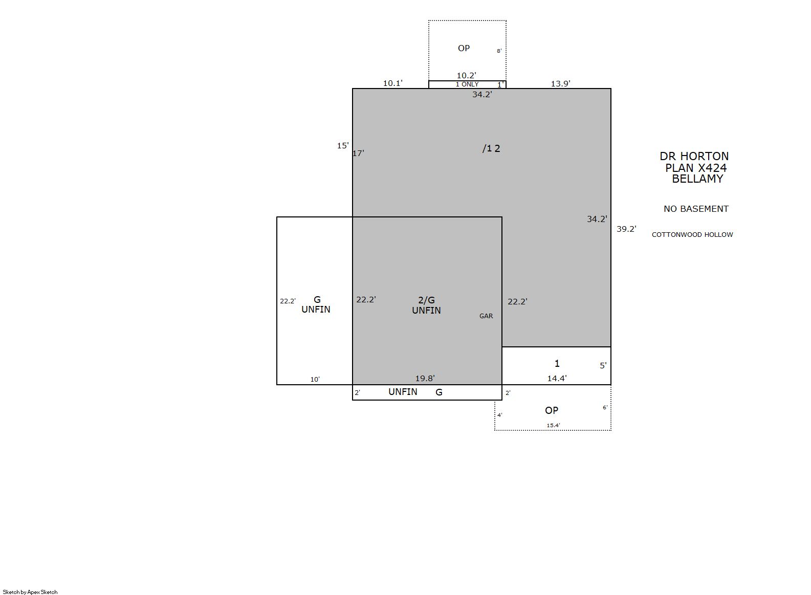
Building 1
| AccountNo | Building ID | Occupancy |
|---|---|---|
| R8960604 | 1 | Single Family Residential |
| ID | Type | NBHD | Occupancy | % Complete | Bedrooms | Baths |
|---|---|---|---|---|---|---|
| 1 | Residential | 3F1034 | Single Family Residential | 100 | 4 | 3.00 |
| ID | Exterior | Roof Cover | Interior | HVAC | Perimeter | Units | Unit Type | Make |
|---|---|---|---|---|---|---|---|---|
| 1 | Frame Siding | Composition Shingle | Drywall | Central Air to Air | 296 | 0 | NA | NA |
| ID | Square Ft | Condo SF | Total Basement SF | Finished Basement SF | Garage SF | Carport SF | Balcony SF | Porch SF |
|---|---|---|---|---|---|---|---|---|
| 1 | 2,180 | 0 | 0 | 0 | 701 | 0 | 0 | 172 |
| ID | Built As | Square Ft | Year Built | Stories | Length | Width |
|---|---|---|---|---|---|---|
| 1.00 | 2 Story | 2,180 | 2022 | 2 | 0 | 0 |
| ID | Detail Type | Description | Units |
|---|---|---|---|
| 1 | Fixture | Full Bath | 2.00 |
| 1 | Fixture | Half Bath | 1.00 |
| 1 | Garage | Attached | 701.00 |
| 1 | Porch | Slab Roof Ceil | 172.00 |
| Account | Parcel | Account Type | Tax Year | Buildings | Actual Value | Local Govt Assessed Value | School Assessed Value |
|---|---|---|---|---|---|---|---|
| R8960604 | 131314216017 | Residential | 2026 | 1 | 466,520 | 29,160 | 32,890 |
| Type | Code | Description | Actual Value | Local Govt Assessed Value | School Assessed Value | Acres | Land SqFt |
|---|---|---|---|---|---|---|---|
| Improvement | 1212 | SINGLE FAMILY RESIDENTIAL IMPROVEMENTS | 351,520 | 21,970 | 24,780 | 0.000 | 0 |
| Land | 1112 | SINGLE FAMILY RESIDENTIAL-LAND | 115,000 | 7,190 | 8,110 | 0.171 | 7,440 |
| Totals | - | - | 466,520 | 29,160 | 32,890 | 0.171 | 7,440 |
Comparable sales for your Residential or Commercial property may be found using our SALES SEARCH TOOL
Values are updated annually on May 1st for Real Property and June 15th for Personal Property and Oil and Gas.
| Account | Parcel | Account Type | Tax Year | Buildings | Actual Value | Local Govt Assessed Value | School Assessed Value |
|---|---|---|---|---|---|---|---|
| R8960604 | 131314216017 | Residential | 2026 | 1 | 466,520 | 29,160 | 32,890 |
| Tax Area | District ID | District Name | Local Govt Mill Levy |
School Mill Levy |
Estimated Taxes |
|---|---|---|---|---|---|
| 6143 | 0900 | CARBON VALLEY REC | 4.427 | 0.000 | $129.09 |
| 6143 | 0305 | CENTRAL WELD COUNTY WATER (CWC) | 0.000 | 0.000 | $0.00 |
| 6143 | 1369 | COTTONWOOD HOLLOW RESIDENTIAL METRO | 69.744 | 0.000 | $2,033.74 |
| 6143 | 0406 | FIRESTONE TOWN | 6.805 | 0.000 | $198.43 |
| 6143 | 0507 | FREDERICK-FIRESTONE FIRE | 15.559 | 0.000 | $453.70 |
| 6143 | 1050 | HIGH PLAINS LIBRARY | 3.044 | 0.000 | $88.76 |
| 6143 | 0301 | NORTHERN COLORADO WATER (NCW) | 1.000 | 0.000 | $29.16 |
| 6143 | 0953 | NORTHERN FIRESTONE URBAN RENEWAL (NFURA) | 0.000 | 0.000 | $0.00 |
| 6143 | 0213 | SCHOOL DIST RE1J-LONGMONT | 0.000 | 57.717 | $1,898.31 |
| 6143 | 0620 | ST VRAIN SANITATION | 0.316 | 0.000 | $9.21 |
| 6143 | 0100 | WELD COUNTY | 15.956 | 0.000 | $465.28 |
| Total | - | - | 116.851 | 57.717 | $5,305.69 |
The estimate of tax is based on the prior year mill levy and the 2025 projected assessment rates. Mill levies and tax estimates will be updated yearly on December 22nd for the current year. Additional information can be found at https://assessor.weld.gov


