Account: R8961786
April 1, 2026
| Account | Parcel | Account Type | Tax Year | Buildings | Actual Value | Local Govt Assessed Value | School Assessed Value |
|---|---|---|---|---|---|---|---|
| R8961786 | 131306404001 | Commercial | 2026 | 2 | 5,133,560 | 1,386,060 | 1,386,060 |
| Legal |
|---|
| LOT 1 BLOCK 2 JM SMUCKER LLC PLANT RPLT A |
| Subdivision | Block | Lot | Land Economic Area |
|---|---|---|---|
| JM SMUCKER LLC PLANT RPLT A | 2 | 1 | LONGMONT CONCEPTS DIRECT |
| Property Address | Property City | Section | Township | Range |
|---|---|---|---|---|
| 295 PINNACLE ST | LONGMONT | 06 | 02 | 68 |
| Account | Parcel | Account Type | Tax Year | Buildings | Actual Value | Local Govt Assessed Value | School Assessed Value |
|---|---|---|---|---|---|---|---|
| R8961786 | 131306404001 | Commercial | 2026 | 2 | 5,133,560 | 1,386,060 | 1,386,060 |
| Account | Owner Name | Address |
|---|---|---|
| R8961786 | 12 GUAGE PROPERTIES LLC | 295 PINNACLE ST LONGMONT, CO 805046300 |
| Account | Parcel | Account Type | Tax Year | Buildings | Actual Value | Local Govt Assessed Value | School Assessed Value |
|---|---|---|---|---|---|---|---|
| R8961786 | 131306404001 | Commercial | 2026 | 2 | 5,133,560 | 1,386,060 | 1,386,060 |
| Reception | Rec Date | Type | Grantor | Grantee | Doc Fee | Sale Date | Sale Price |
|---|---|---|---|---|---|---|---|
| 4507205 | 07-22-2019 | PLT | JM SMUCKER LLC PLANT SUB RPLT A | JM SMUCKER LLC PLANT SUB RPLT A | 0.00 | 06-13-2019 | 0 |
| 4518488 | 08-28-2019 | SWD | HIGHWAY 119 HOLDINGS LLC | 12 GAUGE PROPERTIES LLC | 65.35 | 08-26-2019 | 653,500 |
*If the hyperlink for the reception number does not work, try a manual search in the Clerk and Recorder records. Use the Grantor or Grantee in your search.
| Account | Parcel | Account Type | Tax Year | Buildings | Actual Value | Local Govt Assessed Value | School Assessed Value |
|---|---|---|---|---|---|---|---|
| R8961786 | 131306404001 | Commercial | 2026 | 2 | 5,133,560 | 1,386,060 | 1,386,060 |
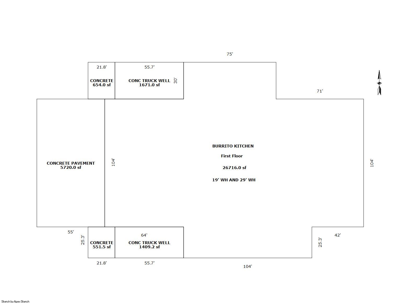
Building 1
| AccountNo | Building ID | Occupancy |
|---|---|---|
| R8961786 | 1 | Warehouse |
| ID | Type | NBHD | Occupancy | % Complete | Bedrooms | Baths |
|---|---|---|---|---|---|---|
| 1 | Commercial | 3922 | Warehouse | 100 | NA | 0.00 |
| ID | Exterior | Roof Cover | Interior | HVAC | Perimeter | Units | Unit Type | Make |
|---|---|---|---|---|---|---|---|---|
| 1 | NA | NA | NA | Package Unit | 738 | 0 | NA | NA |
| ID | Square Ft | Condo SF | Total Basement SF | Finished Basement SF | Garage SF | Carport SF | Balcony SF | Porch SF |
|---|---|---|---|---|---|---|---|---|
| 1 | 26,716 | 0 | 0 | 0 | 0 | 0 | 0 | 0 |
| ID | Built As | Square Ft | Year Built | Stories | Length | Width |
|---|---|---|---|---|---|---|
| 1.00 | Indust Lght Manufacturing | 26,716 | 2021 | 1 | 0 | 0 |
| ID | Detail Type | Description | Units |
|---|---|---|---|
| 1 | Add On | Asphalt Average | 42000.00 |
| 1 | Add On | Concrete Slab Average | 5720.00 |
| 1 | Add On | Loading Docks Filled Conc Walls & Floor | 3080.00 |
Building 2
| AccountNo | Building ID | Occupancy |
|---|---|---|
| R8961786 | 2 | Warehouse |
| ID | Type | NBHD | Occupancy | % Complete | Bedrooms | Baths |
|---|---|---|---|---|---|---|
| 2 | Commercial | 3922 | Warehouse | 100 | NA | 0.00 |
| ID | Exterior | Roof Cover | Interior | HVAC | Perimeter | Units | Unit Type | Make |
|---|---|---|---|---|---|---|---|---|
| 2 | NA | NA | NA | Radiant | 176 | 0 | NA | NA |
| ID | Square Ft | Condo SF | Total Basement SF | Finished Basement SF | Garage SF | Carport SF | Balcony SF | Porch SF |
|---|---|---|---|---|---|---|---|---|
| 2 | 1,911 | 0 | 0 | 0 | 0 | 0 | 0 | 0 |
| ID | Built As | Square Ft | Year Built | Stories | Length | Width |
|---|---|---|---|---|---|---|
| 2.00 | Light Commercial Utility | 1,911 | 2021 | 1 | 49 | 39 |
No Additional Details for Building 2
| Account | Parcel | Account Type | Tax Year | Buildings | Actual Value | Local Govt Assessed Value | School Assessed Value |
|---|---|---|---|---|---|---|---|
| R8961786 | 131306404001 | Commercial | 2026 | 2 | 5,133,560 | 1,386,060 | 1,386,060 |
| Type | Code | Description | Actual Value | Local Govt Assessed Value | School Assessed Value | Acres | Land SqFt |
|---|---|---|---|---|---|---|---|
| Improvement | 3215 | MANUFACTURED PROCESSING-IMPS | 2,968,166 | 801,400 | 801,400 | 0.000 | 0 |
| Land | 3115 | MANUFACTURED/PROCESSING-LAND | 2,165,394 | 584,660 | 584,660 | 7.102 | 309,342 |
| Totals | - | - | 5,133,560 | 1,386,060 | 1,386,060 | 7.102 | 309,342 |
Comparable sales for your Residential or Commercial property may be found using our SALES SEARCH TOOL
Values are updated annually on May 1st for Real Property and June 15th for Personal Property and Oil and Gas.
| Account | Parcel | Account Type | Tax Year | Buildings | Actual Value | Local Govt Assessed Value | School Assessed Value |
|---|---|---|---|---|---|---|---|
| R8961786 | 131306404001 | Commercial | 2026 | 2 | 5,133,560 | 1,386,060 | 1,386,060 |
| Tax Area | District ID | District Name | Local Govt Mill Levy |
School Mill Levy |
Estimated Taxes |
|---|---|---|---|---|---|
| 3213 | 1050 | HIGH PLAINS LIBRARY | 3.044 | 0.000 | $4,219.17 |
| 3213 | 0433 | LONGMONT TOWN | 13.420 | 0.000 | $18,600.93 |
| 3213 | 0301 | NORTHERN COLORADO WATER (NCW) | 1.000 | 0.000 | $1,386.06 |
| 3213 | 1360 | RTD | 0.000 | 0.000 | $0.00 |
| 3213 | 0213 | SCHOOL DIST RE1J-LONGMONT | 0.000 | 57.717 | $79,999.23 |
| 3213 | 0303 | ST VRAIN LEFT HAND WATER (SVW) | 1.406 | 0.000 | $1,948.80 |
| 3213 | 0620 | ST VRAIN SANITATION | 0.316 | 0.000 | $437.99 |
| 3213 | 0100 | WELD COUNTY | 15.956 | 0.000 | $22,115.97 |
| Total | - | - | 35.142 | 57.717 | $128,708.15 |
The estimate of tax is based on the prior year mill levy and the 2025 projected assessment rates. Mill levies and tax estimates will be updated yearly on December 22nd for the current year. Additional information can be found at https://assessor.weld.gov


