Account: R8962478
April 1, 2026
| Account | Parcel | Account Type | Tax Year | Buildings | Actual Value | Local Govt Assessed Value | School Assessed Value |
|---|---|---|---|---|---|---|---|
| R8962478 | 070531466022 | Residential | 2026 | 1 | 584,710 | 36,540 | 41,220 |
| Legal |
|---|
| Lot 22 Block 21 RIDGE AT HARMONY ROAD 3RD FG |
| Subdivision | Block | Lot | Land Economic Area |
|---|---|---|---|
| RIDGE AT HARMONY ROAD 3RD FG | 21 | 22 | THE RIDGE AT HARMONY |
| Property Address | Property City | Section | Township | Range |
|---|---|---|---|---|
| 4510 BISHOPSGATE DR | WINDSOR | 31 | 07 | 67 |
| Account | Parcel | Account Type | Tax Year | Buildings | Actual Value | Local Govt Assessed Value | School Assessed Value |
|---|---|---|---|---|---|---|---|
| R8962478 | 070531466022 | Residential | 2026 | 1 | 584,710 | 36,540 | 41,220 |
| Account | Owner Name | Address |
|---|---|---|
| R8962478 | ANAYA GARYN | 4510 BISHOPSGATE DR WINDSOR, CO 805506084 |
| R8962478 | ROTZOLL REBECCA |
| Account | Parcel | Account Type | Tax Year | Buildings | Actual Value | Local Govt Assessed Value | School Assessed Value |
|---|---|---|---|---|---|---|---|
| R8962478 | 070531466022 | Residential | 2026 | 1 | 584,710 | 36,540 | 41,220 |
| Reception | Rec Date | Type | Grantor | Grantee | Doc Fee | Sale Date | Sale Price |
|---|---|---|---|---|---|---|---|
| 4519525 | 09-03-2019 | PLT | THE RIDGE AT HARMONY ROAD SUB 3RD FG | THE RIDGE AT HARMONY ROAD SUB 3RD FG | 0.00 | 07-26-2019 | 0 |
| 4611642 | 07-22-2020 | WDN | HR EXCHANGE LLC | EAGLE DEVELOPMENT COMPANY | 0.00 | 07-22-2020 | 0 |
| 4624076 | 08-27-2020 | SWD | EAGLE DEVELOPMENT COMPANY | MELODY HOMES INC | 654.90 | 08-24-2020 | 6,549,000 |
| 4775954 | 11-15-2021 | SWD | MELODY HOMES INC | YUAN XIAOYAN | 54.20 | 11-12-2021 | 542,000 |
| 4894410 | 04-25-2023 | SWD | YUAN XIAOYAN | ANAYA GARYN; ROTZOLL REBECCA | 58.50 | 04-19-2023 | 585,000 |
*If the hyperlink for the reception number does not work, try a manual search in the Clerk and Recorder records. Use the Grantor or Grantee in your search.
| Account | Parcel | Account Type | Tax Year | Buildings | Actual Value | Local Govt Assessed Value | School Assessed Value |
|---|---|---|---|---|---|---|---|
| R8962478 | 070531466022 | Residential | 2026 | 1 | 584,710 | 36,540 | 41,220 |
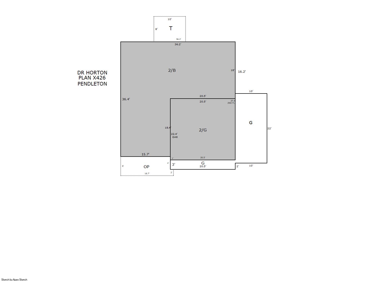
Building 1
| AccountNo | Building ID | Occupancy |
|---|---|---|
| R8962478 | 1 | Single Family Residential |
| ID | Type | NBHD | Occupancy | % Complete | Bedrooms | Baths |
|---|---|---|---|---|---|---|
| 1 | Residential | 2W5019 | Single Family Residential | 100 | 3 | 3.00 |
| ID | Exterior | Roof Cover | Interior | HVAC | Perimeter | Units | Unit Type | Make |
|---|---|---|---|---|---|---|---|---|
| 1 | Frame Siding | Composition Shingle | Drywall | Central Air to Air | 292 | 0 | NA | NA |
| ID | Square Ft | Condo SF | Total Basement SF | Finished Basement SF | Garage SF | Carport SF | Balcony SF | Porch SF |
|---|---|---|---|---|---|---|---|---|
| 1 | 2,278 | 0 | 940 | 0 | 679 | 0 | 0 | 80 |
| ID | Built As | Square Ft | Year Built | Stories | Length | Width |
|---|---|---|---|---|---|---|
| 1.00 | 2 Story | 2,278 | 2021 | 2 | 0 | 0 |
| ID | Detail Type | Description | Units |
|---|---|---|---|
| 1 | Basement | Total Basement SF | 940.00 |
| 1 | Fixture | Full Bath | 2.00 |
| 1 | Fixture | Half Bath | 1.00 |
| 1 | Garage | Attached | 679.00 |
| 1 | Porch | Open Slab | 80.00 |
| 1 | Porch | Slab Roof Ceil | 96.00 |
| Account | Parcel | Account Type | Tax Year | Buildings | Actual Value | Local Govt Assessed Value | School Assessed Value |
|---|---|---|---|---|---|---|---|
| R8962478 | 070531466022 | Residential | 2026 | 1 | 584,710 | 36,540 | 41,220 |
| Type | Code | Description | Actual Value | Local Govt Assessed Value | School Assessed Value | Acres | Land SqFt |
|---|---|---|---|---|---|---|---|
| Improvement | 1212 | SINGLE FAMILY RESIDENTIAL IMPROVEMENTS | 459,710 | 28,730 | 32,410 | 0.000 | 0 |
| Land | 1112 | SINGLE FAMILY RESIDENTIAL-LAND | 125,000 | 7,810 | 8,810 | 0.185 | 8,045 |
| Totals | - | - | 584,710 | 36,540 | 41,220 | 0.185 | 8,045 |
Comparable sales for your Residential or Commercial property may be found using our SALES SEARCH TOOL
Values are updated annually on May 1st for Real Property and June 15th for Personal Property and Oil and Gas.
| Account | Parcel | Account Type | Tax Year | Buildings | Actual Value | Local Govt Assessed Value | School Assessed Value |
|---|---|---|---|---|---|---|---|
| R8962478 | 070531466022 | Residential | 2026 | 1 | 584,710 | 36,540 | 41,220 |
| Tax Area | District ID | District Name | Local Govt Mill Levy |
School Mill Levy |
Estimated Taxes |
|---|---|---|---|---|---|
| 5119 | 0700 | AIMS JUNIOR COLLEGE | 6.313 | 0.000 | $230.68 |
| 5119 | 0622 | BOXELDER SANITATION | 0.000 | 0.000 | $0.00 |
| 5119 | 1051 | CLEARVIEW LIBRARY | 3.546 | 0.000 | $129.57 |
| 5119 | 1206 | LARIMER CONSERVATION DISTRICT | 0.000 | 0.000 | $0.00 |
| 5119 | 0304 | NORTH WELD COUNTY WATER (NWC) | 0.000 | 0.000 | $0.00 |
| 5119 | 0301 | NORTHERN COLORADO WATER (NCW) | 1.000 | 0.000 | $36.54 |
| 5119 | 1504 | RIDGE AT HARMONY ROAD METRO 1 | 44.855 | 0.000 | $1,639.00 |
| 5119 | 0204 | SCHOOL DIST RE4-WINDSOR | 0.000 | 46.646 | $1,922.75 |
| 5119 | 0100 | WELD COUNTY | 15.956 | 0.000 | $583.03 |
| 5119 | 1200 | WEST GREELEY CONSERVATION | 0.414 | 0.000 | $15.13 |
| 5119 | 0428 | WINDSOR TOWN | 12.030 | 0.000 | $439.58 |
| 5119 | 0521 | WINDSOR-SEVERANCE FIRE | 8.535 | 0.000 | $311.87 |
| Total | - | - | 92.649 | 46.646 | $5,308.14 |
The estimate of tax is based on the prior year mill levy and the 2025 projected assessment rates. Mill levies and tax estimates will be updated yearly on December 22nd for the current year. Additional information can be found at https://assessor.weld.gov


