Account: R8965010
April 1, 2026
| Account | Parcel | Account Type | Tax Year | Buildings | Actual Value | Local Govt Assessed Value | School Assessed Value |
|---|---|---|---|---|---|---|---|
| R8965010 | 095904308123 | Residential | 2026 | 1 | 473,162 | 29,570 | 33,360 |
| Legal |
|---|
| Lot 123 CITY CENTER WEST RESIDENTIAL 2ND FG |
| Subdivision | Block | Lot | Land Economic Area |
|---|---|---|---|
| CITY CENTER WEST RESIDENTIAL 2ND FG | 123 | CITY CENTER RESIDENTIAL |
| Property Address | Property City | Section | Township | Range |
|---|---|---|---|---|
| 6635 7TH ST | GREELEY | 04 | 05 | 66 |
| Account | Parcel | Account Type | Tax Year | Buildings | Actual Value | Local Govt Assessed Value | School Assessed Value |
|---|---|---|---|---|---|---|---|
| R8965010 | 095904308123 | Residential | 2026 | 1 | 473,162 | 29,570 | 33,360 |
| Account | Owner Name | Address |
|---|---|---|
| R8965010 | ALVAREZ REBECCA L | 6635 7TH ST GREELEY, CO 806348144 |
| R8965010 | ALVAREZ DANIEL I |
| Account | Parcel | Account Type | Tax Year | Buildings | Actual Value | Local Govt Assessed Value | School Assessed Value |
|---|---|---|---|---|---|---|---|
| R8965010 | 095904308123 | Residential | 2026 | 1 | 473,162 | 29,570 | 33,360 |
| Reception | Rec Date | Type | Grantor | Grantee | Doc Fee | Sale Date | Sale Price |
|---|---|---|---|---|---|---|---|
| 4562126 | 01-29-2020 | PLT | CITY CENTER WEST RESIDENTIAL SUB 2ND FG | CITY CENTER WEST RESIDENTIAL SUB 2ND FG | 0.00 | 01-24-2020 | 0 |
| 4674303 | 01-22-2021 | SWD | CCW DEVELOPMENT LLC | FORESTAR (USA) REAL ESTATE GROUP INC | 570.00 | 01-20-2021 | 5,700,000 |
| 4685198 | 02-22-2021 | SWD | FORESTAR (USA) REAL ESTATE GROUP INC | HARTFORD CONSTRUCTION LLC | 64.00 | 02-18-2021 | 640,000 |
| 4704113 | 04-13-2021 | SURV | R66 T5 S4 S2 | R66 T5 S4 S2 | 0.00 | 01-11-2021 | 0 |
| 4742779 | 08-04-2021 | SWD | HARTFORD CONSTRUCTION LLC | ALVAREZ REBECCA L; ALVAREZ DANIEL I | 44.36 | 08-04-2021 | 443,600 |
| 4815712 | 04-04-2022 | AFFD | CITY CENTER WEST RESIDENTIAL SUB 2ND FG | CITY CENTER WEST RESIDENTIAL SUB 2ND FG | 0.00 | 02-03-2022 | 0 |
*If the hyperlink for the reception number does not work, try a manual search in the Clerk and Recorder records. Use the Grantor or Grantee in your search.
| Account | Parcel | Account Type | Tax Year | Buildings | Actual Value | Local Govt Assessed Value | School Assessed Value |
|---|---|---|---|---|---|---|---|
| R8965010 | 095904308123 | Residential | 2026 | 1 | 473,162 | 29,570 | 33,360 |
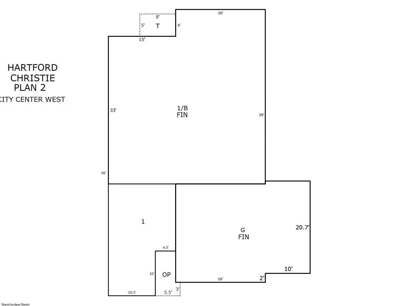
Building 1
| AccountNo | Building ID | Occupancy |
|---|---|---|
| R8965010 | 1 | Single Family Residential |
| ID | Type | NBHD | Occupancy | % Complete | Bedrooms | Baths |
|---|---|---|---|---|---|---|
| 1 | Residential | 2G4030 | Single Family Residential | 100 | 4 | 3.00 |
| ID | Exterior | Roof Cover | Interior | HVAC | Perimeter | Units | Unit Type | Make |
|---|---|---|---|---|---|---|---|---|
| 1 | Frame Siding | Composition Shingle | Drywall | Central Air to Air | 198 | 0 | NA | NA |
| ID | Square Ft | Condo SF | Total Basement SF | Finished Basement SF | Garage SF | Carport SF | Balcony SF | Porch SF |
|---|---|---|---|---|---|---|---|---|
| 1 | 1,605 | 0 | 1,275 | 1,275 | 647 | 0 | 0 | 48 |
| ID | Built As | Square Ft | Year Built | Stories | Length | Width |
|---|---|---|---|---|---|---|
| 1.00 | Ranch 1 Story | 1,605 | 2021 | 1 | 0 | 0 |
| ID | Detail Type | Description | Units |
|---|---|---|---|
| 1 | Basement | Finished | 1275.00 |
| 1 | Basement | Total Basement SF | 1275.00 |
| 1 | Fixture | Full Bath | 2.00 |
| 1 | Fixture | Half Bath | 1.00 |
| 1 | Garage | Attached | 647.00 |
| 1 | Porch | Open Slab | 40.00 |
| 1 | Porch | Slab Roof Ceil | 48.00 |
| Account | Parcel | Account Type | Tax Year | Buildings | Actual Value | Local Govt Assessed Value | School Assessed Value |
|---|---|---|---|---|---|---|---|
| R8965010 | 095904308123 | Residential | 2026 | 1 | 473,162 | 29,570 | 33,360 |
| Type | Code | Description | Actual Value | Local Govt Assessed Value | School Assessed Value | Acres | Land SqFt |
|---|---|---|---|---|---|---|---|
| Improvement | 1212 | SINGLE FAMILY RESIDENTIAL IMPROVEMENTS | 393,162 | 24,570 | 27,720 | 0.000 | 0 |
| Land | 1112 | SINGLE FAMILY RESIDENTIAL-LAND | 80,000 | 5,000 | 5,640 | 0.241 | 10,503 |
| Totals | - | - | 473,162 | 29,570 | 33,360 | 0.241 | 10,503 |
Comparable sales for your Residential or Commercial property may be found using our SALES SEARCH TOOL
Values are updated annually on May 1st for Real Property and June 15th for Personal Property and Oil and Gas.
| Account | Parcel | Account Type | Tax Year | Buildings | Actual Value | Local Govt Assessed Value | School Assessed Value |
|---|---|---|---|---|---|---|---|
| R8965010 | 095904308123 | Residential | 2026 | 1 | 473,162 | 29,570 | 33,360 |
| Tax Area | District ID | District Name | Local Govt Mill Levy |
School Mill Levy |
Estimated Taxes |
|---|---|---|---|---|---|
| 5603 | 0700 | AIMS JUNIOR COLLEGE | 6.313 | 0.000 | $186.68 |
| 5603 | 1566 | CITY CENTER WEST RESIDENTIAL METRO 2 | 52.594 | 0.000 | $1,555.20 |
| 5603 | 0411 | GREELEY CITY | 11.274 | 0.000 | $333.37 |
| 5603 | 1050 | HIGH PLAINS LIBRARY | 3.044 | 0.000 | $90.01 |
| 5603 | 0301 | NORTHERN COLORADO WATER (NCW) | 1.000 | 0.000 | $29.57 |
| 5603 | 0206 | SCHOOL DIST 6-GREELEY | 0.000 | 47.615 | $1,588.44 |
| 5603 | 0100 | WELD COUNTY | 15.956 | 0.000 | $471.82 |
| Total | - | - | 90.181 | 47.615 | $4,255.09 |
The estimate of tax is based on the prior year mill levy and the 2025 projected assessment rates. Mill levies and tax estimates will be updated yearly on December 22nd for the current year. Additional information can be found at https://assessor.weld.gov


