Account: R8965163
April 1, 2026
| Account | Parcel | Account Type | Tax Year | Buildings | Actual Value | Local Govt Assessed Value | School Assessed Value |
|---|---|---|---|---|---|---|---|
| R8965163 | 105910100048 | Residential | 2026 | 2 | 520,127 | 32,510 | 36,670 |
| Legal |
|---|
| PT NE4NE4 10 4 67 BEG 210'W OF SE COR W120' N353.6' E120' S353.6' TO BEG (1A) EXC PT COMM SE COR NE4NE4 SEC TH N90D00W 210 TPOB TH N00D00W 353.6 N90D00W 7.47 S01D11E 353.68 S90D00E 0.1 TPOB |
| Subdivision | Block | Lot | Land Economic Area |
|---|---|---|---|
| MILLIKEN RURAL |
| Property Address | Property City | Section | Township | Range |
|---|---|---|---|---|
| 9953 COUNTY ROAD 46 1/2 | WELD | 10 | 04 | 67 |
| Account | Parcel | Account Type | Tax Year | Buildings | Actual Value | Local Govt Assessed Value | School Assessed Value |
|---|---|---|---|---|---|---|---|
| R8965163 | 105910100048 | Residential | 2026 | 2 | 520,127 | 32,510 | 36,670 |
| Account | Owner Name | Address |
|---|---|---|
| R8965163 | HILLSBOROUGH RENTALS LLC | 9819 COUNTY ROAD 46 1/2 MILLIKEN, CO 805439402 |
| Account | Parcel | Account Type | Tax Year | Buildings | Actual Value | Local Govt Assessed Value | School Assessed Value |
|---|---|---|---|---|---|---|---|
| R8965163 | 105910100048 | Residential | 2026 | 2 | 520,127 | 32,510 | 36,670 |
| Reception | Rec Date | Type | Grantor | Grantee | Doc Fee | Sale Date | Sale Price |
|---|---|---|---|---|---|---|---|
| 4643663 | 10-23-2020 | WD | VERHEY RICHARD J; VERHEY JANETTE M | BINDER FAMILY FARMS LLC | 30.00 | 10-21-2020 | 300,000 |
| 4981102 | 09-06-2024 | BSDN | BINDER FAMILY FARMS LLC | HILLSBOROUGH RENTALS LLC | 0.00 | 08-30-2024 | 0 |
*If the hyperlink for the reception number does not work, try a manual search in the Clerk and Recorder records. Use the Grantor or Grantee in your search.
| Account | Parcel | Account Type | Tax Year | Buildings | Actual Value | Local Govt Assessed Value | School Assessed Value |
|---|---|---|---|---|---|---|---|
| R8965163 | 105910100048 | Residential | 2026 | 2 | 520,127 | 32,510 | 36,670 |
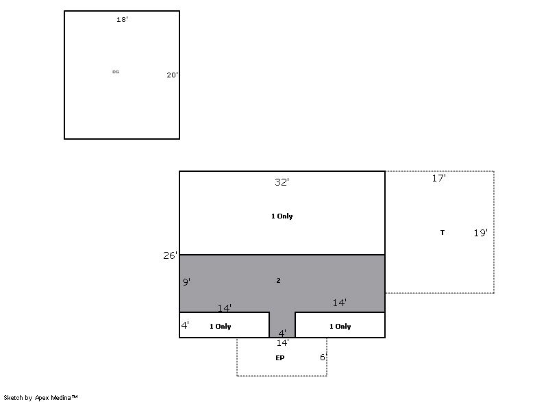
Building 1
| AccountNo | Building ID | Occupancy |
|---|---|---|
| R8965163 | 1 | Single Family Residential |
| ID | Type | NBHD | Occupancy | % Complete | Bedrooms | Baths |
|---|---|---|---|---|---|---|
| 1 | Residential | 0R1009 | Single Family Residential | 100 | 3 | 2.00 |
| ID | Exterior | Roof Cover | Interior | HVAC | Perimeter | Units | Unit Type | Make |
|---|---|---|---|---|---|---|---|---|
| 1 | Frame Aluminum | Composition Shingle | Drywall | Forced Air | 0 | 0 | NA | NA |
| ID | Square Ft | Condo SF | Total Basement SF | Finished Basement SF | Garage SF | Carport SF | Balcony SF | Porch SF |
|---|---|---|---|---|---|---|---|---|
| 1 | 1,136 | 0 | 0 | 0 | 0 | 0 | 0 | 84 |
| ID | Built As | Square Ft | Year Built | Stories | Length | Width |
|---|---|---|---|---|---|---|
| 1.00 | 1 1/2 Story Fin | 1,136 | 1889 | 2 | 0 | 0 |
| ID | Detail Type | Description | Units |
|---|---|---|---|
| 1 | Fixture | Full Bath | 2.00 |
| 1 | Porch | Encl Solid Wall | 84.00 |
| 1 | Porch | Open Slab | 323.00 |
Building 2
| AccountNo | Building ID | Occupancy |
|---|---|---|
| R8965163 | 2 | Secondary Single Family Res |
| ID | Type | NBHD | Occupancy | % Complete | Bedrooms | Baths |
|---|---|---|---|---|---|---|
| 2 | Residential | 0R1009 | Secondary Single Family Res | 100 | 1 | 1.00 |
| ID | Exterior | Roof Cover | Interior | HVAC | Perimeter | Units | Unit Type | Make |
|---|---|---|---|---|---|---|---|---|
| 2 | Frame Siding | Composition Shingle | Drywall | Floor/Wall Furnace | 0 | 0 | NA | NA |
| ID | Square Ft | Condo SF | Total Basement SF | Finished Basement SF | Garage SF | Carport SF | Balcony SF | Porch SF |
|---|---|---|---|---|---|---|---|---|
| 2 | 536 | 0 | 0 | 0 | 0 | 0 | 0 | 24 |
| ID | Built As | Square Ft | Year Built | Stories | Length | Width |
|---|---|---|---|---|---|---|
| 2.00 | Ranch 1 Story | 536 | 1925 | 1 | 0 | 0 |
| ID | Detail Type | Description | Units |
|---|---|---|---|
| 2 | Fixture | Full Bath | 1.00 |
| 2 | Porch | Open Slab | 24.00 |
| Account | Parcel | Account Type | Tax Year | Buildings | Actual Value | Local Govt Assessed Value | School Assessed Value |
|---|---|---|---|---|---|---|---|
| R8965163 | 105910100048 | Residential | 2026 | 2 | 520,127 | 32,510 | 36,670 |
| Type | Code | Description | Actual Value | Local Govt Assessed Value | School Assessed Value | Acres | Land SqFt |
|---|---|---|---|---|---|---|---|
| Improvement | 1212 | SINGLE FAMILY RESIDENTIAL IMPROVEMENTS | 417,734 | 26,110 | 29,450 | 0.000 | 0 |
| Land | 1112 | SINGLE FAMILY RESIDENTIAL-LAND | 102,393 | 6,400 | 7,220 | 0.969 | 42,210 |
| Totals | - | - | 520,127 | 32,510 | 36,670 | 0.969 | 42,210 |
Comparable sales for your Residential or Commercial property may be found using our SALES SEARCH TOOL
Values are updated annually on May 1st for Real Property and June 15th for Personal Property and Oil and Gas.
| Account | Parcel | Account Type | Tax Year | Buildings | Actual Value | Local Govt Assessed Value | School Assessed Value |
|---|---|---|---|---|---|---|---|
| R8965163 | 105910100048 | Residential | 2026 | 2 | 520,127 | 32,510 | 36,670 |
| Tax Area | District ID | District Name | Local Govt Mill Levy |
School Mill Levy |
Estimated Taxes |
|---|---|---|---|---|---|
| 0557 | 0700 | AIMS JUNIOR COLLEGE | 6.313 | 0.000 | $205.24 |
| 0557 | 0510 | FRONT RANGE FIRE RESCUE FIRE PROTECTION DISTRICT | 11.483 | 0.000 | $373.31 |
| 0557 | 1050 | HIGH PLAINS LIBRARY | 3.044 | 0.000 | $98.96 |
| 0557 | 0301 | NORTHERN COLORADO WATER (NCW) | 1.000 | 0.000 | $32.51 |
| 0557 | 0205 | SCHOOL DIST RE5J-JOHNSTOWN | 0.000 | 36.271 | $1,330.06 |
| 0557 | 0901 | THOMPSON RIVER REC | 3.594 | 0.000 | $116.84 |
| 0557 | 0100 | WELD COUNTY | 15.956 | 0.000 | $518.73 |
| 0557 | 1200 | WEST GREELEY CONSERVATION | 0.414 | 0.000 | $13.46 |
| Total | - | - | 41.804 | 36.271 | $2,689.11 |
The estimate of tax is based on the prior year mill levy and the 2025 projected assessment rates. Mill levies and tax estimates will be updated yearly on December 22nd for the current year. Additional information can be found at https://assessor.weld.gov





